259 800 000 Ft
680 000 €
- 136m²
- 6 szoba
- 1. emelet
XI. KER. SASAD, CSENDES, ÚJÉPÍTÉSŰ 6 SZOBÁS LAKÁS
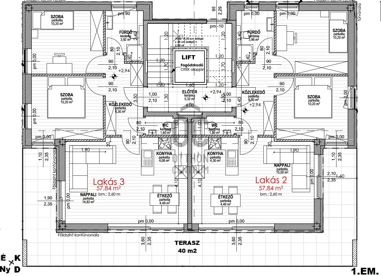
XI. Kerület SASAD KÖRZETÉBEN, CSENDES MELLÉKUTCÁBAN, SÍK, négyzet alakú, 1026 m2 telken épülő, 3 LAKÁSOS LIFTES TÁRSASHÁZBAN kínálunk eladásra, egy DNY-i TÁJOLÁSÚ, 136 m2-es (40 m2 terasz 1/2 méretének a beszámítása mellett. A terasz nélküli nettó alapterület 116 m2), 6 SZOBÁS, 2 FÜRDŐSZOBÁS, 4 DB TEREMGARÁZZSAL (+10 Mft/db), és 9 m2 tárolóval (+9 Mft) rendelkező újépítésű lakást.
Mint ahogy az alaprajzon is látszik, a FENTI LEÍRÁSBAN SZEREPLŐ INGATLAN JELENLEG 2 EGYMÁS MELLETTI 3 SZOBÁS LAKÁSKÉNT VAN FELTÜNTETVE, AMI TERMÉSZETESEN EGYENLŐRE MÉG CSAK TÁJÉKOZTATÓ JELLEGŰ!
Az ingatlan főfalak által behatárolt területe jelen pillanatban még a leendő vásárlói igényeknek megfelelően alakítható ki: falak elhelyezése, szobaszám, szobák mérete….stb.
Fűtés-hűtés: Hőszivattyús rendszerrel padlófűtés, illetve mennyezet hűtés – fűtés. Külső nyílászárók: Műanyag profilú 6 légkamrás, kívül színes fólia, 3 rétegű üvegezés.
A KIVITELEZŐ TÖBB MINT 100!!! TÁRSASHÁZAT ÉPÍTETT MÁR FEL A 2,11,12. KERÜLETEKBEN) a lakás KULCSRAKÉSZ ÁLLAPOTA 2027 második negyedévére várható.
Közlekedés: 53, 108E, 139, és 140 buszok 5 perc sétatávolságra, M4 METRÓ KELENFÖLDI VÉGÁLLOMÁSA BUSSZAL 5 PERC ALATT ELÉRHETŐ.
TISZTELT ÉRDEKLŐDŐ!
AMENNYIBEN SZÁNDÉKÁBAN ÁLL INGATLANT ELADNI - A LEGRÖVIDEBB IDŐN BELÜL, GARANTÁLT JOGI, ÉS BANKI HÁTTÉRREL - KERESSEN BIZALOMMAL, HOGY EGY SZEMÉLYES HELYSZÍNI FELMÉRÉST KÖVETŐ INGYENES ÉRTÉKMEGÁLLAPÍTÁS UTÁN, EGYÜTT TUDJUNK MŰKÖDNI AZ ÖN INGATLANÁNAK AZ ÉRTÉKESÍTÉSÉBEN IS!
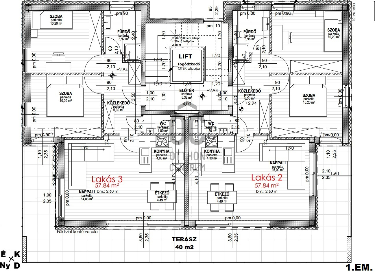
Mint ahogy az alaprajzon is látszik, a FENTI LEÍRÁSBAN SZEREPLŐ INGATLAN JELENLEG 2 EGYMÁS MELLETTI 3 SZOBÁS LAKÁSKÉNT VAN FELTÜNTETVE, AMI TERMÉSZETESEN EGYENLŐRE MÉG CSAK TÁJÉKOZTATÓ JELLEGŰ!
Az ingatlan főfalak által behatárolt területe jelen pillanatban még a leendő vásárlói igényeknek megfelelően alakítható ki: falak elhelyezése, szobaszám, szobák mérete….stb.
Fűtés-hűtés: Hőszivattyús rendszerrel padlófűtés, illetve mennyezet hűtés – fűtés. Külső nyílászárók: Műanyag profilú 6 légkamrás, kívül színes fólia, 3 rétegű üvegezés.
A KIVITELEZŐ TÖBB MINT 100!!! TÁRSASHÁZAT ÉPÍTETT MÁR FEL A 2,11,12. KERÜLETEKBEN) a lakás KULCSRAKÉSZ ÁLLAPOTA 2027 második negyedévére várható.
Közlekedés: 53, 108E, 139, és 140 buszok 5 perc sétatávolságra, M4 METRÓ KELENFÖLDI VÉGÁLLOMÁSA BUSSZAL 5 PERC ALATT ELÉRHETŐ.
TISZTELT ÉRDEKLŐDŐ!
AMENNYIBEN SZÁNDÉKÁBAN ÁLL INGATLANT ELADNI - A LEGRÖVIDEBB IDŐN BELÜL, GARANTÁLT JOGI, ÉS BANKI HÁTTÉRREL - KERESSEN BIZALOMMAL, HOGY EGY SZEMÉLYES HELYSZÍNI FELMÉRÉST KÖVETŐ INGYENES ÉRTÉKMEGÁLLAPÍTÁS UTÁN, EGYÜTT TUDJUNK MŰKÖDNI AZ ÖN INGATLANÁNAK AZ ÉRTÉKESÍTÉSÉBEN IS!
Regisztrációs szám
U0047953
Az ingatlan adatai
Értékesités
eladó
Jogi státusz
új
Jelleg
lakás
Építési mód
tégla
Méret
136 m²
Bruttó méret
156 m²
Terasz / erkély mérete
40 m²
Fűtés
megújuló
Belmagasság
270 cm
Tájolás
Dél-nyugat
Lépcsőház típusa
zárt lépcsőház
Állapot
Kiváló
Homlokzat állapota
Kiváló
Lépcsőház állapota
Kiváló
Építés éve
2026
Fürdőszobák száma
2
Fekvés
kertre néző
Társaház kert
igen
Víz
Van
Gáz
Utcán
Villany
Van
Csatorna
Van
Lift
van
Tároló
Önálló
Helyiségek
szoba
24 m²
szoba
24 m²
szoba
10.2 m²
szoba
10.2 m²
szoba
10.2 m²
szoba
10.2 m²
fürdőszoba-wc
4 m²
fürdőszoba-wc
4 m²
wc-kézmosó
1.8 m²
wc-kézmosó
1.8 m²
terasz
40 m²
Ruczek János
Hitelszakértő