776 280 000 Ft
2 000 000 €
- 389m²
- 16 szoba
5 az 1-ben
Csillaghegy határán eladó egy új építésű ház, melyben 5 db teljes értékű, külön álló lakás található.
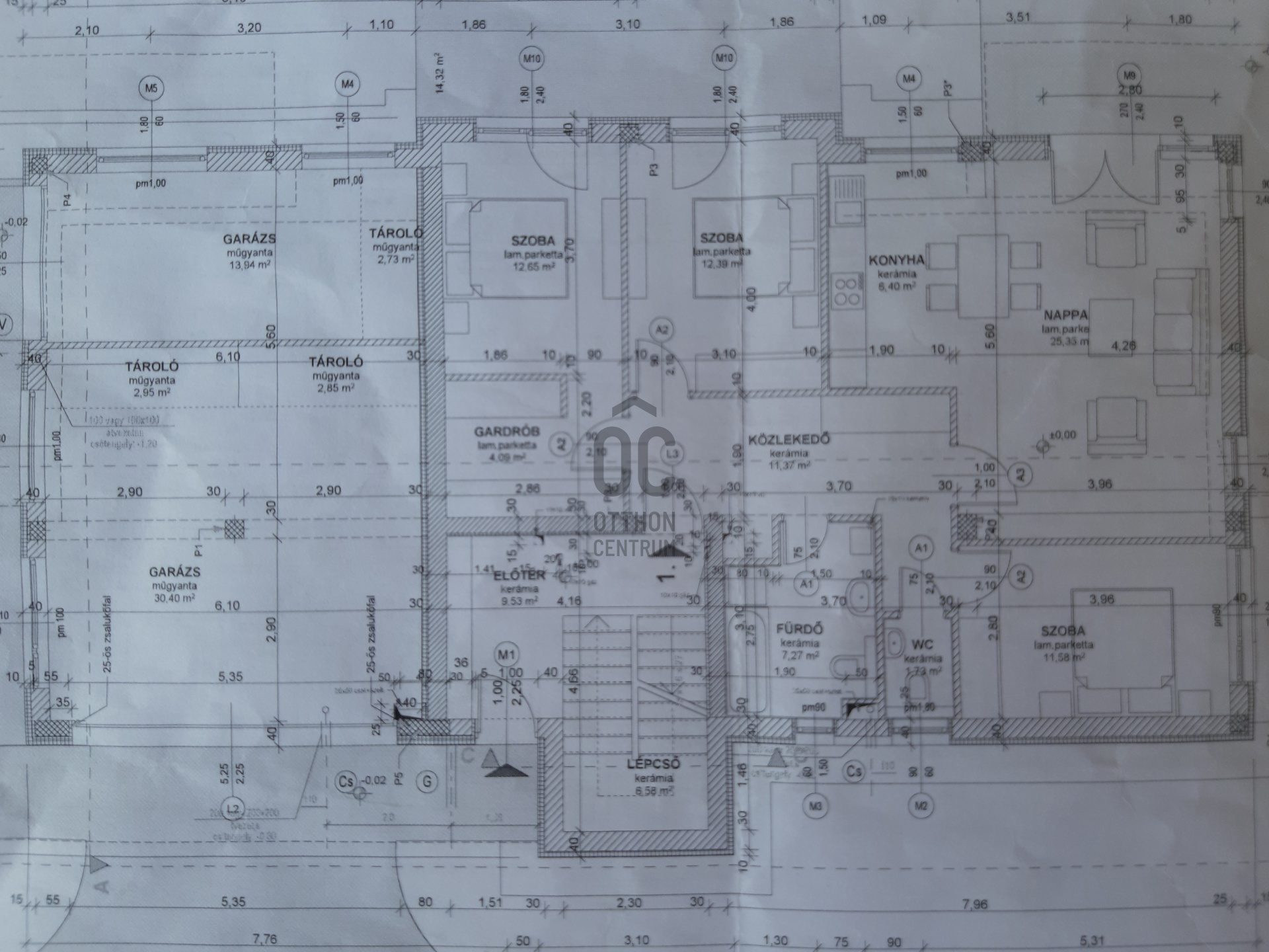
412 nm összterületen 5 db lakás, melyeket lépcsőházból érünk el.
Földszinti lakás:
- 93,56 nm alapterületű
- 3 szoba + amerikai konyhás nappali
- DNY -i tájolás
- fürdőszoba + 2 wc
- 40,57 nm terasz
1. emeleti lakás I.
- 72,78 nm alapterületű
- 2 szoba + amerikai konyhás nappali
- DNY -i tájolás
- fürdőszoba + 2 wc
- 13,49 nm erkély
1. emeleti lakás II.
- 72,78 nm alapterületű
- 2 szoba + amerikai konyhás nappali
- DK -i tájolás
- fürdőszoba + 2 wc
- 13,49 nm erkély
Tetőtéri lakás I.
- nettó 36,76 nm (bruttó 48,79 nm)
- 2 szoba + amerikai konyhás nappali
- DNY -i tájolás
- fürdőszoba + wc
Tetőtéri lakás II.
- nettó 36,76 nm (bruttó 48,79 nm)
- 2 szoba + amerikai konyhás nappali
- DNY -i tájolás
- fürdőszoba + wc
Az ingatlan készen van, de a kertépítést jelenleg még ne kezdték el.
A ház a Szentendrei úthoz közel eső utcában található a Duna Parttól 1,5 km-re. Autóval a Szentendrei út, tömegközlekedéssel a H5-ös Hév segíti a városba való bejutást.
Az ingatlan alkalmas lehet több generációs családok számára, prosperáló cég központjának, esetleg társasházzá nyilvánítást követően a lakások külön-külön is értékesíthetőek, így befektetésnek is kiváló lehetőség.
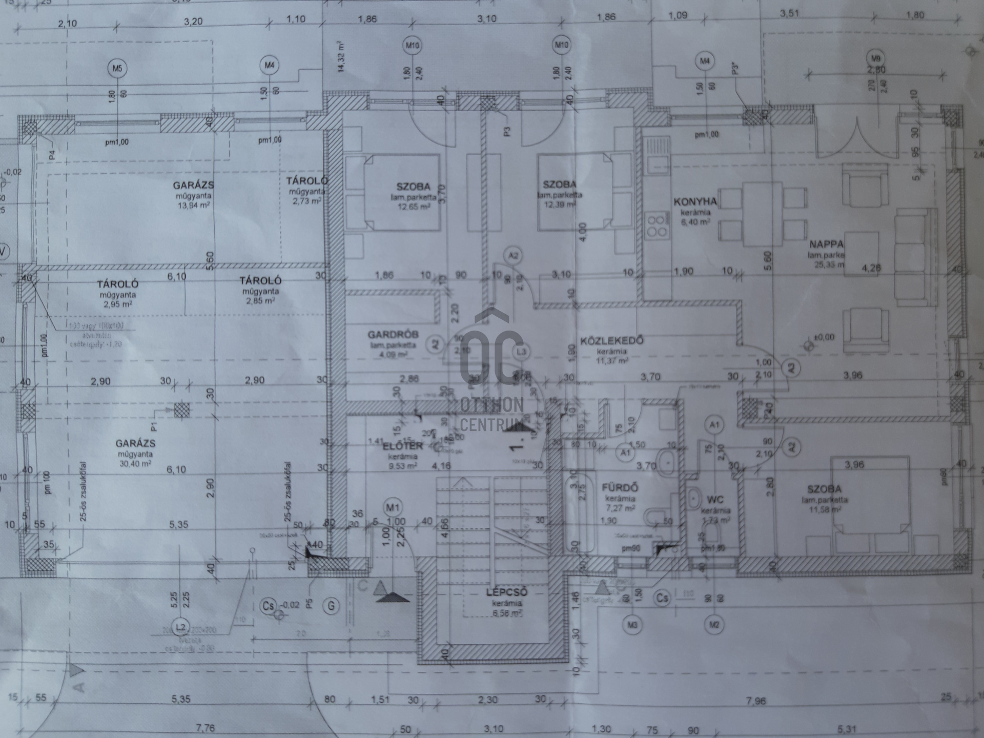
412 nm összterületen 5 db lakás, melyeket lépcsőházból érünk el.
Földszinti lakás:
- 93,56 nm alapterületű
- 3 szoba + amerikai konyhás nappali
- DNY -i tájolás
- fürdőszoba + 2 wc
- 40,57 nm terasz
1. emeleti lakás I.
- 72,78 nm alapterületű
- 2 szoba + amerikai konyhás nappali
- DNY -i tájolás
- fürdőszoba + 2 wc
- 13,49 nm erkély
1. emeleti lakás II.
- 72,78 nm alapterületű
- 2 szoba + amerikai konyhás nappali
- DK -i tájolás
- fürdőszoba + 2 wc
- 13,49 nm erkély
Tetőtéri lakás I.
- nettó 36,76 nm (bruttó 48,79 nm)
- 2 szoba + amerikai konyhás nappali
- DNY -i tájolás
- fürdőszoba + wc
Tetőtéri lakás II.
- nettó 36,76 nm (bruttó 48,79 nm)
- 2 szoba + amerikai konyhás nappali
- DNY -i tájolás
- fürdőszoba + wc
Az ingatlan készen van, de a kertépítést jelenleg még ne kezdték el.
A ház a Szentendrei úthoz közel eső utcában található a Duna Parttól 1,5 km-re. Autóval a Szentendrei út, tömegközlekedéssel a H5-ös Hév segíti a városba való bejutást.
Az ingatlan alkalmas lehet több generációs családok számára, prosperáló cég központjának, esetleg társasházzá nyilvánítást követően a lakások külön-külön is értékesíthetőek, így befektetésnek is kiváló lehetőség.
Regisztrációs szám
U0041245
Az ingatlan adatai
Értékesités
eladó
Jogi státusz
új
Jelleg
ház
Építési mód
tégla
Méret
389 m²
Bruttó méret
412 m²
Telek méret
987 m²
Terasz / erkély mérete
67,5 m²
Fűtés
Gáz cirkó
Belmagasság
260 cm
Lakáson belüli szintszám
3
Tájolás
Dél-nyugat
Állapot
Kiváló
Homlokzat állapota
Kiváló
Környék
csendes, zöld
Építés éve
2020
Fürdőszobák száma
5
Garázs
Benne van az árban
Garázs férőhely
3
Víz
Van
Gáz
Van
Villany
Van
Csatorna
Van
Többgenerációs
igen
Tároló
Önálló
Vízpart távolsága
több mint 500 méterre
Helyiségek
nappali-konyha
32.55 m²
szoba
12.39 m²
szoba
11.58 m²
szoba
12.65 m²
fürdőszoba-wc
6.64 m²
wc
1.73 m²
gardrób
4.1 m²
fürdőszoba-wc
6.86 m²
wc
1.73 m²
nappali-konyha
25.1 m²
szoba
18.64 m²
szoba
11.58 m²
tároló
1.77 m²
fürdőszoba-wc
6.86 m²
wc
1.73 m²
nappali-konyha
25.1 m²
szoba
11.58 m²
szoba
18.64 m²
tároló
1.77 m²
nappali-konyha
18.82 m²
félszoba
8.9 m²
szoba
9.6 m²
fürdőszoba
3.11 m²
wc
1.07 m²
nappali-konyha
18.82 m²
félszoba
8.9 m²
szoba
9.6 m²
fürdőszoba
3.11 m²
wc
1.07 m²
lépcsőház
16.11 m²
garázs
30.4 m²
garázs
13.94 m²
tároló
3 m²
tároló
2.8 m²
tároló
2.73 m²
Kőrösi Róbert
Hitelszakértő