Elérhető Otthon Start hitellel
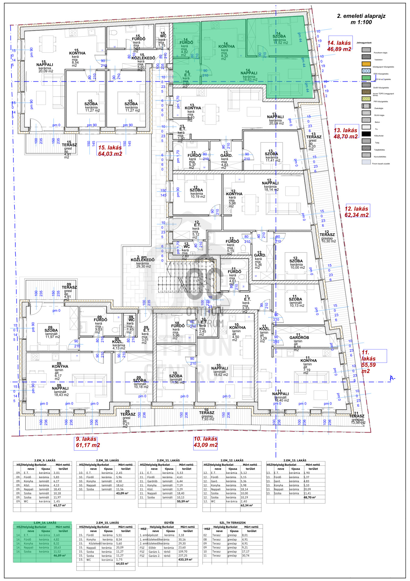
Eladó újépítésű lakás, P4804-1-01-02-014
Cegléd,

48 400 000 Ft

128 000 €

  • 46,8m²
  • 2 szoba
  • 2. emelet

Regisztrációs szám

P4804-1-01-02-014

Az ingatlan adatai

Értékesités
eladó
Jogi státusz
új
Jelleg
lakás
Építési mód
tégla
Méret
46,8 m²
Bruttó méret
52 m²
Fűtés
hőszivattyú
Belmagasság
260 cm
Tájolás
Dél
Lépcsőház típusa
zárt lépcsőház
Állapot
Kiváló
Homlokzat állapota
Kiváló
Lépcsőház állapota
Kiváló
Építés éve
2028
Fürdőszobák száma
1
Fekvés
utcai
Víz
Van
Gáz
Van
Villany
Van
Csatorna
Van

Helyiségek

nappali
18.63 m²
konyha
8.32 m²
szoba
11.52 m²
fürdőszoba
4.82 m²
előszoba
3.6 m²

Irodánk kínálatából - Cegléd - Szolnoki út

eladó családi ház

Index image
45

eladó üzleti célú ingatlan

Index image
14

eladó családi ház

Index image
Elérhető Otthon Start hitellel
13

eladó nyaraló

Index image
15

eladó újépítésű családi ház

Index image
18

eladó telek

Index image
1