Eladó újépítésű lakás, P4756-B-01-01-002
Budapest III. kerület, Táborhegy, Ér utca

469 000 000 Ft

1 230 000 €

  • 158m²
  • 5 szoba
  • 1. emelet
Kiemelt megbízás

Regisztrációs szám

P4756-B-01-01-002

Az ingatlan adatai

Értékesités
eladó
Jogi státusz
új
Jelleg
lakás
Építési mód
tégla
Méret
158 m²
Bruttó méret
158 m²
Terasz / erkély mérete
60 m²
Kert méret
175 m²
Fűtés
hőszivattyú
Belmagasság
270 cm
Lakáson belüli szintszám
2
Tájolás
Kelet
Panoráma
városi panoráma
Lépcsőház típusa
zárt lépcsőház
Állapot
Kiváló
Homlokzat állapota
Kiváló
Lépcsőház állapota
Kiváló
Környék
csendes, zöld
Építés éve
2025
Fürdőszobák száma
3
Fekvés
kertre néző
Társaház kert
igen
Garázs
Kötelezően vásárolandó
Víz
Van
Gáz
Utcán
Villany
Van
Csatorna
Van
Tároló
Kötelezően vásárolandó

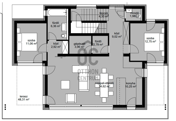
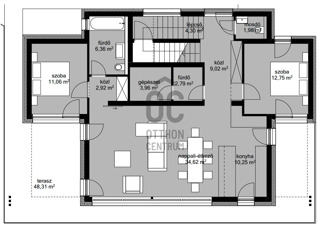
Helyiségek

lépcsőház
4.3 m²
közlekedő
9.02 m²
wc-kézmosó
1.98 m²
hálószoba
12.75 m²
fürdőszoba-wc
2.79 m²
háztartási helyiség
3.96 m²
nappali-étkező
34.62 m²
konyha
10.25 m²
közlekedő
2.92 m²
hálószoba
11.06 m²
fürdőszoba-wc
6.36 m²
terasz
48.31 m²
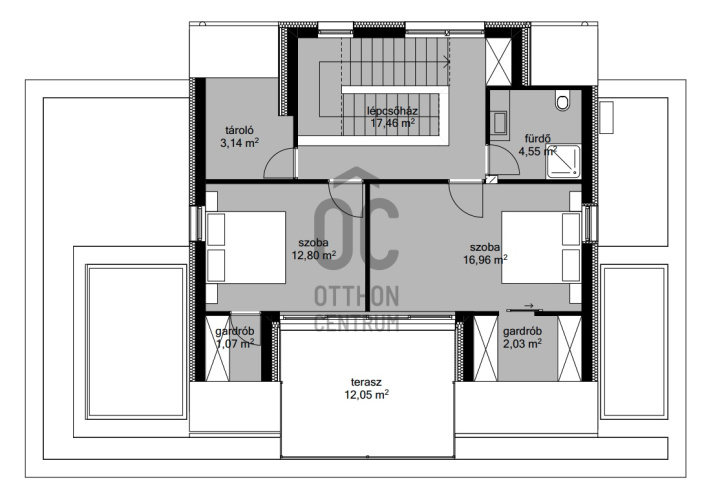
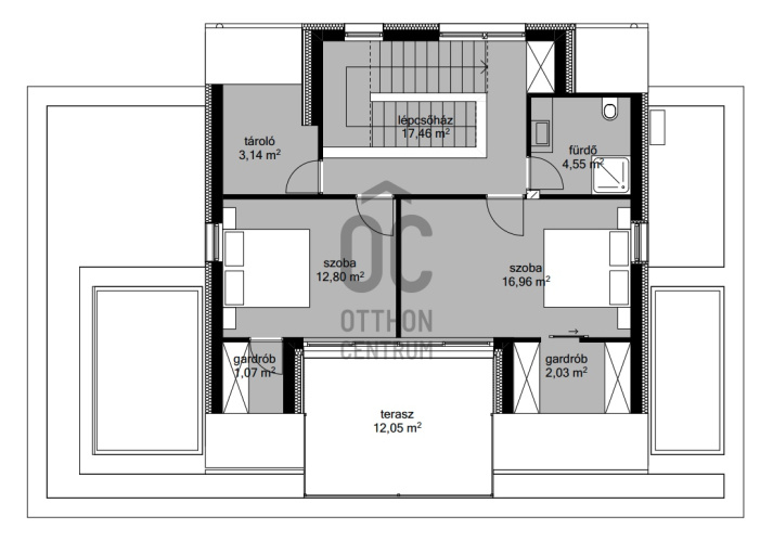
lépcsőház
17.46 m²
fürdőszoba-wc
4.55 m²
hálószoba
16.96 m²
gardrób
2.03 m²
hálószoba
12.8 m²
gardrób
1.07 m²
tároló
3.14 m²
Ruczek János
Ruczek János

Hitelszakértő

Irodánk kínálatából - II. kerület - TDG

eladó újépítésű lakás

Index image
11

eladó újépítésű lakás

Index image
24

eladó lakás

Index image
18

eladó ikerház

Index image
35

eladó lakás

Index image
20

eladó lakás

Index image
Elérhető Otthon Start hitellel
13

eladó lakás

Index image
17

eladó lakás

Index image
12

eladó lakás

Index image
17

eladó lakás

Index image
Elérhető Otthon Start hitellel
13

eladó lakás

Index image
12

eladó lakás

Index image
28