Eladó újépítésű lakás, P4753-1-0B-02-206
Budapest XI. kerület,

80 900 000 Ft

213 000 €

  • 47,2m²
  • 2 szoba
  • 2. emelet

Regisztrációs szám

P4753-1-0B-02-206

Az ingatlan adatai

Értékesités
eladó
Jogi státusz
új
Jelleg
lakás
Építési mód
tégla
Méret
47,2 m²
Bruttó méret
50,4 m²
Terasz / erkély mérete
6,4 m²
Fűtés
hőszivattyú
Belmagasság
270 cm
Tájolás
Észak-kelet
Lépcsőház típusa
zárt lépcsőház
Állapot
Kiváló
Homlokzat állapota
Kiváló
Lépcsőház állapota
Kiváló
Környék
csendes, jó közlekedés, zöld, központi
Építés éve
2028
Fürdőszobák száma
1
Fekvés
kertre néző
Víz
Van
Villany
Van
Csatorna
Van
Lift
van

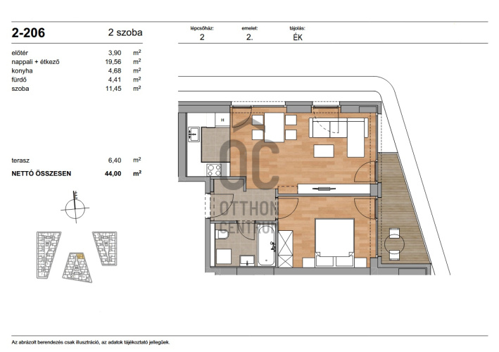
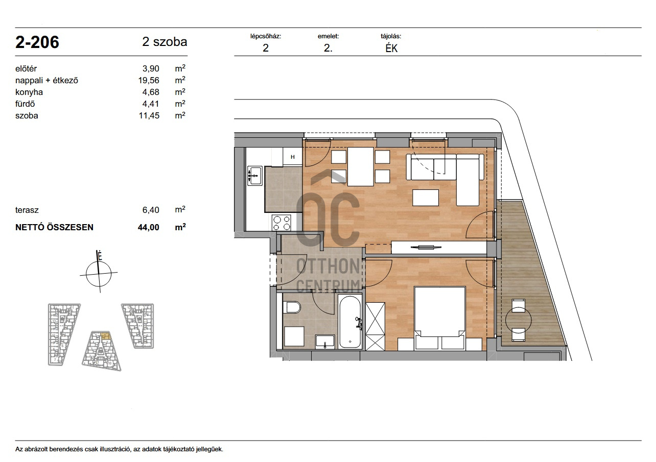
Helyiségek

előszoba
3.9 m²
nappali-étkező
19.56 m²
konyha
4.68 m²
fürdőszoba-wc
4.41 m²
szoba
11.45 m²
erkély
6.4 m²
Tóth Róbert
Tóth Róbert

Hitelszakértő

Irodánk kínálatából - III. kerület - WFC

eladó fejlesztési célú ingatlan

Index image
7

kiadó újépítésű lakás

Index image
16

kiadó újépítésű lakás

Index image
25

kiadó újépítésű lakás

Index image
12

eladó lakás

Index image
16

eladó telek

Index image
4

eladó újépítésű családi ház

Index image
45

eladó lakás

Index image
26

kiadó újépítésű lakás

Index image
8

kiadó újépítésű lakás

Index image
22