Eladó újépítésű lakás, P4726-V1-01-06-603
Budapest XIII. kerület, Angyalföld

99 900 000 Ft

267 000 €

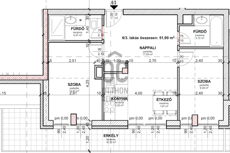
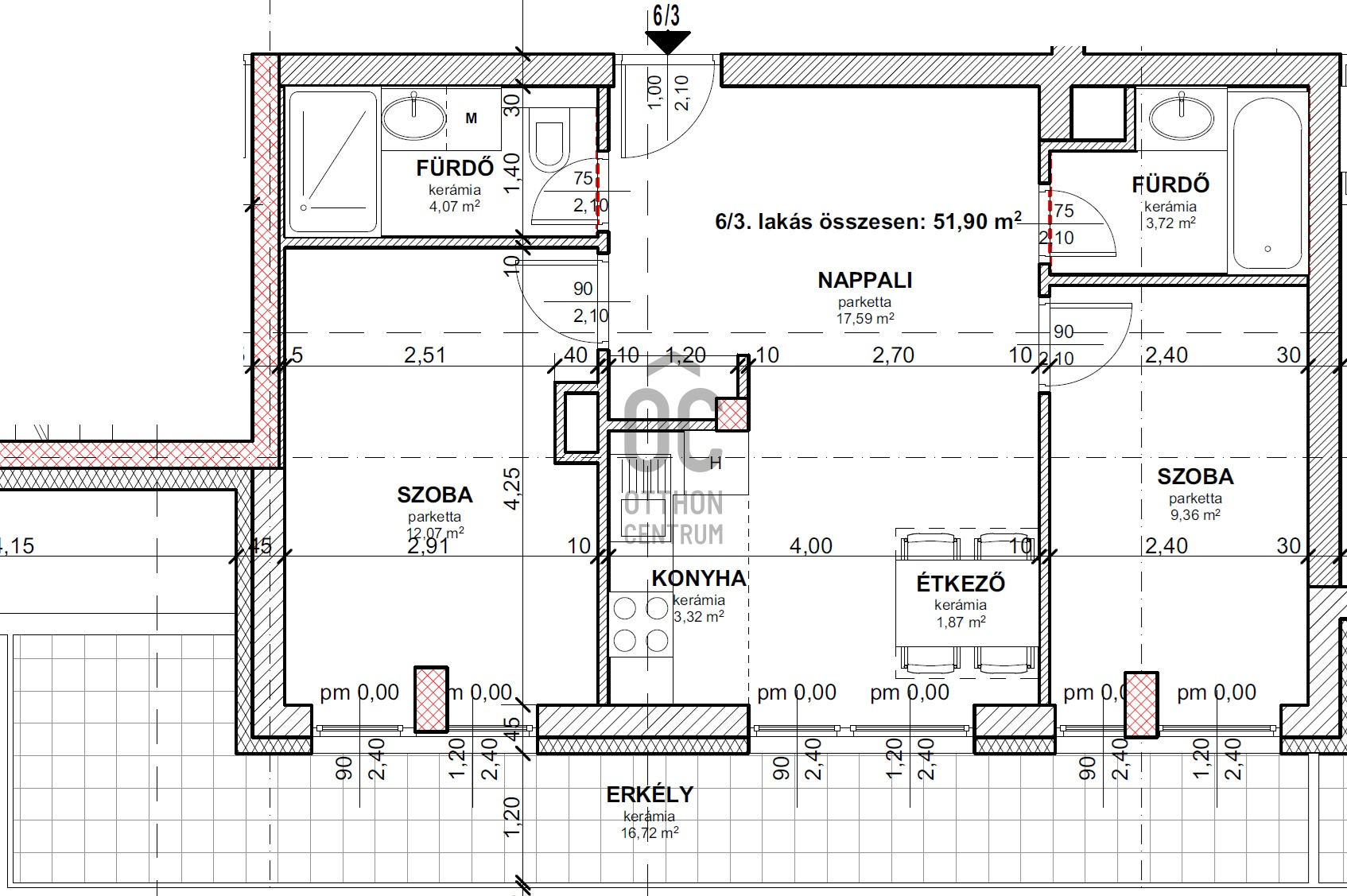
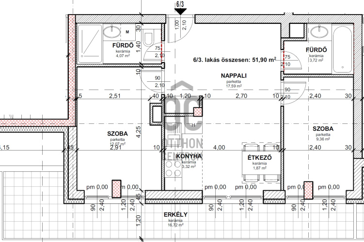
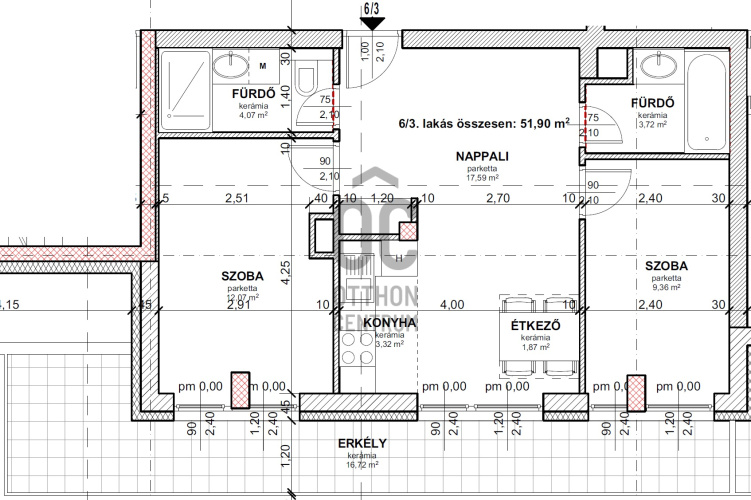
  • 52m²
  • 3 szoba
  • 6. emelet

Regisztrációs szám

P4726-V1-01-06-603

Az ingatlan adatai

Értékesités
eladó
Jogi státusz
új
Jelleg
lakás
Építési mód
tégla
Méret
52 m²
Bruttó méret
60,4 m²
Terasz / erkély mérete
16,8 m²
Fűtés
hőszivattyú
Belmagasság
270 cm
Lakáson belüli szintszám
1
Tájolás
Észak-kelet
Lépcsőház típusa
zárt lépcsőház
Állapot
Kiváló
Homlokzat állapota
Kiváló
Lépcsőház állapota
Kiváló
Környék
csendes, jó közlekedés, zöld
Építés éve
2026
Fürdőszobák száma
2
Fekvés
utcai
Társaház kert
igen
Garázs
Külön vásárolható
Víz
Van
Gáz
Van
Villany
Van
Csatorna
Van
Lift
van
Tároló
Külön vásárolható

Helyiségek

nappali
17.59 m²
konyha
3.32 m²
ebédlő
1.87 m²
szoba
12.07 m²
szoba
9.36 m²
Berkes-Jakus Kinga
Berkes-Jakus Kinga

Hitelszakértő

Irodánk kínálatából - XIII. kerület - Béke Residence

for sale apartment

Index image
16

for sale new construction apartment

Index image
13

for sale panel apartment

Index image
data_sheet.details.realestate.section.main.otthonstart_flag.label
8

for sale apartment

Index image
20

for sale apartment

Index image
7

for sale apartment

Index image
3