206 766 000 Ft
548 000 €
- 120,9m²
- 5 szoba
- földszint
XI. ÚJÉPÍTÉSŰ SORHÁZ SAJÁT KERTTEL 2 BEÁLLÓVAL
XI. SPANYOLRÉT, ÚJÉPÍTÉSŰ SORHÁZ SAJÁT KERTTEL, 2 AUTÓBEÁLLÓVAL
XI. Kerület SPANYOLRÉT KÖRZETÉBEN, CSENDES MELLÉKUTCÁBAN, teljesen SÍK, nagyjából téglalap alakú, 2000 m2 telken épülő, 2x3 épületből álló, SORHÁZI TÁRSASHÁZBAN kínálunk eladásra, egy K-i TÁJOLÁSÚ, SAJÁT KERTRE NÉZŐ, belső 2 szintes, 120,9 m2-es (7 m2 terasz 1/2 méretének a beszámítása mellett. A terasz nélküli nettó főfalakon belüli alapterület 117,4 m2), 5 SZOBÁS, 2 FÜRDŐSZOBÁS, 2 DB TELKEN BELÜLI FELSZÍNI BEÁLLÓVAL (+4 Mft/db), és 102 m2 SAJÁT KERTTEL rendelkező sorházi lakást.
Fűtés-hűtés: HŐSZIVATTYÚS RENDSZER MELEGVÍZ TÁROLÓVAL, padlófűtéssel, illetve opcionálisan MENNYEZET HŰTÉS-FŰTÉSSEL. A FÖLDSZINTEN ÉS AZ EMELETEN FAN-COIL HŰTÉS KERÜL KIALAKÍTÁSRA. Külső nyílászárók: Műanyag profilú 5-6 légkamrás, kívül színes fólia, 3 rétegű üvegezéssel.
TETŐN NAPELEM RENDSZER FOGADÁSÁRA ALKALMAS VÉDŐCSÖVEZÉS KERÜL KIALAKÍTÁSRA, napelem telepítése külön árajánlat alapján kerül kiépítésre.
A földszinti lakótérben természetesen lehetőség van a 11,3 m2-es szoba mellőzésére, ami által egy tágasabb nappali konyha-étkező kialakítás lenne elérhető!
Az ingatlan főfalak által behatárolt területe jelen pillanatban még a leendő vásárlói igényeknek megfelelően alakítható ki: válaszfalak elhelyezése, szobaszám, szobák mérete….stb.
A kivitelező jó néhány társasházat már felépített, így természetesen több referenciamunkával is rendelkezik! AZ INGATLAN KULCSRAKÉSZ ÁLLAPOTA 2026 ÉV VÉGÉRE várható.
Közlekedés: 40, 40B, 88, és 88A buszok gyalogosan 10 percre, M4 METRÓ KELENFÖLDI VÉGÁLLOMÁSA BUSSZAL 6-8 PERC ALATT ELÉRHETŐ.
TISZTELT ÉRDEKLŐDŐ!
TÖBB MINT 20 ÉVE FOGLALKOZOM INGATLANOK ÉRTÉKESÍTÉSÉVEL AZ OTTHON CENTRUMNÁL, AMENNYIBEN SZÁNDÉKÁBAN ÁLL INGATLANT ELADNI - A LEGRÖVIDEBB IDŐN BELÜL, GARANTÁLT JOGI, ÉS BANKI HÁTTÉRREL - KERESSEN BIZALOMMAL, HOGY EGY SZEMÉLYES HELYSZÍNI FELMÉRÉST KÖVETŐ INGYENES ÉRTÉKMEGÁLLAPÍTÁS UTÁN, EGYÜTT TUDJUNK MŰKÖDNI AZ ÖN INGATLANÁNAK AZ ELADÁSÁBAN IS!
XI. Kerület SPANYOLRÉT KÖRZETÉBEN, CSENDES MELLÉKUTCÁBAN, teljesen SÍK, nagyjából téglalap alakú, 2000 m2 telken épülő, 2x3 épületből álló, SORHÁZI TÁRSASHÁZBAN kínálunk eladásra, egy K-i TÁJOLÁSÚ, SAJÁT KERTRE NÉZŐ, belső 2 szintes, 120,9 m2-es (7 m2 terasz 1/2 méretének a beszámítása mellett. A terasz nélküli nettó főfalakon belüli alapterület 117,4 m2), 5 SZOBÁS, 2 FÜRDŐSZOBÁS, 2 DB TELKEN BELÜLI FELSZÍNI BEÁLLÓVAL (+4 Mft/db), és 102 m2 SAJÁT KERTTEL rendelkező sorházi lakást.
Fűtés-hűtés: HŐSZIVATTYÚS RENDSZER MELEGVÍZ TÁROLÓVAL, padlófűtéssel, illetve opcionálisan MENNYEZET HŰTÉS-FŰTÉSSEL. A FÖLDSZINTEN ÉS AZ EMELETEN FAN-COIL HŰTÉS KERÜL KIALAKÍTÁSRA. Külső nyílászárók: Műanyag profilú 5-6 légkamrás, kívül színes fólia, 3 rétegű üvegezéssel.
TETŐN NAPELEM RENDSZER FOGADÁSÁRA ALKALMAS VÉDŐCSÖVEZÉS KERÜL KIALAKÍTÁSRA, napelem telepítése külön árajánlat alapján kerül kiépítésre.
A földszinti lakótérben természetesen lehetőség van a 11,3 m2-es szoba mellőzésére, ami által egy tágasabb nappali konyha-étkező kialakítás lenne elérhető!
Az ingatlan főfalak által behatárolt területe jelen pillanatban még a leendő vásárlói igényeknek megfelelően alakítható ki: válaszfalak elhelyezése, szobaszám, szobák mérete….stb.
A kivitelező jó néhány társasházat már felépített, így természetesen több referenciamunkával is rendelkezik! AZ INGATLAN KULCSRAKÉSZ ÁLLAPOTA 2026 ÉV VÉGÉRE várható.
Közlekedés: 40, 40B, 88, és 88A buszok gyalogosan 10 percre, M4 METRÓ KELENFÖLDI VÉGÁLLOMÁSA BUSSZAL 6-8 PERC ALATT ELÉRHETŐ.
TISZTELT ÉRDEKLŐDŐ!
TÖBB MINT 20 ÉVE FOGLALKOZOM INGATLANOK ÉRTÉKESÍTÉSÉVEL AZ OTTHON CENTRUMNÁL, AMENNYIBEN SZÁNDÉKÁBAN ÁLL INGATLANT ELADNI - A LEGRÖVIDEBB IDŐN BELÜL, GARANTÁLT JOGI, ÉS BANKI HÁTTÉRREL - KERESSEN BIZALOMMAL, HOGY EGY SZEMÉLYES HELYSZÍNI FELMÉRÉST KÖVETŐ INGYENES ÉRTÉKMEGÁLLAPÍTÁS UTÁN, EGYÜTT TUDJUNK MŰKÖDNI AZ ÖN INGATLANÁNAK AZ ELADÁSÁBAN IS!
Regisztrációs szám
P4706-2-02-FZ-001
Az ingatlan adatai
Értékesités
eladó
Jogi státusz
új
Jelleg
lakás
Építési mód
tégla
Méret
120,9 m²
Bruttó méret
124,4 m²
Terasz / erkély mérete
7 m²
Fűtés
megújuló
Belmagasság
270 cm
Lakáson belüli szintszám
1
Tájolás
Kelet
Panoráma
Zöldre néző panoráma
Lépcsőház típusa
zárt lépcsőház
Állapot
Kiváló
Homlokzat állapota
Kiváló
Lépcsőház állapota
Kiváló
Környék
csendes, jó közlekedés, zöld
Építés éve
2026
Fürdőszobák száma
2
Fekvés
kertre néző
Társaház kert
igen
Víz
Van
Gáz
Utcán
Villany
Van
Csatorna
Van
Kertkapcsolatos
igen
Tároló
Önálló
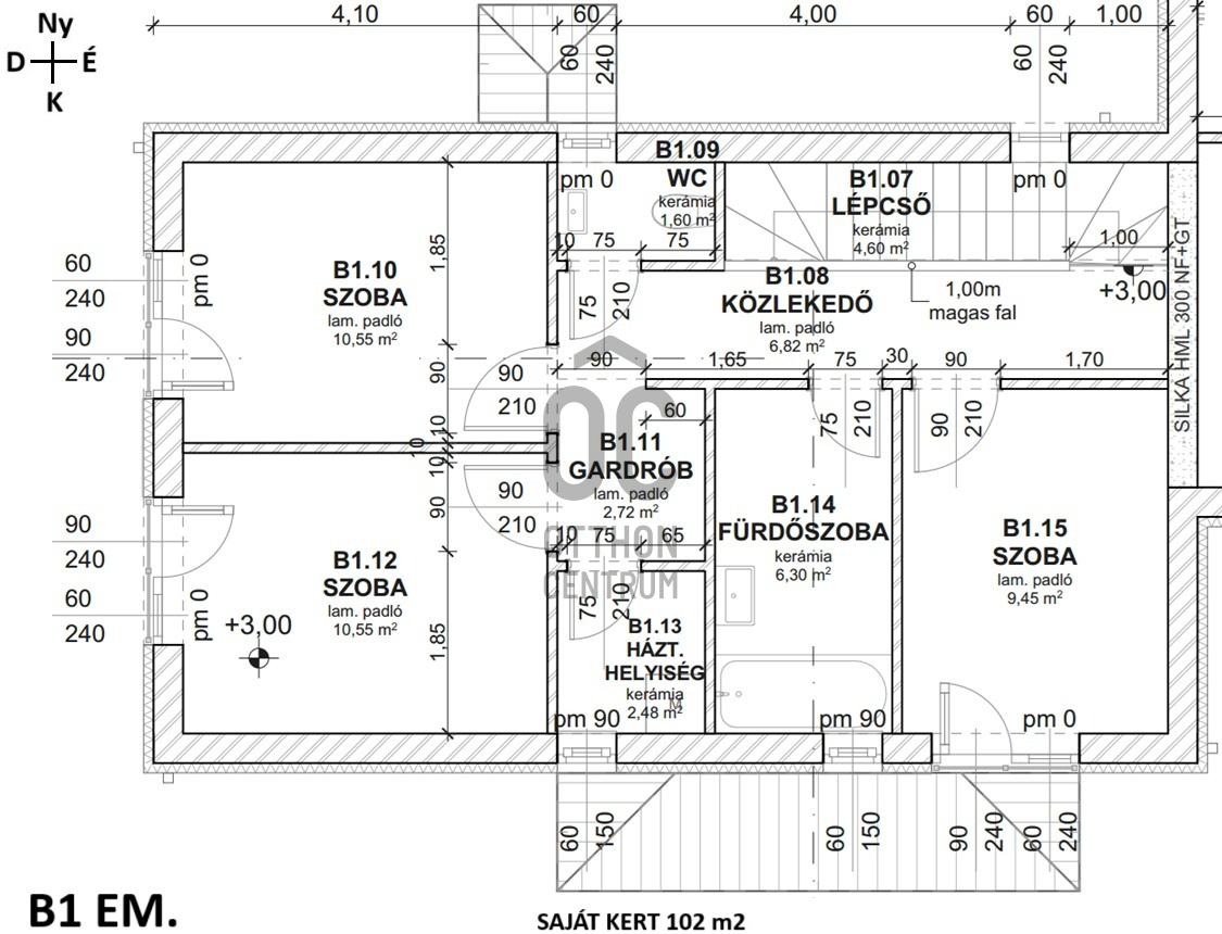
Helyiségek
nappali-konyha
31.59 m²
szoba
11.34 m²
fürdőszoba-wc
4.05 m²
terasz
7 m²
szoba
10.55 m²
szoba
10.55 m²
szoba
9.45 m²
fürdőszoba-wc
6.3 m²
wc-kézmosó
1.6 m²
Ruczek János
Hitelszakértő