Eladó újépítésű lakás, P4626-1-0A-06-001
Budapest IX. kerület, Rehabilitációs terület

133 410 900 Ft

344 000 €

  • 68m²
  • 3 szoba
  • 6. emelet

Energiatakarékos, új építésű otthonok!

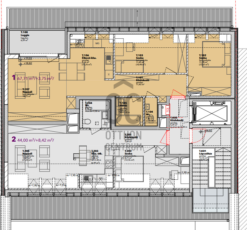
Az ingatlan a hatodik emeleten található. Tetőtéri lakás, de minimális ferde fallal és normál belmagassággal. Az összes terület a nettó 68 m2 + 3.75 m2 1.90 alatti terület fele + 7 m2 loggia fele.
A teraszról városi panoráma. A szemközti épület távol van, így a terasz komfortos érzetet nyújt.

Regisztrációs szám

P4626-1-0A-06-001

Az ingatlan adatai

Értékesités
eladó
Jogi státusz
új
Jelleg
lakás
Építési mód
tégla
Méret
68 m²
Bruttó méret
73,3 m²
Terasz / erkély mérete
6,5 m²
Fűtés
hőszivattyú
Belmagasság
260 cm
Tájolás
Kelet
Lépcsőház típusa
zárt lépcsőház
Állapot
Kiváló
Homlokzat állapota
Kiváló
Lépcsőház állapota
Kiváló
Építés éve
2025
Fürdőszobák száma
1
Fekvés
kertre néző
Víz
Van
Villany
Van
Csatorna
Van
Lift
van

Helyiségek

nappali
18.25 m²
konyha-étkező
11.25 m²
közlekedő
11.45 m²
fürdőszoba-wc
2.3 m²
wc-kézmosó
1.8 m²
hálószoba
12.52 m²
hálószoba
11.45 m²
loggia
6.59 m²
Ruczek Krisztina
Ruczek Krisztina

Hitelszakértő

Irodánk kínálatából - V. kerület - Hild tér

for sale new construction family house

Index image
22

for sale apartment

Index image
25

for sale panel apartment

Index image
data_sheet.details.realestate.section.main.otthonstart_flag.label
11

for sale apartment

Index image
18

for sale apartment

Index image
23

for sale family house

Index image
12