Elérhető Otthon Start hitellel
Eladó újépítésű lakás, P4146-1-01-02-006
Budapest VII. kerület, Külső Erzsébetváros

52 750 000 Ft

136 000 €

  • 35,1m²
  • 1 szoba
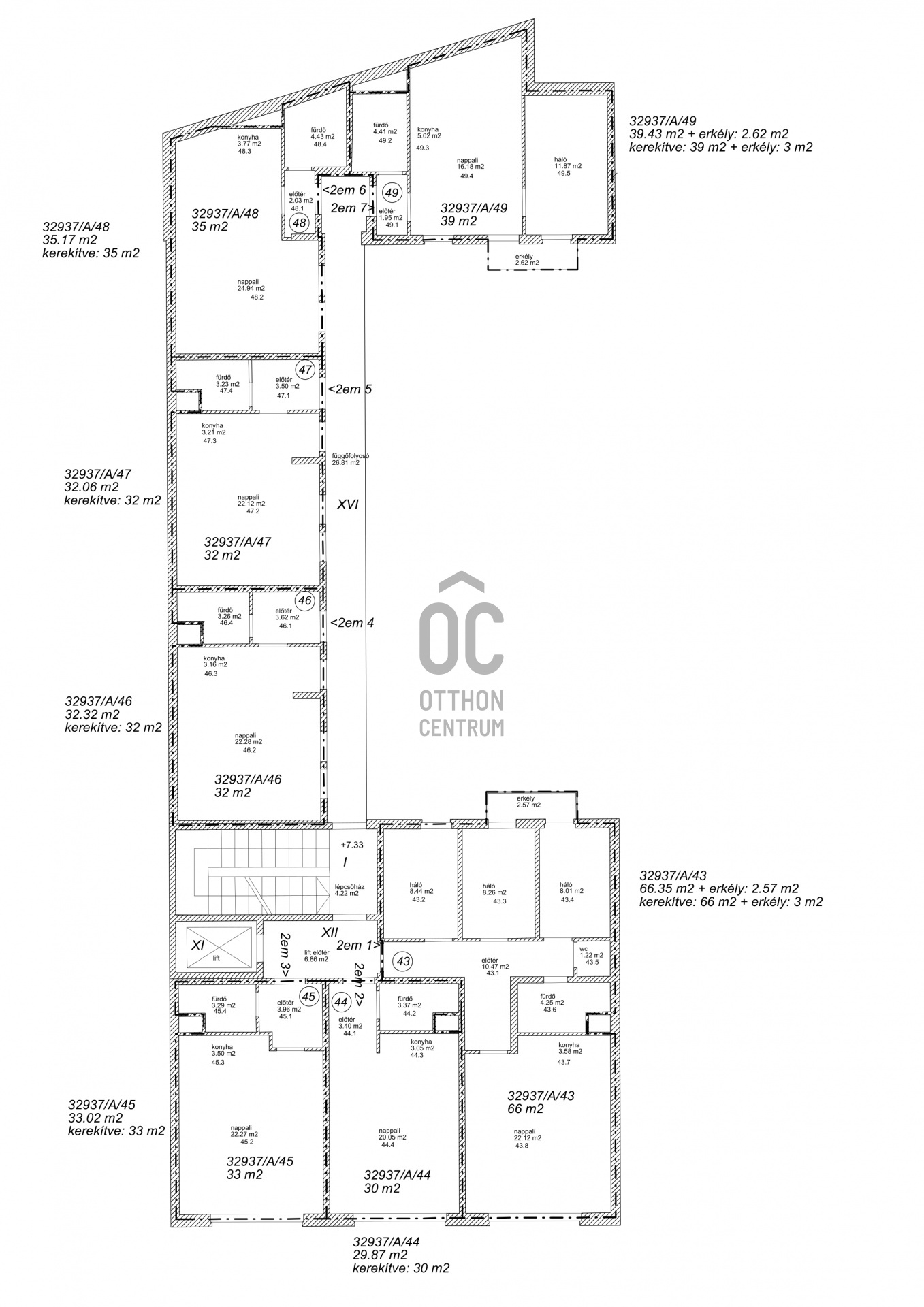
  • 2. emelet

ÚJ ÉPÍTÉSŰ ENERGIAHATÉKONY LAKÁSOK- VII. KERÜLET

A VII. kerület központi részén várja leendő tulajdonosait ez a 44+2 lakásos új építésű társasház.

A lakás:
- II. emeleti garzonlakás
- 35 nm
- nappali- konyha, előszoba, fürdőszoba elosztás
- K- i tájolás, udvari nézet

Regisztrációs szám

P4146-1-01-02-006

Az ingatlan adatai

Értékesités
eladó
Jogi státusz
új
Jelleg
lakás
Építési mód
tégla
Méret
35,1 m²
Bruttó méret
35 m²
Fűtés
elektromos, infra
Belmagasság
300 cm
Lakáson belüli szintszám
1
Tájolás
Kelet
Lépcsőház típusa
függőfolyosó
Állapot
Kiváló
Homlokzat állapota
Kiváló
Lépcsőház állapota
Kiváló
Pince
Közös
Környék
jó közlekedés, központi
Építés éve
2022
Fürdőszobák száma
1
Fekvés
udvari
Társaház kert
igen
Garázs
Külön vásárolható
Víz
Van
Gáz
Utcán
Villany
Van
Csatorna
Van
Lift
van
Tároló
Külön vásárolható

Helyiségek

nappali-konyha
28.71 m²
előszoba
2.03 m²
fürdőszoba-wc
4.43 m²
Tóth Róbert
Tóth Róbert

Hitelszakértő

Irodánk kínálatából - I. kerület - Krisztina körút

for sale new construction apartment

Index image
5

for sale apartment

Index image
data_sheet.details.realestate.section.main.otthonstart_flag.label
19

for sale apartment

Index image
18

for sale apartment

Index image
19

for sale apartment

Index image
22

for rent commercial property

Index image
36

for rent apartment

Index image
38