Elérhető Otthon Start hitellel
Eladó családi ház,
OHH177257
Zselicszentpál
64 900 000 Ft
167 000 €
- 185,5m²
- 6 szoba
- földszint




















































Otthon a Zselic varázslatos dombjai között – tágas családi ház Zselicszentpálon
Ha szereted a természet közelségét, a madarak reggeli énekét és a friss erdei levegőt, miközben fontos számodra a város elérhetősége is, akkor ez az ingatlan IGAZI RITKASÁG lesz számodra.
Zselicszentpálon, Kaposvártól mindössze 8 KILOMÉTERRE, a ZSELICI-DOMBSÁG SZÍVÉBEN kínálunk eladásra egy HÁROMSZINTES, 190 M²-ES, minden igényt kielégítő CSALÁDI HÁZAT.
A ház, ahol a tér és a minőség találkozik
A 2005-BEN ÉPÜLT otthon POROTHERM TÉGLÁBÓL, BETON ALAPPAL ÉS FÖDÉMMEL készült, így időtálló és masszív.
A VAILLANT CIRKÓKAZÁN mellett egy VEGYES TÜZELÉSŰ KAZÁN is gondoskodik a meleg otthonról, kiegészítve a 3 HŰTŐ-FŰTŐ KLÍMÁVAL.
A HŐSZIGETELT FA NYÍLÁSZÁRÓK, a TERRÁN COPPO TETŐCSERÉP és a RÉZ ELEKTROMOS HÁLÓZAT mind a gondos tervezésről árulkodnak.
Átgondolt elrendezés, kényelmes mindennapok
A SZUTERÉN (50 M²) praktikus megoldásokat kínál: garázs, fatároló és kazánház található itt.
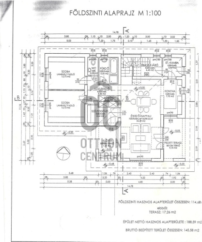
A FÖLDSZINTEN (115 M² EBBŐL 17 M² TERASZ) tágas, amerikai konyhás nappali, két hálószoba, fürdő, külön WC és kamra vár.
A TETŐTÉRBEN (41 M²) újabb nappali, két szoba, fürdő-WC és mosókonyha kapott helyet – akár KÜLÖN BEJÁRATÚ LAKRÉSZKÉNT is funkcionálhat, ha külső lépcsőt építesz hozzá.
A kert, ahol megáll az idő
A PARKOSÍTOTT UDVAR minden évszakban más arcát mutatja – itt valóban érezni lehet a Zselic csendjét és nyugalmát.
A 40 M²-ES MELLÉKÉPÜLET vízzel, villannyal, garázzsal és műhellyel bőven ad lehetőséget akár HOBBIHOZ, MUNKÁHOZ VAGY VENDÉGHÁZ KIALAKÍTÁSÁHOZ.
A FEDETT PIHENŐ ÉS A KEMENCE pedig hívogat egy nyári vacsorára vagy egy meghitt őszi estére.
A Zselic hangulata – természet, tiszta levegő, igazi harmónia
Zselicszentpál a ZSELICI TÁJVÉDELMI KÖRZET közelében fekszik – ahol az erdők zöldje, a dombok hullámzása és a kristálytiszta levegő mindennap része az életnek.
A település SAJÁT IVÓVÍZKÚTJÁBÓL nyert víz kiváló minőségű, a közösség csendes, barátságos, és mindez Kaposvártól mindössze néhány perc autóútra.
Egy ház, ami többet ad, mint négy fal
Masszív szerkezet, gazdag felszereltség, harmóniát árasztó környezet – EGY OTTHON, AHOL A TERMÉSZET ÉS A KÉNYELEM KÉZ A KÉZBEN JÁR.
Regisztrációs szám
OHH177257
Az ingatlan adatai
Értékesités
eladó
Jogi státusz
használt
Jelleg
ház
Építési mód
tégla
Méret
185,5 m²
Telek méret
1 278 m²
Terasz / erkély mérete
9 m²
Fűtés
Gáz cirkó
Állapot
Jó
Építés éve
2005
Helyiségek
szoba
12 m²
szoba
12 m²
közlekedő
5 m²
konyha
7 m²
kamra
3 m²
nappali
31 m²
egyéb
5 m²
terasz
9 m²
lépcsőház
4 m²
háztartási helyiség
8 m²
tároló
6 m²
tároló
34 m²
háztartási helyiség
7 m²
fürdőszoba
2 m²
szoba
27 m²
fürdőszoba
5 m²
wc
2 m²
közlekedő
7 m²
garázs
16 m²
garázs
16 m²

Horváth Szabina
Hitelszakértő