Elérhető Otthon Start hitellel
Eladó családi ház,
OHH176801
Győr, Győrszabadhegy
129 000 000 Ft
330 000 €
- 160m²
- 5 szoba










Győr egyik legkedveltebb városrészében, Szabadhegyen kínálunk megvételre egy 160 m²-es, két szinten kialakított, nappali + 5 szobás családi házat.
Az ingatlan 2008-ban teljes körű átépítésen és bővítésen esett át, így egy korszerű, ugyanakkor barátságos hangulatú otthon született, amely kényelmes életteret biztosít akár nagyobb család számára is.
A 470 m²-es telek két utcáról is megközelíthető, jól kihasználható, rendezett, és igazi kikapcsolódást kínál a fedett terasz, a grillező rész, illetve a kertben található melléképületek. Az autó beállásáról elektromos kapu és kényelmes parkolófelület gondoskodik.
Az ingatlan főbb jellemzői:
* masszív, hőszigetelt tégla falazat, korszerű tetőszerkezet
* kondenzációs gázkazán radiátorokkal és padlófűtéssel, valamint fatüzelésű kandalló sütővel
* 2 inverteres klíma a nappaliban és az emeleten
* szigetelt fa nyílászárók, minőségi belsőajtók és fa lépcső
* száraz, jól szigetelt pince (25 m²) közvetlen lakótéri kapcsolattal
* biztonsági riasztórendszer
* „B” energetikai besorolás
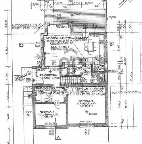
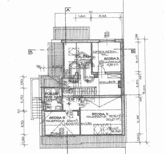
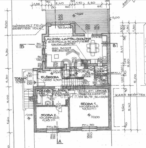
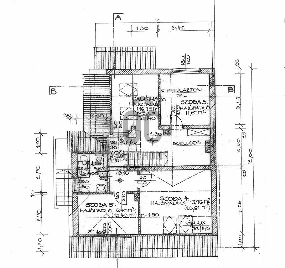
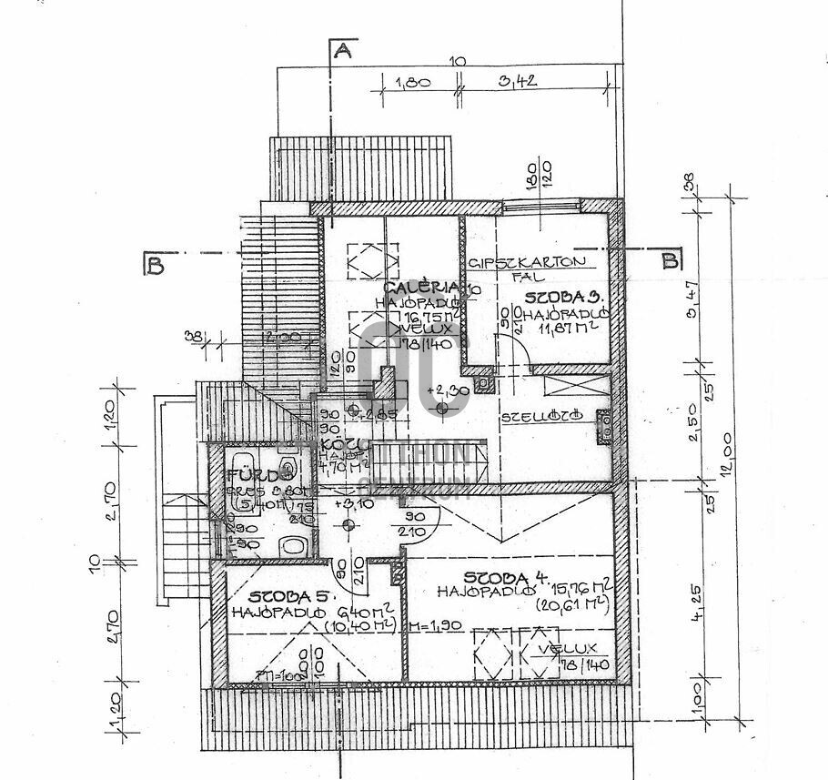
A ház elosztása átgondolt: a földszinten tágas nappali-étkező, konyha, fürdőszoba és két hálószoba található, míg az emeleten további három szoba, egy második fürdő és egy hangulatos galériás tér kapott helyet. A 19 m²-es terasz szinte a nappali természetes meghosszabbítása, ahol reggeli kávé vagy esti vacsora egyaránt élménnyé válik.
A lokáció kiemelkedő: óvoda, iskola, bevásárlási lehetőségek, gyógyszertár, posta és buszmegálló gyalogosan elérhetők, míg az M1 autópálya, az Audi-gyár és az Ipari Park autóval néhány perc alatt megközelíthető.
Regisztrációs szám
OHH176801
Az ingatlan adatai
Értékesités
eladó
Jogi státusz
használt
Jelleg
ház
Építési mód
tégla
Méret
160 m²
Telek méret
470 m²
Fűtés
Gáz cirkó
Állapot
Jó
Építés éve
2008
Helyiségek
előszoba
6.4 m²
közlekedő
3.78 m²
szoba
23.2 m²
szoba
11.48 m²
fürdőszoba
4.83 m²
közlekedő
4.75 m²
nappali
24 m²
wc
1.8 m²
kamra
1.8 m²
konyha
8 m²
egyéb
16.75 m²
közlekedő
4.7 m²
szoba
11.87 m²
szoba
15.76 m²
szoba
6.4 m²
fürdőszoba
3.8 m²

Dr. Táncos Mónika
Hitelszakértő