data_sheet.details.realestate.section.main.otthonstart_flag.label
For sale apartment,
H513558
Győr, Győr-Belváros
69,900,000 Ft
186,000 €
- 60m²
- 4 Rooms
- ground floor
Dupla galériás, különleges hangulatú földszinti lakás eladó Győr-Belvárosában!
Győr belvárosának egyik legkedveltebb részén kínálunk eladásra egy jó állapotú, földszinti, dupla galériás lakást, amely egyedi kialakításának köszönhetően rendkívül praktikus és élhető.
A galériák beépítésével az ingatlan bruttó 76 m² lakóteret biztosít tulajdonosának. Az elrendezés átgondolt és funkcionális:
•tágas konyha–étkező
•fürdőszoba sarokkáddal, zuhanyzóval és WC-vel
•háztartási helyiség
•kamra
•külön kialakított, rejtett belső padlástér, amely kiváló pakolási lehetőséget nyújt
Az ingatlanhoz önálló pince tartozik, valamint a nagy méretű, közös belső udvar nyugodt kikapcsolódást biztosít a lakók számára.
A fűtést gázcirkó biztosítja. A 60 cm vastag falaknak köszönhetően a lakás télen–nyáron kellemes hőmérsékletű. A felújítás során a víz- és villamos hálózat teljes cseréje megtörtént, a belső terek pedig praktikusan, észszerűen kerültek átalakításra.
A járólapos helyiségekben padlófűtés, míg a parkettás szobákban radiátorok gondoskodnak a komfortos hőérzetről.
Központi elhelyezkedése kiváló: egyetem, fürdő, sétány, vízpart és minden fontos szolgáltatás néhány percen belül elérhető.
Egyedi adottságú belvárosi otthon vagy kiváló befektetés – ritka lehetőség Győr szívében.
További kérdések vagy megtekintés esetén keressen bizalommal.
Hitelre van szüksége?
Az Otthon Centrum, az ország egyik legnagyobb és legmegbízhatóbb hitelközvetítője, teljes körű és díjmentes hitelügyintézéssel, valamint biztosításkötéssel segíti ügyfeleit.
Kérje kollégáinktól személyre szabott ajánlatát, és találja meg a legjobb megoldást gyorsan és egyszerűen!
A galériák beépítésével az ingatlan bruttó 76 m² lakóteret biztosít tulajdonosának. Az elrendezés átgondolt és funkcionális:
•tágas konyha–étkező
•fürdőszoba sarokkáddal, zuhanyzóval és WC-vel
•háztartási helyiség
•kamra
•külön kialakított, rejtett belső padlástér, amely kiváló pakolási lehetőséget nyújt
Az ingatlanhoz önálló pince tartozik, valamint a nagy méretű, közös belső udvar nyugodt kikapcsolódást biztosít a lakók számára.
A fűtést gázcirkó biztosítja. A 60 cm vastag falaknak köszönhetően a lakás télen–nyáron kellemes hőmérsékletű. A felújítás során a víz- és villamos hálózat teljes cseréje megtörtént, a belső terek pedig praktikusan, észszerűen kerültek átalakításra.
A járólapos helyiségekben padlófűtés, míg a parkettás szobákban radiátorok gondoskodnak a komfortos hőérzetről.
Központi elhelyezkedése kiváló: egyetem, fürdő, sétány, vízpart és minden fontos szolgáltatás néhány percen belül elérhető.
Egyedi adottságú belvárosi otthon vagy kiváló befektetés – ritka lehetőség Győr szívében.
További kérdések vagy megtekintés esetén keressen bizalommal.
Hitelre van szüksége?
Az Otthon Centrum, az ország egyik legnagyobb és legmegbízhatóbb hitelközvetítője, teljes körű és díjmentes hitelügyintézéssel, valamint biztosításkötéssel segíti ügyfeleit.
Kérje kollégáinktól személyre szabott ajánlatát, és találja meg a legjobb megoldást gyorsan és egyszerűen!
Registration Number
H513558
Property Details
Sales
for sale
Legal Status
used
Character
apartment
Construction Method
brick
Net Size
60 m²
Gross Size
76 m²
Heating
Gas circulator
Ceiling Height
380 cm
Number of Levels Within the Property
2
Orientation
South-West
Staircase Type
enclosed staircase
Condition
Good
Condition of Facade
Average
Condition of Staircase
Good
Basement
Independent
Neighborhood
quiet, good transport, green, central
Year of Construction
1950
Number of Bathrooms
1
Position
street-facing
Common Costs
12600
Water
Available
Gas
Available
Electricity
Available
Sewer
Available
Connected to Garden
yes
Distance to Waterfront
200 meters
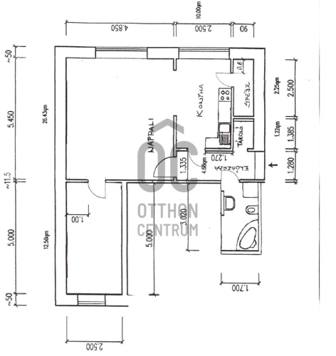
Rooms
room
26 m²
room
12.5 m²
gallery
8 m²
gallery
8 m²
bathroom-toilet
5 m²
corridor
3.5 m²
open-plan living and dining room
10 m²
laundry room
1.5 m²
pantry
1.5 m²
Dr. Táncos Mónika
Credit Expert