77 846 810 Ft
199 000 €
- 70m²
- 3 szoba
Leugrana a strandra? Lépjen egy nagyot!
Ábrahámhegyen, a Balaton partjától mindössze 50 méterre, a strand bejáratától 30 méternyire eladó, ez a saroktelki, csodás kis nyaraló!
Fantasztikus elhelyezkedése révén igazi álomotthon a nyári tartózkodásra!
A kert 600 nm-es, amely üdülőterületi elhelyezkedése révén 20%-ban beépíthető.
Egész évben gondozott, az utca felé magasan, élő zölddel keretezett, így a kertbe senki nem lát be. Kis kapu nyílik a strand felé, így a lehető legkényelmesebb a lejutás a partra, gyalogosan mintegy 3 perc alatt a vízben úszhatunk.
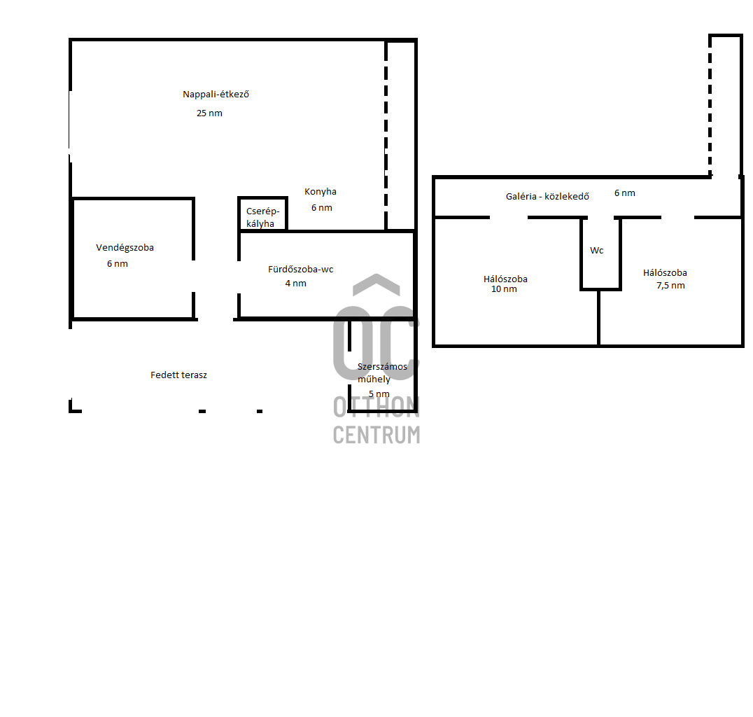
Jelenleg az épület egy 1985-ben, kő alapra telepített, könnyűszerkezetes típusház, amelynek hatalmas déli terasza és egy fedett, így beépíthető része is van.
A ház jelenlegi felosztásában 42 nm alapterületű, plusz 28 nm-es beépített tetőtérrel rendelkezik. Ezen felül a terasz és egy kis műhely még 16,5 nm.
A földszinten nagy, egylégterű nappali-étkező-konyha van, a terasz felé dupla teraszajtóval egybenyitható a kinti térrel. Vendégszoba és fürdőszoba található még itt, a nappaliban pedig egy csodás cserépkályha, amely a téli időszak alatt is befűti a házat.
Az emelet galériás kialakítású, egy nagyobb és egy kisebb hálószoba van itt, plusz wc, a szobákban mosdók és gardrób van.
Bájos, otthonos hangulatú, nagyon szeretett és jól karbantartott ingatlan, amely idén is friss külső festést kapott a fa felületeken.
Családi okokból kerül eladásra, a tulajdonos a vételárat euróban várja.
Fantasztikus elhelyezkedése révén igazi álomotthon a nyári tartózkodásra!
A kert 600 nm-es, amely üdülőterületi elhelyezkedése révén 20%-ban beépíthető.
Egész évben gondozott, az utca felé magasan, élő zölddel keretezett, így a kertbe senki nem lát be. Kis kapu nyílik a strand felé, így a lehető legkényelmesebb a lejutás a partra, gyalogosan mintegy 3 perc alatt a vízben úszhatunk.
Jelenleg az épület egy 1985-ben, kő alapra telepített, könnyűszerkezetes típusház, amelynek hatalmas déli terasza és egy fedett, így beépíthető része is van.
A ház jelenlegi felosztásában 42 nm alapterületű, plusz 28 nm-es beépített tetőtérrel rendelkezik. Ezen felül a terasz és egy kis műhely még 16,5 nm.
A földszinten nagy, egylégterű nappali-étkező-konyha van, a terasz felé dupla teraszajtóval egybenyitható a kinti térrel. Vendégszoba és fürdőszoba található még itt, a nappaliban pedig egy csodás cserépkályha, amely a téli időszak alatt is befűti a házat.
Az emelet galériás kialakítású, egy nagyobb és egy kisebb hálószoba van itt, plusz wc, a szobákban mosdók és gardrób van.
Bájos, otthonos hangulatú, nagyon szeretett és jól karbantartott ingatlan, amely idén is friss külső festést kapott a fa felületeken.
Családi okokból kerül eladásra, a tulajdonos a vételárat euróban várja.
Regisztrációs szám
NY013023
Az ingatlan adatai
Értékesités
eladó
Jogi státusz
használt
Jelleg
nyaraló
Típus
ház
Építési mód
könnyűszerkezetes
Méret
70 m²
Bruttó méret
70 m²
Telek méret
598 m²
Fűtés
cserépkályha (vegyes)
Belmagasság
260 cm
Lakáson belüli szintszám
2
Tájolás
Dél
Panoráma
Zöldre néző panoráma
Állapot
Jó
Homlokzat állapota
Jó
Környék
zöld, központi
Építés éve
1980
Fürdőszobák száma
1
Víz
Van
Villany
Van
Csatorna
Van
Vízpart távolsága
vízparti
Helyiségek
nappali
25 m²
dolgozószoba
6 m²
hálószoba
10 m²
hálószoba
7.5 m²
Edve János
Hitelszakértő