Eladó lakás, H515416
Budapest XIII. kerület, Újlipótváros, Bessenyei utca

174 000 000 Ft

448 000 €

  • 90m²
  • 3 szoba
  • 9. emelet
Kiemelt megbízás

XIII. Újlipótváros, Nagy teraszos, 3 szobás lakás, dupla komfort

XIII. Újlipótváros - Cézár Házak
Legfelső emeleten, a IX. emeleten eladóvá vált egy nagy teraszos, panorámás lakás
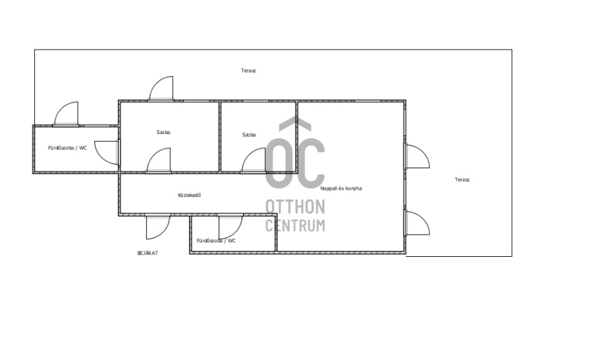
Ingatlan 3 szobás, nappali + 2 szoba, dupla komfortos
Alapterülete a tulajdoni lapon: 90nm
Hasznos alapterület: 68nm + 45nm terasz
Fűtés: házközponti egyedi méréssel
Közös költség 395 Ft/nm/hó = 35.550.- Ft: 0-24 portaszolgálat, lift, felújítási alap, és az egyéb kötelező költségek (takarítás, szemét .. )
Víz, fűtés és villany egyedi, saját mérőórákkal
3 db Klíma van felszerelve
Belmagasság: 270cm
Teraszra ki lett vezetve a víz
Megtekintés előre egyeztetett időpontokban, hétköznaponként

Regisztrációs szám

H515416

Az ingatlan adatai

Értékesités
eladó
Jogi státusz
használt
Jelleg
lakás
Építési mód
tégla
Méret
90 m²
Bruttó méret
110 m²
Terasz / erkély mérete
48 m²
Fűtés
központi fűtés
Belmagasság
290 cm
Lakáson belüli szintszám
1
Tájolás
Dél-kelet
Lépcsőház típusa
zárt lépcsőház
Állapot
Homlokzat állapota
Lépcsőház állapota
Építés éve
2005
Fürdőszobák száma
2
Fekvés
utcai
Közös költség
35550
Víz
Van
Villany
Van
Csatorna
Van
Lift
van

Helyiségek

nappali-konyha
24 m²
szoba
12 m²
szoba
8.5 m²
fürdőszoba-wc
12 m²
fürdőszoba-wc
2 m²
terasz
45 m²
Térmegi László
Térmegi László

Hitelszakértő

Irodánk kínálatából - XX. kerület - Török Flóris utca

for sale semi-detached house

Index image
data_sheet.details.realestate.section.main.otthonstart_flag.label
17

for sale apartment

Index image
data_sheet.details.realestate.section.main.otthonstart_flag.label
23

for sale apartment

Index image
25

for sale apartment

Index image
23

eladó családi ház

Index image
Elérhető Otthon Start hitellel
19

for sale family house

Index image
data_sheet.details.realestate.section.main.otthonstart_flag.label
47

for sale apartment

Index image
data_sheet.details.realestate.section.main.otthonstart_flag.label
13

for sale apartment

Index image
data_sheet.details.realestate.section.main.otthonstart_flag.label
32

for sale apartment

Index image
27

for sale apartment

Index image
21