249 000 000 Ft
641 000 €
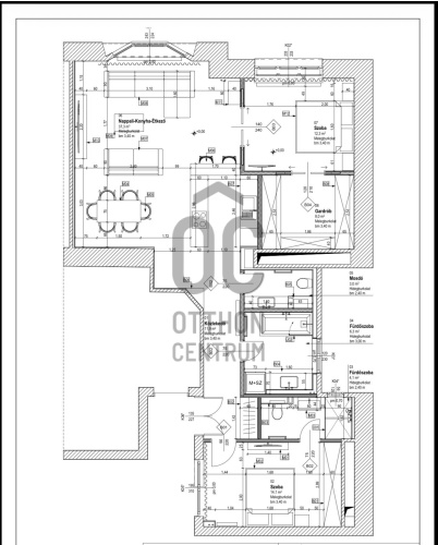
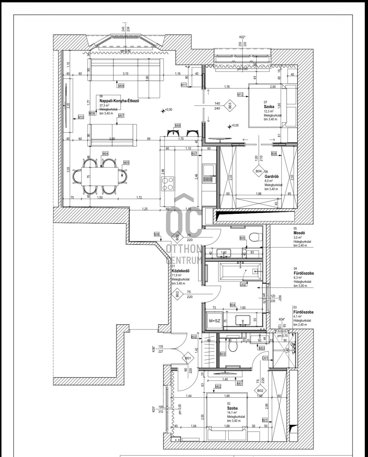
- 96m²
- 3 szoba
- 3. emelet
Exclusive, fully furnished premium apartment for sale in the V. district, close to the Danube — on Falk Miksa Street ✨ We offer for sale a uniquely equipped apartment in one of Budapest's most prestigious downtown areas, right near the Parliament and the Danube. - Unique furnishings and interior design - Custom-made, built-in wooden furniture in every room - Spacious, fully equipped walk-in closet - Solid oak furniture in the living room and bedrooms - Additional premium oak furnishings are available as part of the agreement - Custom-made, high-quality curtains (valued at approximately 4 million HUF) - Equipped, modern kitchen - Built-in, quality kitchen appliances - Premium washing machine and dryer **Technology and Comfort** - Installed fiber optic internet (with an active subscription) - Alarm system ❄️ **Heating, Cooling, Hot Water** - Several premium air conditioning units - Central heating — very warm and economical - Double-row radiators in the apartment - Combined (electric + central) towel rail radiators in the bathrooms - Two 120-liter hot water tanks **Windows and Other Extras** - New wooden windows with mosquito nets - Child safety barriers in the bathrooms - Sound and thermal insulation on the neighbor's side - Quality light fixtures (valued at several million HUF), which will remain in the apartment.
Regisztrációs szám
H515371
Az ingatlan adatai
Értékesités
eladó
Jogi státusz
használt
Jelleg
lakás
Építési mód
tégla
Méret
96 m²
Bruttó méret
96 m²
Fűtés
mérés nélküli, központi fűtés
Belmagasság
330 cm
Tájolás
Dél-nyugat
Lépcsőház típusa
körfolyosó
Állapot
Kiváló
Homlokzat állapota
Kiváló
Lépcsőház állapota
Jó
Környék
csendes, jó közlekedés, központi
Építés éve
1950
Fürdőszobák száma
2
Fekvés
utcai
Közös költség
26000
Víz
Van
Villany
Van
Csatorna
Van
Lift
van
Helyiségek
nappali
37.3 m²
hálószoba
12.3 m²
gardrób
8 m²
wc-kézmosó
3 m²
fürdőszoba
6.3 m²
közlekedő
11.9 m²
fürdőszoba-wc
4.1 m²
hálószoba
14.1 m²