Elérhető Otthon Start hitellel
Eladó tanya,
H514740
Szekszárd, Parászta
36 000 000 Ft
92 000 €
- 182m²
- 1 szoba
Eladó 3 tanya egyben, fúrt kúttal
Fejlesztési ingatlan egymás melletti területekkel eladó.
Művelés alól kivett terület.
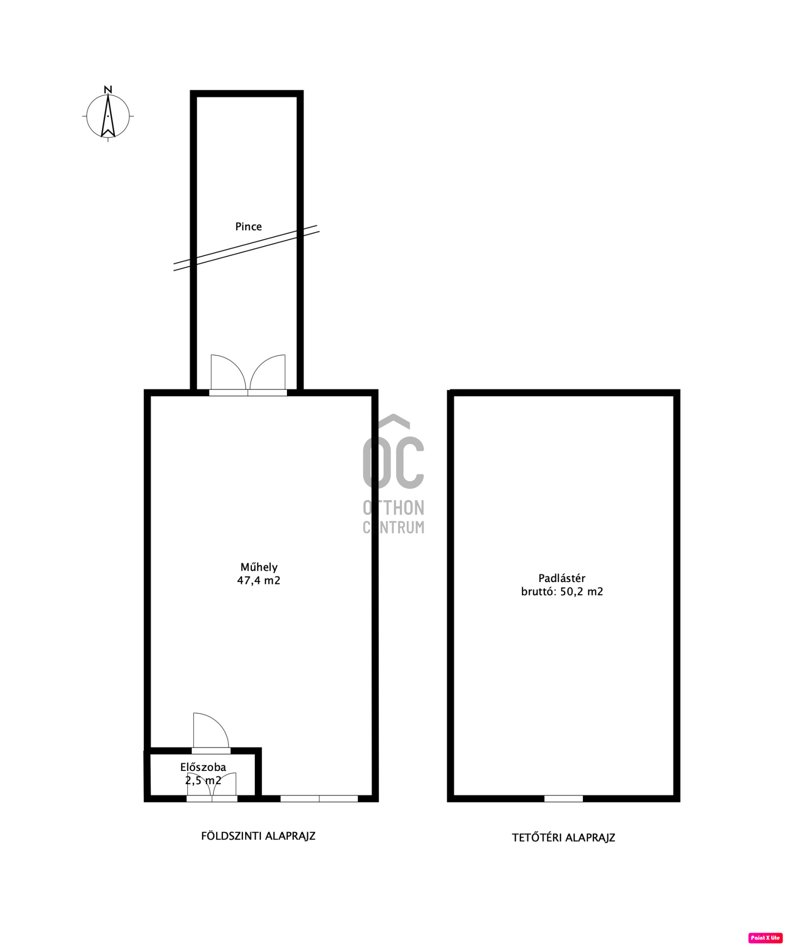
1. 30 m2 alapterületű tanya szoba, fürdőszoba-WC, konyha-étkező, tároló helyiségekkel alakította tulajdonosa lakhatóvá. A villany 16 A, a víz fúrt kútról van bevezetve a házba. Az épület 5 cm vastag nikecel falszigetelést, és 15 cm vastag kőzetgyapot hőszigetelést kapott. Fatüzelésű kazán adja a téli időszakban a meleget.
2. 50 m2-es tanya. Új tetőszerkezettel, CREATON cserépfedéssel, 15 cm vastag nikecel homlokzat szigeteléssel, és 15 cm-es kőzetgyapot födémszigeteléssel, kifalazott pincével korszerűsítette tulajdonosa az épületet. Az épületben 3x32 A áram van az épületben, és az 1-es tanya fúrt kútjáról van bevezetve a víz. Az épületben klíma, villanykazán, vízlágyító, és nitrát mentesítő van.
3. 82 m2-es tanya elkezdték a legnagyobb épület felújítását is. A pincét felújította a tulajdonosa és elkezdte a földszinti rész hozzáépítését is. Az épületben villany, és az 1-es tanya fúrt kútjáról víz van bevezetve. Ezen a tanyán még további állattartó épületek is kialakításra kerültek.
Az ingatlanokhoz még tartozik egy elkerített tavacska is.
Menjünk nézzük meg hogyan alakítaná, illetve hasznosítaná ezt a tanyát.
Művelés alól kivett terület.
1. 30 m2 alapterületű tanya szoba, fürdőszoba-WC, konyha-étkező, tároló helyiségekkel alakította tulajdonosa lakhatóvá. A villany 16 A, a víz fúrt kútról van bevezetve a házba. Az épület 5 cm vastag nikecel falszigetelést, és 15 cm vastag kőzetgyapot hőszigetelést kapott. Fatüzelésű kazán adja a téli időszakban a meleget.
2. 50 m2-es tanya. Új tetőszerkezettel, CREATON cserépfedéssel, 15 cm vastag nikecel homlokzat szigeteléssel, és 15 cm-es kőzetgyapot födémszigeteléssel, kifalazott pincével korszerűsítette tulajdonosa az épületet. Az épületben 3x32 A áram van az épületben, és az 1-es tanya fúrt kútjáról van bevezetve a víz. Az épületben klíma, villanykazán, vízlágyító, és nitrát mentesítő van.
3. 82 m2-es tanya elkezdték a legnagyobb épület felújítását is. A pincét felújította a tulajdonosa és elkezdte a földszinti rész hozzáépítését is. Az épületben villany, és az 1-es tanya fúrt kútjáról víz van bevezetve. Ezen a tanyán még további állattartó épületek is kialakításra kerültek.
Az ingatlanokhoz még tartozik egy elkerített tavacska is.
Menjünk nézzük meg hogyan alakítaná, illetve hasznosítaná ezt a tanyát.
Regisztrációs szám
H514740
Az ingatlan adatai
Értékesités
eladó
Jogi státusz
használt
Jelleg
ház
Építési mód
tégla
Méret
182 m²
Bruttó méret
182 m²
Telek méret
5 730 m²
Terasz / erkély mérete
2,7 m²
Belmagasság
232 cm
Tájolás
Dél
Panoráma
Zöldre néző panoráma
Állapot
Jó
Homlokzat állapota
Jó
Környék
csendes, jó közlekedés, zöld
Építés éve
1980
Fürdőszobák száma
1
Víz
Van
Villany
Van
Helyiségek
szoba
13.9 m²
konyha-étkező
10.6 m²
fürdőszoba-wc
3.8 m²
tároló
1.6 m²
Moczok Ágnes
Hitelszakértő