172 900 000 Ft
447 000 €
- 174,8m²
- 7 szoba
Panorámás kétgenerációs ház!
Panorámás kétgenerációs ház – örökpanorámás otthon Pécelen, az összetartozás és a nyugalom szigete
Képzeld el, hogy minden reggel a táj látványára ébredsz. A nappaliból és a teraszról is eléd táruló örökpanoráma nem csupán kilátás – hanem életérzés. Egy csésze kávé a felkelő nap fényében, este pedig a naplemente aranyló színei kísérik a családi beszélgetéseket. Itt a horizont a mindennapok része.
Ez a 175 m²-es ikerház + 55 m² szuterén Pécel csendes, barátságos részén található, ahol a madárcsicsergés és a nyugalom valódi érték. A 450 m²-es telek intim, elszeparált kertrészt kínál halastóval – egy saját, privát oázist, ahol a gyerekek biztonságban játszhatnak, a nagyszülők pihenhetnek, a család pedig együtt élvezheti a természet közelségét.
Az intim kert valódi menedék
Nincsenek kíváncsi tekintetek, csak a zöld, a víz csobogása és a meghitt családi pillanatok. Itt a hétvégi ebédek, kerti sütögetések és nyári esték valóban különleges hangulatban telnek.
Kétgenerációs, duplakomfortos kialakítás – külön almérőkkel
Tökéletes választás összeköltöző családok számára, akik együtt, mégis külön szeretnének élni. A közelség biztonságot ad, a szeparált életterek pedig megőrzik az önállóságot és a privát szférát.
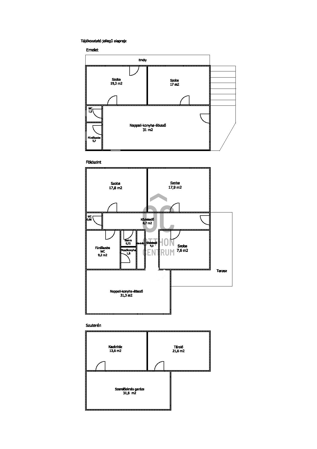
**Emelet (74,5 m²):**
– 2 különnyíló szoba
– amerikai konyhás nappali
– fürdőszoba
**Földszint (100,3 m²):**
– amerikai konyhás nappali
– 3 különnyíló szoba
– fürdőszoba
– mosókonyha
– 2 db WC
- kamra
**Szuterén (55 m²):**
– szerelőaknás garázs
– kazánház
– tároló
A szuterén lehetőséget biztosít +1 külön lakrész kialakítására is.
A tágas nappali a ház szíve – az a tér, ahol generációk találkoznak, ahol a közös vacsorák, ünnepek és hétköznapi beszélgetések emlékké válnak. A panorámára nyíló terasz pedig minden évszakban hozzátesz ehhez az élményhez.
Műszaki tartalom és komfort:
– 2022-ben teljes körű felújítás
– műanyag nyílászárók redőnnyel és szúnyoghálóval
– gáz cirkó fűtés
– klíma
– jó állapot, azonnal költözhető
- az ingatlanban folyamatos esztétikai felújítás van: szagelszívó beépítése, konyha csempézése, szegőlécek, küszöbök felhelyezése, a korlátok cseréje.
A kertben térkövezés, kerítés befejezése is a vételár részét képezi.
Kiváló infrastruktúra
Buszmegálló néhány perc sétára, a környéken iskola, óvoda, üzletek – minden adott a kényelmes, biztonságos családi élethez.
Ez az ingatlan több mint egy ház. Ez egy olyan otthon, ahol a panoráma a mindennapok része, a kert a családi élet színtere, és ahol az összeköltözés nem kompromisszum, hanem lehetőség egy még szorosabb, még harmonikusabb életre.
Az ilyen adottságú, örökpanorámás, intim kerttel rendelkező kétgenerációs otthon ritka kincs a piacon.
Ha szeretnéd személyesen is átélni ezt az életérzést, keress bizalommal privát megtekintés egyeztetéséhez.
Képzeld el, hogy minden reggel a táj látványára ébredsz. A nappaliból és a teraszról is eléd táruló örökpanoráma nem csupán kilátás – hanem életérzés. Egy csésze kávé a felkelő nap fényében, este pedig a naplemente aranyló színei kísérik a családi beszélgetéseket. Itt a horizont a mindennapok része.
Ez a 175 m²-es ikerház + 55 m² szuterén Pécel csendes, barátságos részén található, ahol a madárcsicsergés és a nyugalom valódi érték. A 450 m²-es telek intim, elszeparált kertrészt kínál halastóval – egy saját, privát oázist, ahol a gyerekek biztonságban játszhatnak, a nagyszülők pihenhetnek, a család pedig együtt élvezheti a természet közelségét.
Az intim kert valódi menedék
Nincsenek kíváncsi tekintetek, csak a zöld, a víz csobogása és a meghitt családi pillanatok. Itt a hétvégi ebédek, kerti sütögetések és nyári esték valóban különleges hangulatban telnek.
Kétgenerációs, duplakomfortos kialakítás – külön almérőkkel
Tökéletes választás összeköltöző családok számára, akik együtt, mégis külön szeretnének élni. A közelség biztonságot ad, a szeparált életterek pedig megőrzik az önállóságot és a privát szférát.
**Emelet (74,5 m²):**
– 2 különnyíló szoba
– amerikai konyhás nappali
– fürdőszoba
**Földszint (100,3 m²):**
– amerikai konyhás nappali
– 3 különnyíló szoba
– fürdőszoba
– mosókonyha
– 2 db WC
- kamra
**Szuterén (55 m²):**
– szerelőaknás garázs
– kazánház
– tároló
A szuterén lehetőséget biztosít +1 külön lakrész kialakítására is.
A tágas nappali a ház szíve – az a tér, ahol generációk találkoznak, ahol a közös vacsorák, ünnepek és hétköznapi beszélgetések emlékké válnak. A panorámára nyíló terasz pedig minden évszakban hozzátesz ehhez az élményhez.
Műszaki tartalom és komfort:
– 2022-ben teljes körű felújítás
– műanyag nyílászárók redőnnyel és szúnyoghálóval
– gáz cirkó fűtés
– klíma
– jó állapot, azonnal költözhető
- az ingatlanban folyamatos esztétikai felújítás van: szagelszívó beépítése, konyha csempézése, szegőlécek, küszöbök felhelyezése, a korlátok cseréje.
A kertben térkövezés, kerítés befejezése is a vételár részét képezi.
Kiváló infrastruktúra
Buszmegálló néhány perc sétára, a környéken iskola, óvoda, üzletek – minden adott a kényelmes, biztonságos családi élethez.
Ez az ingatlan több mint egy ház. Ez egy olyan otthon, ahol a panoráma a mindennapok része, a kert a családi élet színtere, és ahol az összeköltözés nem kompromisszum, hanem lehetőség egy még szorosabb, még harmonikusabb életre.
Az ilyen adottságú, örökpanorámás, intim kerttel rendelkező kétgenerációs otthon ritka kincs a piacon.
Ha szeretnéd személyesen is átélni ezt az életérzést, keress bizalommal privát megtekintés egyeztetéséhez.
Regisztrációs szám
H514524
Az ingatlan adatai
Értékesités
eladó
Jogi státusz
használt
Jelleg
ház
Építési mód
tégla
Méret
174,8 m²
Bruttó méret
240 m²
Telek méret
450 m²
Terasz / erkély mérete
20 m²
Fűtés
Gáz cirkó
Belmagasság
260 cm
Lakáson belüli szintszám
3
Tájolás
Dél-nyugat
Panoráma
Egyéb
Állapot
Jó
Homlokzat állapota
Jó
Pince
Önálló
Környék
csendes
Építés éve
1980
Fürdőszobák száma
2
Garázs
Benne van az árban
Garázs férőhely
1
Víz
Van
Gáz
Van
Villany
Van
Csatorna
Van
Többgenerációs
igen
Tároló
Önálló
Helyiségek
szoba
19.3 m²
szoba
17.2 m²
szoba
17.8 m²
szoba
17.9 m²
hálószoba
7.6 m²
nappali-konyha
31 m²
nappali-konyha
31.3 m²
fürdőszoba
4.7 m²
fürdőszoba-wc
9.2 m²
wc
0.9 m²
wc
1.5 m²
közlekedő
8.7 m²
tároló
21.6 m²
kazánház
13.6 m²
garázs
31.8 m²
közlekedő
4.3 m²
kamra
0.7 m²
mosókonyha
1.8 m²