172,900,000 Ft
484,000 €
- 174.8m²
- 7 Rooms
Panorámás kétgenerációs ház!
Panorámás kétgenerációs ház – örökpanorámás otthon Pécelen, az összetartozás és a nyugalom szigete
Képzeld el, hogy minden reggel a táj látványára ébredsz. A nappaliból és a teraszról is eléd táruló örökpanoráma nem csupán kilátás – hanem életérzés. Egy csésze kávé a felkelő nap fényében, este pedig a naplemente aranyló színei kísérik a családi beszélgetéseket. Itt a horizont a mindennapok része.
Ez a 175 m²-es ikerház + 55 m² szuterén Pécel csendes, barátságos részén található, ahol a madárcsicsergés és a nyugalom valódi érték. A 450 m²-es telek intim, elszeparált kertrészt kínál halastóval – egy saját, privát oázist, ahol a gyerekek biztonságban játszhatnak, a nagyszülők pihenhetnek, a család pedig együtt élvezheti a természet közelségét.
Az intim kert valódi menedék
Nincsenek kíváncsi tekintetek, csak a zöld, a víz csobogása és a meghitt családi pillanatok. Itt a hétvégi ebédek, kerti sütögetések és nyári esték valóban különleges hangulatban telnek.
Kétgenerációs, duplakomfortos kialakítás – külön almérőkkel
Tökéletes választás összeköltöző családok számára, akik együtt, mégis külön szeretnének élni. A közelség biztonságot ad, a szeparált életterek pedig megőrzik az önállóságot és a privát szférát.
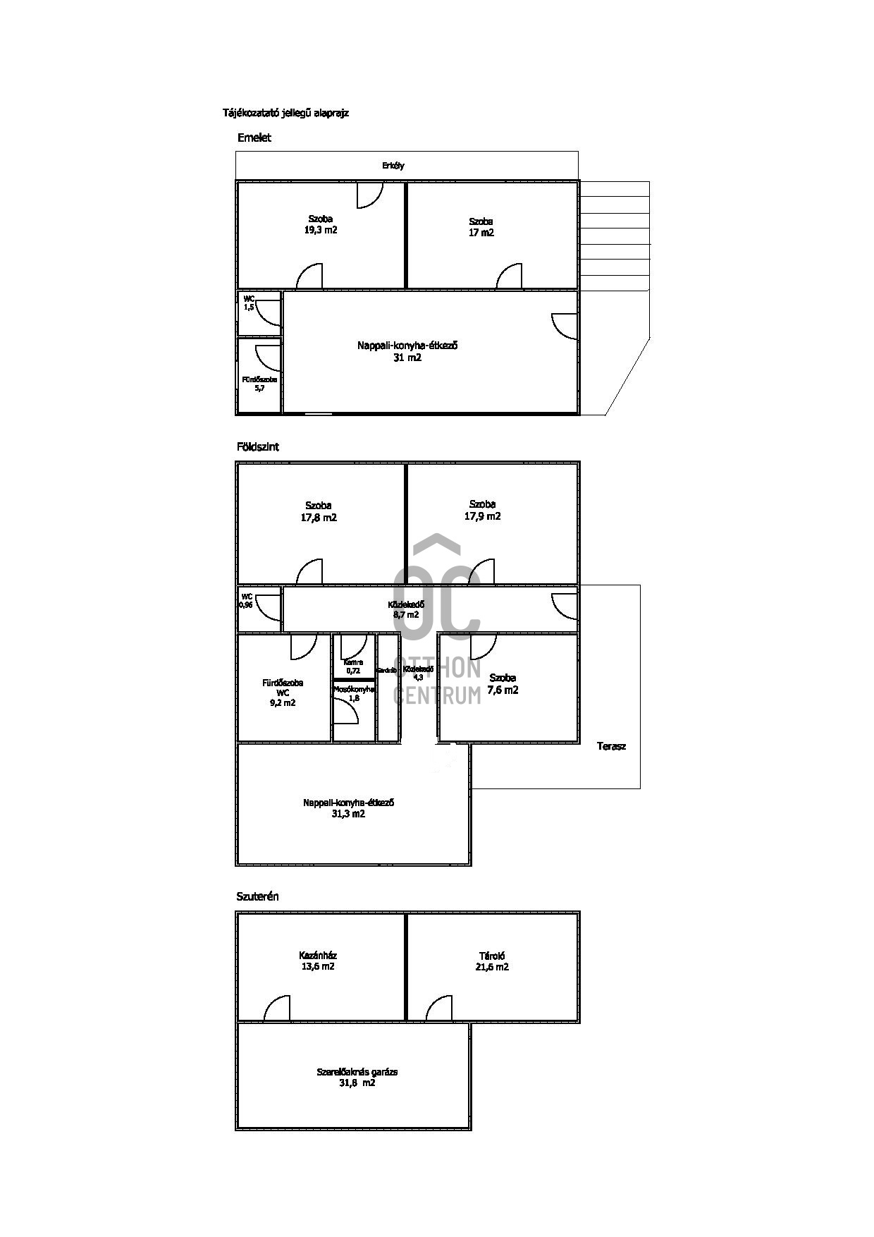
**Emelet (74,5 m²):**
– 2 különnyíló szoba
– amerikai konyhás nappali
– fürdőszoba
**Földszint (100,3 m²):**
– amerikai konyhás nappali
– 3 különnyíló szoba
– fürdőszoba
– mosókonyha
– 2 db WC
- kamra
**Szuterén (55 m²):**
– szerelőaknás garázs
– kazánház
– tároló
A szuterén lehetőséget biztosít +1 külön lakrész kialakítására is.
A tágas nappali a ház szíve – az a tér, ahol generációk találkoznak, ahol a közös vacsorák, ünnepek és hétköznapi beszélgetések emlékké válnak. A panorámára nyíló terasz pedig minden évszakban hozzátesz ehhez az élményhez.
Műszaki tartalom és komfort:
– 2022-ben teljes körű felújítás
– műanyag nyílászárók redőnnyel és szúnyoghálóval
– gáz cirkó fűtés
– klíma
– jó állapot, azonnal költözhető
- az ingatlanban folyamatos esztétikai felújítás van: szagelszívó beépítése, konyha csempézése, szegőlécek, küszöbök felhelyezése, a korlátok cseréje.
A kertben térkövezés, kerítés befejezése is a vételár részét képezi.
Kiváló infrastruktúra
Buszmegálló néhány perc sétára, a környéken iskola, óvoda, üzletek – minden adott a kényelmes, biztonságos családi élethez.
Ez az ingatlan több mint egy ház. Ez egy olyan otthon, ahol a panoráma a mindennapok része, a kert a családi élet színtere, és ahol az összeköltözés nem kompromisszum, hanem lehetőség egy még szorosabb, még harmonikusabb életre.
Az ilyen adottságú, örökpanorámás, intim kerttel rendelkező kétgenerációs otthon ritka kincs a piacon.
Ha szeretnéd személyesen is átélni ezt az életérzést, keress bizalommal privát megtekintés egyeztetéséhez.
Képzeld el, hogy minden reggel a táj látványára ébredsz. A nappaliból és a teraszról is eléd táruló örökpanoráma nem csupán kilátás – hanem életérzés. Egy csésze kávé a felkelő nap fényében, este pedig a naplemente aranyló színei kísérik a családi beszélgetéseket. Itt a horizont a mindennapok része.
Ez a 175 m²-es ikerház + 55 m² szuterén Pécel csendes, barátságos részén található, ahol a madárcsicsergés és a nyugalom valódi érték. A 450 m²-es telek intim, elszeparált kertrészt kínál halastóval – egy saját, privát oázist, ahol a gyerekek biztonságban játszhatnak, a nagyszülők pihenhetnek, a család pedig együtt élvezheti a természet közelségét.
Az intim kert valódi menedék
Nincsenek kíváncsi tekintetek, csak a zöld, a víz csobogása és a meghitt családi pillanatok. Itt a hétvégi ebédek, kerti sütögetések és nyári esték valóban különleges hangulatban telnek.
Kétgenerációs, duplakomfortos kialakítás – külön almérőkkel
Tökéletes választás összeköltöző családok számára, akik együtt, mégis külön szeretnének élni. A közelség biztonságot ad, a szeparált életterek pedig megőrzik az önállóságot és a privát szférát.
**Emelet (74,5 m²):**
– 2 különnyíló szoba
– amerikai konyhás nappali
– fürdőszoba
**Földszint (100,3 m²):**
– amerikai konyhás nappali
– 3 különnyíló szoba
– fürdőszoba
– mosókonyha
– 2 db WC
- kamra
**Szuterén (55 m²):**
– szerelőaknás garázs
– kazánház
– tároló
A szuterén lehetőséget biztosít +1 külön lakrész kialakítására is.
A tágas nappali a ház szíve – az a tér, ahol generációk találkoznak, ahol a közös vacsorák, ünnepek és hétköznapi beszélgetések emlékké válnak. A panorámára nyíló terasz pedig minden évszakban hozzátesz ehhez az élményhez.
Műszaki tartalom és komfort:
– 2022-ben teljes körű felújítás
– műanyag nyílászárók redőnnyel és szúnyoghálóval
– gáz cirkó fűtés
– klíma
– jó állapot, azonnal költözhető
- az ingatlanban folyamatos esztétikai felújítás van: szagelszívó beépítése, konyha csempézése, szegőlécek, küszöbök felhelyezése, a korlátok cseréje.
A kertben térkövezés, kerítés befejezése is a vételár részét képezi.
Kiváló infrastruktúra
Buszmegálló néhány perc sétára, a környéken iskola, óvoda, üzletek – minden adott a kényelmes, biztonságos családi élethez.
Ez az ingatlan több mint egy ház. Ez egy olyan otthon, ahol a panoráma a mindennapok része, a kert a családi élet színtere, és ahol az összeköltözés nem kompromisszum, hanem lehetőség egy még szorosabb, még harmonikusabb életre.
Az ilyen adottságú, örökpanorámás, intim kerttel rendelkező kétgenerációs otthon ritka kincs a piacon.
Ha szeretnéd személyesen is átélni ezt az életérzést, keress bizalommal privát megtekintés egyeztetéséhez.
Registration Number
H514524
Property Details
Sales
for sale
Legal Status
used
Character
house
Construction Method
brick
Net Size
174.8 m²
Gross Size
240 m²
Plot Size
450 m²
Size of Terrace / Balcony
20 m²
Heating
Gas circulator
Ceiling Height
260 cm
Number of Levels Within the Property
3
Orientation
South-West
View
Other
Condition
Good
Condition of Facade
Good
Basement
Independent
Neighborhood
quiet
Year of Construction
1980
Number of Bathrooms
2
Garage
Included in the price
Garage Spaces
1
Water
Available
Gas
Available
Electricity
Available
Sewer
Available
Multi-Generational
yes
Storage
Independent
Rooms
room
19.3 m²
room
17.2 m²
room
17.8 m²
room
17.9 m²
bedroom
7.6 m²
open-plan kitchen and living room
31 m²
open-plan kitchen and living room
31.3 m²
bathroom
4.7 m²
bathroom-toilet
9.2 m²
toilet
0.9 m²
toilet
1.5 m²
corridor
8.7 m²
storage
21.6 m²
boiler room
13.6 m²
garage
31.8 m²
corridor
4.3 m²
pantry
0.7 m²
laundry room
1.8 m²