Kiadó családi ház, H514129
Kőszegszerdahely

225 000 Ft

580 €

  • 70m²
  • 3 szoba

Kőszeg-hegyalján családi ház kiadó

Kőszegszerdahelyen, található ez a br.70 nm-es, 2 szobás, kitűnő állapotú ház, amely kiváló lehetőséget kínál a bérlők számára. Az ingatlan magában foglalja a beépített bútorokat és szekrényeket, motoros redőnyöket, valamint egy 10 nm-es teraszt, amelyről csodálatos kilátás nyílik a kertre. Az infrafilm padló fűtésnek köszönhetően a lakás rendkívül gazdaságos és kényelmes. Parkolás telken belül kialakított közös parkolóban megoldott. A környék rendkívül csendes és biztonságos. Az ingatlan közelében találhatóak azok a közlekedési lehetőségek, amelyekkel könnyedén elérhető az osztrák határ, Kőszeg 5 km-re, Szombathely 17 km-re található.
Az ingatlan minimum egy évre bérelhető, 3 havi kaució szükséges.
KIS állat egyedi megbeszélés alapján hozható.
Bérleti díj: 225.000 Ft+ rezsi (víz, villany fogyasztás alapján, közös költség)

Regisztrációs szám

H514129

Az ingatlan adatai

Értékesités
kiadó
Jogi státusz
használt
Jelleg
ház
Építési mód
könnyűszerkezetes
Méret
70 m²
Bruttó méret
80 m²
Telek méret
340 m²
Terasz / erkély mérete
10 m²
Fűtés
elektromos, infra
Belmagasság
270 cm
Tájolás
Nyugat
Állapot
Kiváló
Homlokzat állapota
Kiváló
Környék
csendes
Építés éve
2023
Fürdőszobák száma
1
Víz
Van
Gáz
Utcán
Villany
Van
Csatorna
Van

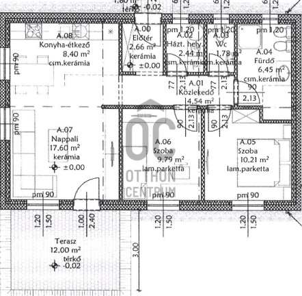
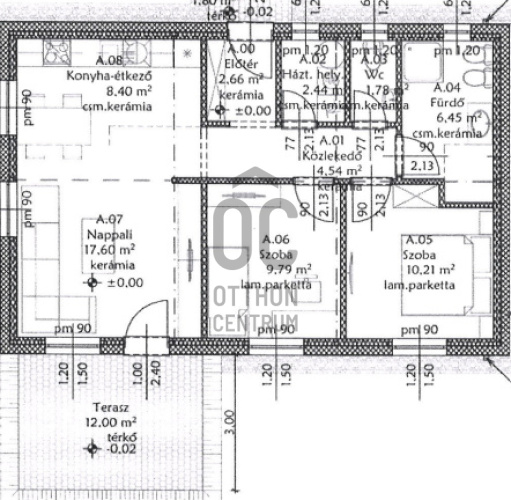
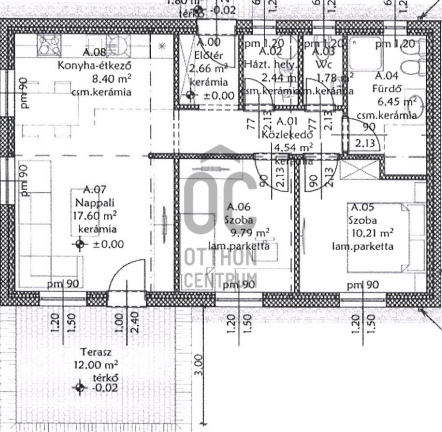
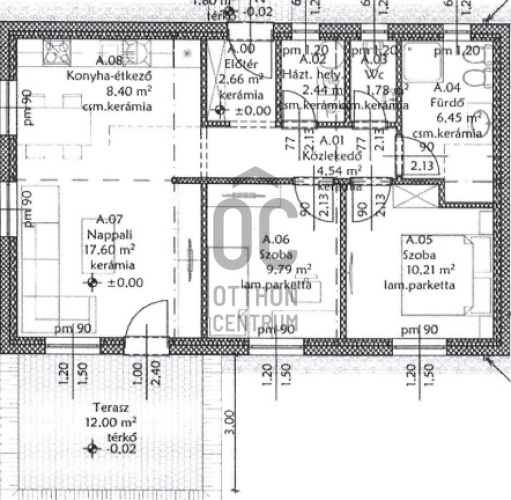
Helyiségek

előszoba
3 m²
nappali-konyha
27 m²
közlekedő
5 m²
hálószoba
10 m²
hálószoba
10 m²
fürdőszoba-wc
6 m²
wc-kézmosó
2 m²
háztartási helyiség
3 m²
Horváth Szabina
Horváth Szabina

Hitelszakértő

Irodánk kínálatából - Kőszeg

eladó lakás

Index image
Elérhető Otthon Start hitellel
13

eladó családi ház

Index image
Elérhető Otthon Start hitellel
33

kiadó lakás

Index image
7

eladó lakás

Index image
Elérhető Otthon Start hitellel
12

eladó lakás

Index image
Elérhető Otthon Start hitellel
8

eladó lakás

Index image
Elérhető Otthon Start hitellel
21

eladó családi ház

Index image
Elérhető Otthon Start hitellel
17

eladó nyaraló

Index image
18

eladó lakás

Index image
Elérhető Otthon Start hitellel
12

eladó családi ház

Index image
Elérhető Otthon Start hitellel
24