Elérhető Otthon Start hitellel
Eladó családi ház,
H514120
Orfű
84 900 000 Ft
224 000 €
- 97m²
- 5 szoba
In the inner area of Orfű, a charming farmhouse with a large plot is for sale.
Do you long for a place where your morning coffee comes with a panoramic view of a church tower and the quiet of the forest edge? In the village of Orfű, on a large double plot of nearly 6000 m², this unique, authentic farmhouse awaits its new owner.
Huge space, endless possibilities: The total area of 5956 m², consisting of two land parcels, actually offers 2-3 building plots – ideal for a family residence, guesthouse, or investment. It provides a wonderful panorama of the village of Orfű, the church tower, and the surrounding hills. One end of the plot borders a forest.
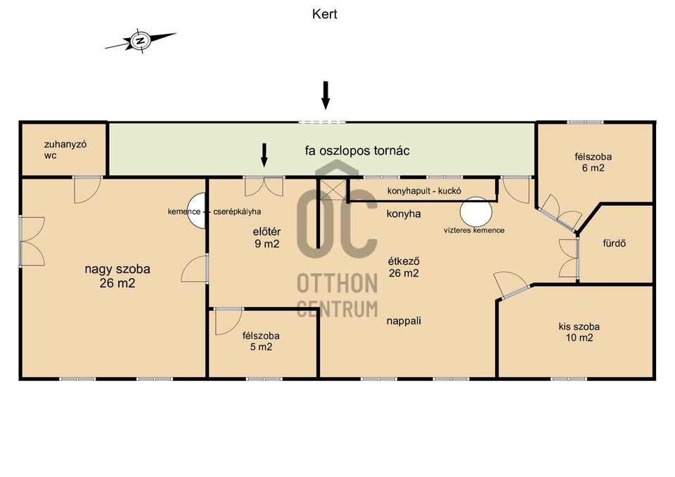
The beautiful, porch-style house is locally protected, with a net floor area of 97 m², which includes an entrance hall, a large kitchen-dining-living room (26 m²), a large room that can have a separate entrance, with its own bathroom and toilet, a cozy stove, 2 half-rooms, and a smaller room, as well as another bathroom and toilet that is currently undergoing renovation. The house also has a 15 m² cellar accessible from the outside, as well as an outbuilding, a shed that needs reinforcement.
The house was modernized in 2008, including the replacement of water and electrical wiring, the installation of exposed wooden beams, and the creation of drainage around the house. At that time, two tiled stoves were also completed; one in the living room is designed for water circulation, which operates the radiator central heating system. The other is in the large room and can be heated from the entrance hall through the Art Nouveau tiled stove. (Tip: This large room can be separated from the rest of the living space and can function as a separate apartment with its own street entrance.) The house received custom-made exterior and interior windows and doors, with the cold flooring made of brick, and the wooden floor is unique, made by a carpenter but in need of renovation. The ceiling and roof structure are still in their original condition, with ceiling insulation done with a blanket or wooden beam ceiling.
More than just a property: A lifestyle.
This property is not just made of walls – its strong aura and peace immediately captivate you. Here, the forest is a neighbor, and the view shows a different face every day.
The property is free of encumbrances and immediately available for possession.
Come, feel its atmosphere, and be proud to be a resident of Orfű!
Please take a look at the informative floor plan!
For more information, feel free to call!
Huge space, endless possibilities: The total area of 5956 m², consisting of two land parcels, actually offers 2-3 building plots – ideal for a family residence, guesthouse, or investment. It provides a wonderful panorama of the village of Orfű, the church tower, and the surrounding hills. One end of the plot borders a forest.
The beautiful, porch-style house is locally protected, with a net floor area of 97 m², which includes an entrance hall, a large kitchen-dining-living room (26 m²), a large room that can have a separate entrance, with its own bathroom and toilet, a cozy stove, 2 half-rooms, and a smaller room, as well as another bathroom and toilet that is currently undergoing renovation. The house also has a 15 m² cellar accessible from the outside, as well as an outbuilding, a shed that needs reinforcement.
The house was modernized in 2008, including the replacement of water and electrical wiring, the installation of exposed wooden beams, and the creation of drainage around the house. At that time, two tiled stoves were also completed; one in the living room is designed for water circulation, which operates the radiator central heating system. The other is in the large room and can be heated from the entrance hall through the Art Nouveau tiled stove. (Tip: This large room can be separated from the rest of the living space and can function as a separate apartment with its own street entrance.) The house received custom-made exterior and interior windows and doors, with the cold flooring made of brick, and the wooden floor is unique, made by a carpenter but in need of renovation. The ceiling and roof structure are still in their original condition, with ceiling insulation done with a blanket or wooden beam ceiling.
More than just a property: A lifestyle.
This property is not just made of walls – its strong aura and peace immediately captivate you. Here, the forest is a neighbor, and the view shows a different face every day.
The property is free of encumbrances and immediately available for possession.
Come, feel its atmosphere, and be proud to be a resident of Orfű!
Please take a look at the informative floor plan!
For more information, feel free to call!
Regisztrációs szám
H514120
Az ingatlan adatai
Értékesités
eladó
Jogi státusz
használt
Jelleg
ház
Építési mód
vályog
Méret
97 m²
Bruttó méret
120 m²
Telek méret
5 956 m²
Fűtés
cserépkályha (vegyes)
Belmagasság
265 cm
Tájolás
Nyugat
Panoráma
Zöldre néző panoráma
Állapot
Átlagos
Homlokzat állapota
Átlagos
Pince
Önálló
Környék
zöld
Építés éve
2008
Fürdőszobák száma
2
Víz
Van
Villany
Van
Csatorna
Van
Helyiségek
előszoba
10 m²
nappali-konyha
26 m²
szoba
26 m²
szoba
10 m²
félszoba
5 m²
félszoba
5 m²
fürdőszoba-wc
4 m²
fürdőszoba-wc
4 m²
Mecseki Lászlóné - Éva
Hitelszakértő