Elérhető Otthon Start hitellel
Eladó lakás,
H512970
Komárom, Szőny
35 900 000 Ft
95 000 €
- 49m²
- 3 szoba
- magasföldszint
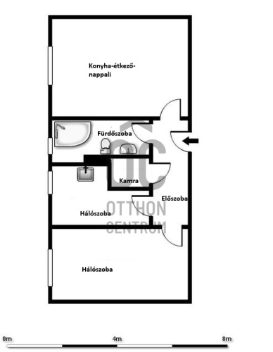
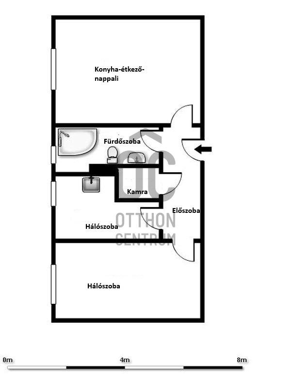
Komárom Molaj-lakótelepen eladó egy 3szobássá alakított magasföldszinti lakás.
A lakás jellemzői:
- 49nm alapterület.
- 3 különnyíló szobával rendelkezik, mivel a konyhából hálószobát alakítottak ki.
- Villanyvezetékeket részleges kicserélték.
- Műanyag ablakokkal rendelkezik.
- Burkolatok előszobában, fürdőszobában járólap, szobákban linóleum és laminált parketta.
- A fűtés és a melegvíz egyéni órákkal mért távhős, termosztáttal vezérelhető.
- A környék igazán csendes, kimondottan zöldövezeti. A társasház mellett park és jól felszerelt játszótér található.
További információért várom hívását!
A lakás jellemzői:
- 49nm alapterület.
- 3 különnyíló szobával rendelkezik, mivel a konyhából hálószobát alakítottak ki.
- Villanyvezetékeket részleges kicserélték.
- Műanyag ablakokkal rendelkezik.
- Burkolatok előszobában, fürdőszobában járólap, szobákban linóleum és laminált parketta.
- A fűtés és a melegvíz egyéni órákkal mért távhős, termosztáttal vezérelhető.
- A környék igazán csendes, kimondottan zöldövezeti. A társasház mellett park és jól felszerelt játszótér található.
További információért várom hívását!
Regisztrációs szám
H512970
Az ingatlan adatai
Értékesités
eladó
Jogi státusz
használt
Jelleg
lakás
Építési mód
tégla
Méret
49 m²
Bruttó méret
49 m²
Fűtés
egyedi távfűtés
Belmagasság
270 cm
Tájolás
Dél-kelet
Lépcsőház típusa
zárt lépcsőház
Állapot
Átlagos
Homlokzat állapota
Átlagos
Lépcsőház állapota
Átlagos
Pince
Önálló
Környék
csendes, zöld
Építés éve
1970
Fürdőszobák száma
1
Fekvés
utcai
Víz
Van
Villany
Van
Csatorna
Van
Helyiségek
nappali
17.5 m²
nappali
17.5 m²
hálószoba
12.6 m²
hálószoba
12.6 m²
hálószoba
7 m²
hálószoba
7 m²
fürdőszoba-wc
5 m²
fürdőszoba-wc
5 m²
kamra
1 m²
kamra
1 m²
előszoba
4.1 m²
előszoba
4.1 m²
Sovány Nóra
Hitelszakértő