Elérhető Otthon Start hitellel
Eladó családi ház,
H512870
Pusztaszabolcs
83 900 000 Ft
223 000 €
- 117m²
- 3 szoba
Fedezze fel álmai otthonát - Pusztaszabolcson vasútállomás közelében – 3 szobás ház várja Önt!
Kivételes lehetőség családosok számára! Eladó frissen felújított, kiváló állapotú ház Fejér vármegye gyönyörű településén, Pusztaszabolcson.
Ez az ingatlan nem csupán egy otthon, hanem egy lehetőség arra, hogy egy csendes, mégis jól ellátott környezetben éljen, ahol a család minden tagja megtalálja a számításait.
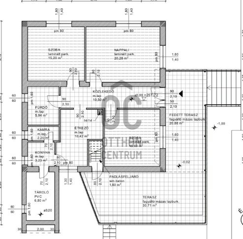
A ház alapterülete 117 nm, mely tökéletesen elosztott három tágas szobával rendelkezik.
A világos nappali ideális helyszín a családi együttlétekhez, míg a 52 nm-es terasz a nyári estéken kínál kellemes pihenési lehetőséget.
A telek mérete 1117 nm, amely elegendő helyet biztosít a gyerekeknek a szabadban való játékhoz, valamint a kerti tárolóban tárolhatja a szükséges eszközöket.
A ház fűtése gáz cirkóval megoldott, a hűtésről pedig klíma gondoskodik, így az ingatlan egész évben kellemes hőmérsékletet biztosít.
A garázsban két autó kényelmesen elfér, ami különösen előnyös lehet a családosok számára.
Az ingatlan elhelyezkedése kiváló, hiszen közlekedési csomópont közelében található, így a kitűnő közlekedés lehetőséget biztosít a város más részeire való könnyű eljutásra.
A környék ellátottsága szintén figyelemre méltó, hiszen minden fontos szolgáltatás, mint boltok, iskola és orvosi rendelő, könnyedén elérhető.
A csendes környezet és a biztonságos szomszédság ideális helyszínt biztosít a családok számára, akik értékelik a nyugodt életstílust.
A ház bővítési lehetőségeket is kínál, így ha bővíteni szeretnék a családot, vagy egyszerűen csak nagyobb térre van szükségük, ez az ingatlan tökéletes választás.
A családi ház 38-as téglából épült. A fűtés és meleg vízellátást kondenzációs gázkazán biztosítja radiátorral.
Nappaliba hűtő-fűtő klíma lett még beépítve. Szobákban laminált parketta a többi helyiségben járólap.
Teljes fürdőszoba, új tetőszerkezet, kondenzációs kazán, fűtésrendszer, új radiátorok
nyílászáró csere ablak,ajtó, redőnnyel, szúnyoghálóval felszerelve, plussz a födém szigetelése 25 cm üveggyapottal.
Az épületen belül, de külső bejárattal az épület alatti 30 nm-es pincébe jutunk.
A ház déli oldalán 52 nm terasz található, ebből a bejáratnál 21 nm-es rész fedett.
Garázs 30 nm (szerelőaknás) + 60 nm (ipari árammal)
Nyári konyha 25 nm + öltöző 16 nm + Műhely, tároló 15 nm
Két kapubeálló van így kerten belül több gépkocsi parkolására van lehetőség.
A kertben több féle gyümölcsfa, a locsolás ásott kútról megoldott.
Az ingatlan csendes utcában van, kedves szomszédokkal.
A tulajdonosok, megbeszélés szerint a ház bútorzatát az új tulajdonosnak adják.
Hitelre alkalmas!
Az ingatlan tehermentes, így azonnal birtokba vehető.
Ne habozzon, hiszen egy ilyen lehetőség nem mindennapi! Ha bármilyen kérdése van az ingatlannal kapcsolatban, bizalommal kereshet minket. Szívesen segítünk Önnek, hogy megtalálja álmai otthonát vagy befektetési lehetőségét.
Pusztaszabolcs az M6-os autópályáról közelíthető meg de az M7-ről is elérhető.
Pusztaszabolcsi vasútállomás és a buszmegálló 5-7 perc sétá.
A Velencei-tó 14 km, Dunaújváros 31 km, Székesfehérvár 34 km, Budapest 50 km távolságban van.
A közelben található, iskola, óvoda, játszótér, vásárlási, sportolási lehetőség, orvosi rendelő, gyógyszertár.
Ez az ingatlan nem csupán egy otthon, hanem egy lehetőség arra, hogy egy csendes, mégis jól ellátott környezetben éljen, ahol a család minden tagja megtalálja a számításait.
A ház alapterülete 117 nm, mely tökéletesen elosztott három tágas szobával rendelkezik.
A világos nappali ideális helyszín a családi együttlétekhez, míg a 52 nm-es terasz a nyári estéken kínál kellemes pihenési lehetőséget.
A telek mérete 1117 nm, amely elegendő helyet biztosít a gyerekeknek a szabadban való játékhoz, valamint a kerti tárolóban tárolhatja a szükséges eszközöket.
A ház fűtése gáz cirkóval megoldott, a hűtésről pedig klíma gondoskodik, így az ingatlan egész évben kellemes hőmérsékletet biztosít.
A garázsban két autó kényelmesen elfér, ami különösen előnyös lehet a családosok számára.
Az ingatlan elhelyezkedése kiváló, hiszen közlekedési csomópont közelében található, így a kitűnő közlekedés lehetőséget biztosít a város más részeire való könnyű eljutásra.
A környék ellátottsága szintén figyelemre méltó, hiszen minden fontos szolgáltatás, mint boltok, iskola és orvosi rendelő, könnyedén elérhető.
A csendes környezet és a biztonságos szomszédság ideális helyszínt biztosít a családok számára, akik értékelik a nyugodt életstílust.
A ház bővítési lehetőségeket is kínál, így ha bővíteni szeretnék a családot, vagy egyszerűen csak nagyobb térre van szükségük, ez az ingatlan tökéletes választás.
A családi ház 38-as téglából épült. A fűtés és meleg vízellátást kondenzációs gázkazán biztosítja radiátorral.
Nappaliba hűtő-fűtő klíma lett még beépítve. Szobákban laminált parketta a többi helyiségben járólap.
Teljes fürdőszoba, új tetőszerkezet, kondenzációs kazán, fűtésrendszer, új radiátorok
nyílászáró csere ablak,ajtó, redőnnyel, szúnyoghálóval felszerelve, plussz a födém szigetelése 25 cm üveggyapottal.
Az épületen belül, de külső bejárattal az épület alatti 30 nm-es pincébe jutunk.
A ház déli oldalán 52 nm terasz található, ebből a bejáratnál 21 nm-es rész fedett.
Garázs 30 nm (szerelőaknás) + 60 nm (ipari árammal)
Nyári konyha 25 nm + öltöző 16 nm + Műhely, tároló 15 nm
Két kapubeálló van így kerten belül több gépkocsi parkolására van lehetőség.
A kertben több féle gyümölcsfa, a locsolás ásott kútról megoldott.
Az ingatlan csendes utcában van, kedves szomszédokkal.
A tulajdonosok, megbeszélés szerint a ház bútorzatát az új tulajdonosnak adják.
Hitelre alkalmas!
Az ingatlan tehermentes, így azonnal birtokba vehető.
Ne habozzon, hiszen egy ilyen lehetőség nem mindennapi! Ha bármilyen kérdése van az ingatlannal kapcsolatban, bizalommal kereshet minket. Szívesen segítünk Önnek, hogy megtalálja álmai otthonát vagy befektetési lehetőségét.
Pusztaszabolcs az M6-os autópályáról közelíthető meg de az M7-ről is elérhető.
Pusztaszabolcsi vasútállomás és a buszmegálló 5-7 perc sétá.
A Velencei-tó 14 km, Dunaújváros 31 km, Székesfehérvár 34 km, Budapest 50 km távolságban van.
A közelben található, iskola, óvoda, játszótér, vásárlási, sportolási lehetőség, orvosi rendelő, gyógyszertár.
Regisztrációs szám
H512870
Az ingatlan adatai
Értékesités
eladó
Jogi státusz
használt
Jelleg
ház
Építési mód
tégla
Méret
117 m²
Bruttó méret
182 m²
Telek méret
1 117 m²
Terasz / erkély mérete
50 m²
Fűtés
Gáz cirkó
Belmagasság
280 cm
Tájolás
Dél-kelet
Állapot
Kiváló
Homlokzat állapota
Átlagos
Környék
csendes, jó közlekedés, zöld
Építés éve
1975
Fürdőszobák száma
1
Garázs
Benne van az árban
Garázs férőhely
2
Víz
Van
Gáz
Van
Villany
Van
Csatorna
Van
Tároló
Önálló
Helyiségek
szoba
16 m²
szoba
15 m²
nappali
21 m²
ebédlő
11 m²
konyha
3.3 m²
kamra
2.2 m²
tároló
7 m²
közlekedő
10.5 m²
fürdőszoba
6 m²
Horváth Eleonóra
Hitelszakértő