185 900 000 Ft
493 000 €
- 125m²
- 3 szoba
Fedezze fel álmai otthonát Diósdon – 2 szoba+nappali kialakítású családi ház várja Önt - Saját magánúttal
Egy kivételes lehetőséget kínálunk Önnek Diósdligeten , fiatalok, családosok számára ideális otthonra lelhetnek.
Ez a modern, használt ház brutto 145 négyzetméteres alapterületével és 1032 négyzetméteres telkével tökéletes választás mindazok számára, akik a város zajától távol, de mégis központi elhelyezkedésben szeretnének élni.
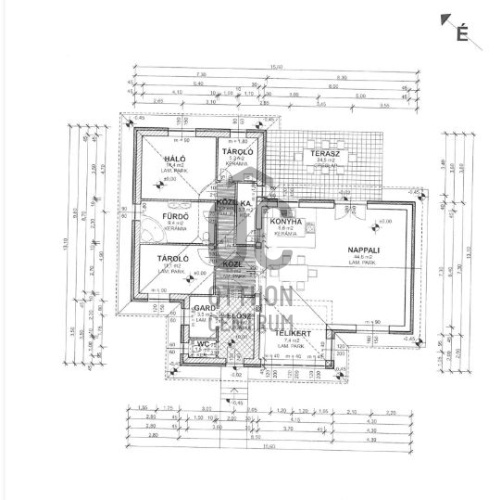
Az ingatlanban 2 szoba található plusz nappali+étkező+konyha, a nappali különösen világos és barátságos, köszönhetően a nagy ablakoknak és a minimalista kialakításnak.
A nappali élettere így több mint 60 nm, ez 1 esetleg 2 kisebb szoba leválasztását is lehetővé teszi még.
A központi tér nagyon jó lehetőséget kínál a minden napi élethez és a családi összejövetelek és baráti találkozók felejthetetlen élményeket nyújtanak.
A házhoz tartozó 24,5 négyzetméteres terasz ideális helyszín a pihenésre és a szabadban eltöltött időre.
Az ingatlan állapota kiváló, 2025-ben készült el, a fűtés gáz cirkóval megoldott, míg a hűtésről klíma gondoskodik, így a nyári melegben is kellemes hőmérséklet várja a lakókat.
Az ingatlanban gardrób szoba és mosókonyha is található, amelyek praktikus tárolási megoldásokat kínálnak.
A modern LED hangulatvilágítás és a redőnyök pedig a kényelmet és az exkluzív megjelenést szolgálják.
A környék ellátottsága kiváló, a közlekedési csomópont közelsége miatt a közlekedés kitűnő, így a főváros könnyedén elérhető.
Diósd csendes, kertvárosi lakásai között található ez a gyöngyszem, a, ideális kertet biztosítva a gyermekek számára a szabadban való játékhoz.
Az ingatlanban található egy 2 állásos garázs 36 nm és egy 15 nm nyári konyha is.
A környék nyugodt, de a ház nem az utcafronton helyezkedik el, magánút vezet hozzá, ez is garantálja, hogy Ön nyugodtan élvezheti otthona kényelmét.
Ez a felkapott környék nemcsak a családok, hanem a befektetők számára is vonzó lehetőségeket kínál.
Az ingatlan elhelyezkedése miatt a jövőbeli értéknövekedés garantált, így érdemes mihamarabb lépni.
Kérjük, ne habozzon, keressen bizalommal bármilyen kérdésével vagy időpont egyeztetéssel kapcsolatban.
Az Ön álmai otthona már csak egy telefonhívásnyira van!
Ez a modern, használt ház brutto 145 négyzetméteres alapterületével és 1032 négyzetméteres telkével tökéletes választás mindazok számára, akik a város zajától távol, de mégis központi elhelyezkedésben szeretnének élni.
Az ingatlanban 2 szoba található plusz nappali+étkező+konyha, a nappali különösen világos és barátságos, köszönhetően a nagy ablakoknak és a minimalista kialakításnak.
A nappali élettere így több mint 60 nm, ez 1 esetleg 2 kisebb szoba leválasztását is lehetővé teszi még.
A központi tér nagyon jó lehetőséget kínál a minden napi élethez és a családi összejövetelek és baráti találkozók felejthetetlen élményeket nyújtanak.
A házhoz tartozó 24,5 négyzetméteres terasz ideális helyszín a pihenésre és a szabadban eltöltött időre.
Az ingatlan állapota kiváló, 2025-ben készült el, a fűtés gáz cirkóval megoldott, míg a hűtésről klíma gondoskodik, így a nyári melegben is kellemes hőmérséklet várja a lakókat.
Az ingatlanban gardrób szoba és mosókonyha is található, amelyek praktikus tárolási megoldásokat kínálnak.
A modern LED hangulatvilágítás és a redőnyök pedig a kényelmet és az exkluzív megjelenést szolgálják.
A környék ellátottsága kiváló, a közlekedési csomópont közelsége miatt a közlekedés kitűnő, így a főváros könnyedén elérhető.
Diósd csendes, kertvárosi lakásai között található ez a gyöngyszem, a, ideális kertet biztosítva a gyermekek számára a szabadban való játékhoz.
Az ingatlanban található egy 2 állásos garázs 36 nm és egy 15 nm nyári konyha is.
A környék nyugodt, de a ház nem az utcafronton helyezkedik el, magánút vezet hozzá, ez is garantálja, hogy Ön nyugodtan élvezheti otthona kényelmét.
Ez a felkapott környék nemcsak a családok, hanem a befektetők számára is vonzó lehetőségeket kínál.
Az ingatlan elhelyezkedése miatt a jövőbeli értéknövekedés garantált, így érdemes mihamarabb lépni.
Kérjük, ne habozzon, keressen bizalommal bármilyen kérdésével vagy időpont egyeztetéssel kapcsolatban.
Az Ön álmai otthona már csak egy telefonhívásnyira van!
Regisztrációs szám
H512868
Az ingatlan adatai
Értékesités
eladó
Jogi státusz
használt
Jelleg
ház
Építési mód
tégla
Méret
125 m²
Bruttó méret
145 m²
Telek méret
1 032 m²
Terasz / erkély mérete
24,5 m²
Fűtés
Gáz cirkó
Belmagasság
272 cm
Tájolás
Dél-nyugat
Állapot
Kiváló
Homlokzat állapota
Kiváló
Környék
csendes, jó közlekedés, zöld
Építés éve
2025
Fürdőszobák száma
1
Társaház kert
igen
Garázs
Benne van az árban
Garázs férőhely
2
Víz
Van
Gáz
Van
Villany
Van
Csatorna
Van
Tároló
Önálló
Helyiségek
szoba
14.4 m²
szoba
11.1 m²
fürdőszoba
9.4 m²
mosókonyha
5.3 m²
kamra
3.7 m²
konyha
6.6 m²
nappali
52 m²
gardrób
3.5 m²
wc-kézmosó
1.5 m²
terasz
24.5 m²
közlekedő
9.3 m²
garázs
36 m²
tároló
15 m²
Horváth Eleonóra
Hitelszakértő