Elérhető Otthon Start hitellel
Eladó családi ház,
H511432
Poroszló
32 500 000 Ft
87 000 €
- 81,2m²
- 2 szoba
A renovated two-bedroom family house in Poroszló is for sale at an excellent price!
Poroszló is one of the most well-known and beloved settlements by Lake Tisza, making it an ideal choice for both those seeking active relaxation and those who prefer a peaceful rural lifestyle. The town is famous for the Tisza Lake Eco-Center, which uniquely showcases the rich wildlife of the region throughout Europe.
All necessary services for everyday life are fully accessible: kindergarten, school, medical clinic, pharmacy, post office, shops, dining establishments, as well as year-round tourism and recreational services. The settlement has excellent transportation connections, easily reachable by car and public transport.
The area is a true center for relaxation and sports: a public beach, fishing, boating, water sports (SUP, jet-ski), and one of the country’s best cycling routes runs directly through Poroszló.
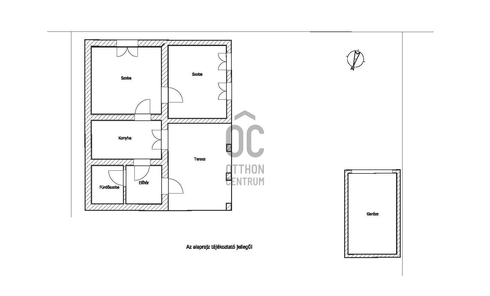
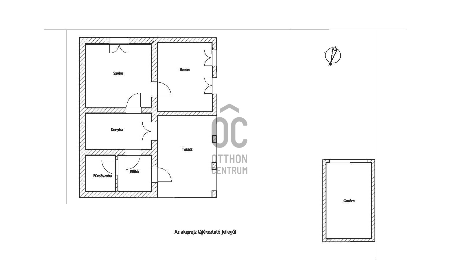
In the quiet, paved street of the settlement, a 81 sqm fully renovated family house with a new roof structure awaits its new owner, built on a 731 sqm easily maintainable plot.
- The electrical network has been rewired, with future air conditioning and heating panel installations in mind.
- New water and sewage pipes have been installed.
- The gas connection is located within the property.
- New flooring and bathroom fixtures will be installed.
- The plot is surrounded by a new fence.
- The water and sewage network has also been prepared for possible expansion.
- The house includes an insulated lightweight garage.
- If the new owner desires, a boat and its accompanying motor will also be given as a gift.
Due to its design, it is excellent for both a guesthouse and a family!
If I have piqued your interest, please call me, let’s arrange a time, and let’s take a look together! I also provide comprehensive loan processing and the necessary legal background for the property transaction for prospective buyers.
All necessary services for everyday life are fully accessible: kindergarten, school, medical clinic, pharmacy, post office, shops, dining establishments, as well as year-round tourism and recreational services. The settlement has excellent transportation connections, easily reachable by car and public transport.
The area is a true center for relaxation and sports: a public beach, fishing, boating, water sports (SUP, jet-ski), and one of the country’s best cycling routes runs directly through Poroszló.
In the quiet, paved street of the settlement, a 81 sqm fully renovated family house with a new roof structure awaits its new owner, built on a 731 sqm easily maintainable plot.
- The electrical network has been rewired, with future air conditioning and heating panel installations in mind.
- New water and sewage pipes have been installed.
- The gas connection is located within the property.
- New flooring and bathroom fixtures will be installed.
- The plot is surrounded by a new fence.
- The water and sewage network has also been prepared for possible expansion.
- The house includes an insulated lightweight garage.
- If the new owner desires, a boat and its accompanying motor will also be given as a gift.
Due to its design, it is excellent for both a guesthouse and a family!
If I have piqued your interest, please call me, let’s arrange a time, and let’s take a look together! I also provide comprehensive loan processing and the necessary legal background for the property transaction for prospective buyers.
Regisztrációs szám
H511432
Az ingatlan adatai
Értékesités
eladó
Jogi státusz
használt
Jelleg
ház
Építési mód
vályog
Méret
81,2 m²
Bruttó méret
95 m²
Telek méret
731 m²
Terasz / erkély mérete
22,5 m²
Fűtés
egyéb
Belmagasság
215 cm
Tájolás
Dél-kelet
Állapot
Jó
Homlokzat állapota
Jó
Környék
csendes, jó közlekedés
Építés éve
1965
Fürdőszobák száma
1
Garázs
Benne van az árban
Garázs férőhely
1
Víz
Van
Villany
Van
Csatorna
Van
Helyiségek
szoba
16.2 m²
szoba
18.27 m²
konyha
10.7 m²
fürdőszoba-wc
4.8 m²
előszoba
5.28 m²
garázs
15 m²
terasz
22.5 m²
Pomaházi Pál
Hitelszakértő