Elérhető Otthon Start hitellel
Eladó lakás,
H510635
Szekszárd, Bottyán-hegy, Zöldkert utca
30 900 000 Ft
82 000 €
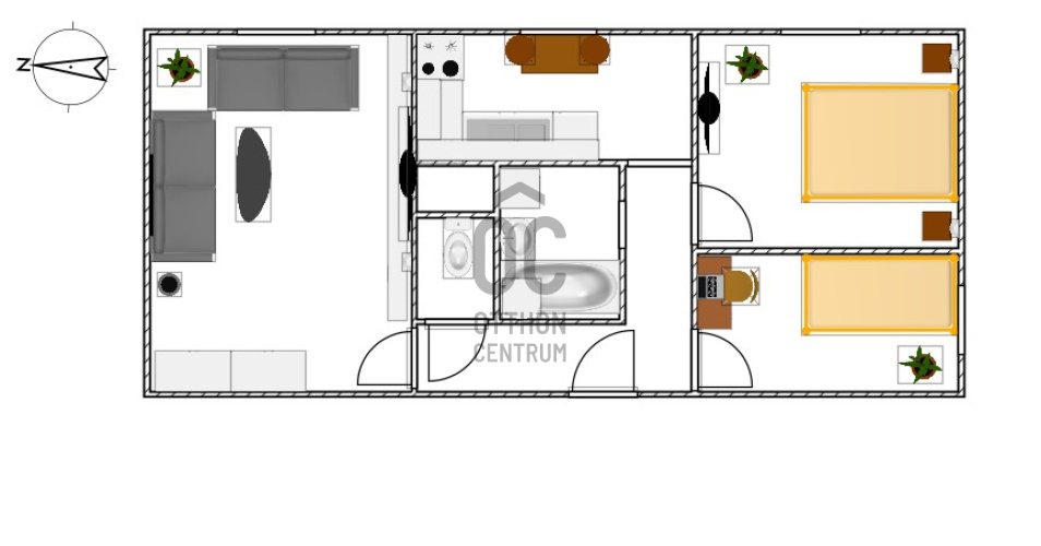
- 51m²
- 3 szoba
- földszint
ÚJ ÁRON Eladó egy azonnal költözhető, földszinti téglalakás Szekszárdon, a Zöldkert utcában!
A lakás egy szigetelt homlokzatú (15 cm), rendezett társasházban található.
- Fűtését gázkonvektorok, a meleg vizet egy 120 literes gázbojler biztosítja.
- A külső nyílászárók korszerű, hőszigetelt műanyag ablakok, melyeket redőny is véd.
- Az ingatlan két és félszobás elrendezésű:
- tágas, 18 m²-es nappali laminált padlóval,
- 10,5 m²-es hálószoba, valamint egy 6,7 m²-es félszoba,
- mindkettő kisszoba parkettával burkolva.
- A falak frissen fehérre festettek.
- A fürdőszoba kádas, a mellékhelyiség külön helyiségben kapott helyet, a mosógép számára a fürdőben van kialakított hely.
- A lakás a fotókon látható ingóságokkal együtt kerül értékesítésre.
- A közös költség mindössze 8.650 Ft.
- Parkolni díjmentesen lehet a ház előtt, a lépcsőház takarítását külsős szolgáltató végzi.
Környék és elhelyezkedés:
A Bottyán-hegyi lakónegyedben található, csendes, tiszta levegőjű környezetben.
Autóval és helyi busszal is könnyen megközelíthető.
A közelben játszótér és kisbolt is megtalálható, így a mindennapi bevásárlás egyszerűen megoldható.
Kedves Ügyfelünk, az ingatlanról videót is készítettünk. Ha ezt a hirdetést az Otthon Centrum weboldalán nézi, akkor a videóra a képek után tud kattintani. Ha egy másik weboldalon találta ezt a hirdetést, kérem nyissa meg az Otthon Centrum weboldalát, kattintson a „Regisztrációs szám keresése” menüpontra, és írja be ezt a regisztrációs számot a keresőbe: H510635 Itt meg tudja tekinteni az ingatlanról készült videót. Vagy írjon nekem, és szívesen elküldöm a videót.
Hitelre van szüksége?
Kollégám díjmentes hitelügyintézéssel és személyre szabott ajánlatokkal áll rendelkezésére.
Megtekintés egyeztetéséhez kérem, a hirdetésben megadott elérhetőségen keressen! Ha nem tudom felvenni, visszahívom.
Eladó tégla lakás, 3 szoba, gázkonvektoros fűtéssel, új nyílászárókkal – OC H510635
- Fűtését gázkonvektorok, a meleg vizet egy 120 literes gázbojler biztosítja.
- A külső nyílászárók korszerű, hőszigetelt műanyag ablakok, melyeket redőny is véd.
- Az ingatlan két és félszobás elrendezésű:
- tágas, 18 m²-es nappali laminált padlóval,
- 10,5 m²-es hálószoba, valamint egy 6,7 m²-es félszoba,
- mindkettő kisszoba parkettával burkolva.
- A falak frissen fehérre festettek.
- A fürdőszoba kádas, a mellékhelyiség külön helyiségben kapott helyet, a mosógép számára a fürdőben van kialakított hely.
- A lakás a fotókon látható ingóságokkal együtt kerül értékesítésre.
- A közös költség mindössze 8.650 Ft.
- Parkolni díjmentesen lehet a ház előtt, a lépcsőház takarítását külsős szolgáltató végzi.
Környék és elhelyezkedés:
A Bottyán-hegyi lakónegyedben található, csendes, tiszta levegőjű környezetben.
Autóval és helyi busszal is könnyen megközelíthető.
A közelben játszótér és kisbolt is megtalálható, így a mindennapi bevásárlás egyszerűen megoldható.
Kedves Ügyfelünk, az ingatlanról videót is készítettünk. Ha ezt a hirdetést az Otthon Centrum weboldalán nézi, akkor a videóra a képek után tud kattintani. Ha egy másik weboldalon találta ezt a hirdetést, kérem nyissa meg az Otthon Centrum weboldalát, kattintson a „Regisztrációs szám keresése” menüpontra, és írja be ezt a regisztrációs számot a keresőbe: H510635 Itt meg tudja tekinteni az ingatlanról készült videót. Vagy írjon nekem, és szívesen elküldöm a videót.
Hitelre van szüksége?
Kollégám díjmentes hitelügyintézéssel és személyre szabott ajánlatokkal áll rendelkezésére.
Megtekintés egyeztetéséhez kérem, a hirdetésben megadott elérhetőségen keressen! Ha nem tudom felvenni, visszahívom.
Eladó tégla lakás, 3 szoba, gázkonvektoros fűtéssel, új nyílászárókkal – OC H510635
Regisztrációs szám
H510635
Az ingatlan adatai
Értékesités
eladó
Jogi státusz
használt
Jelleg
lakás
Építési mód
tégla
Méret
51 m²
Bruttó méret
51 m²
Fűtés
gázkonvektor
Belmagasság
270 cm
Tájolás
Kelet
Lépcsőház típusa
zárt lépcsőház
Állapot
Átlagos
Homlokzat állapota
Kiváló
Lépcsőház állapota
Átlagos
Környék
csendes, jó közlekedés, zöld
Építés éve
1980
Fürdőszobák száma
1
Fekvés
utcai
Közös költség
8650
Víz
Van
Gáz
Van
Villany
Van
Csatorna
Van
Tároló
Közös
Helyiségek
konyha
6.5 m²
nappali
18 m²
szoba
10.5 m²
szoba
6.7 m²
fürdőszoba
2.6 m²
wc
0.9 m²
közlekedő
5.2 m²
Deli Richárd
Hitelszakértő