Elérhető Otthon Start hitellel
Eladó családi ház,
H509937
Szekszárd, Újváros, Damjanich utca
89 000 000 Ft
236 000 €
- 236m²
- 6 szoba
Eladó egy egyedi tervezésű, kitűnő állapotú családi ház Szekszárd kedvelt, központ közeli részén – a Damjanich utcában!
Ez a két szintes, mediterrán hangulatú, hőszigetelt családi ház ideális választás azoknak, akik igényes, kényelmes és energiatakarékos otthont keresnek egy csendes, mégis frekventált környéken.
Főbb jellemzők:
• 6 szoba
• 2 nappali
• 2 fürdőszoba
• konyha, étkező, gardrób, háztartási helyiség
• fedett, 25 m²-es terasz
• borospince
• fedett dupla gépkocsitároló
Műszaki adatok:
• Fűtés: földszinten padlófűtés és radiátorok, emeleten radiátoros fűtés
• Kondenzációs gázkazán
• 300 literes indirekt melegíztároló, amely fűthető gázkazánról, napkollektorról vagy árammal
• Két kémény – szilárd tüzelés lehetőségével
• Ipari áram
• Elektromos autó töltésére előkészített csatlakozás az udvarban
• 10 cm vastag homlokzati hőszigetelés (Isolyth + hungarocell)
• Tondach cserépfedés, párazáró fóliával és hibátlan tetőszerkezettel
• Hőszigetelt nyílászárók redőnnyel és szúnyoghálóval
• Réz elektromos vezetékek
• Összközműves ingatlan
• Klímaberendezések minden fontos helyiségben
Belső terek és kialakítás:
A ház belső tereit modern, mégis mediterrán stílusú burkolatok és Ikea konyhabútor beépített gépekkel teszik otthonossá. A jól átgondolt alaprajznak köszönhetően a helyiségek tágasak és világosak.
A fedett terasz ideális helyszín a pihenésre vagy vendégek fogadására, melyhez kemence és szabadtéri főzési lehetőség is tartozik.
Egyéb információk:
A ház 20 évvel ezelőtt teljes körű felújításon esett át, és azóta is kiváló állapotban van, folyamatosan karbantartott.
Azonnal birtokba vehető!
Kedves Ügyfelünk, az ingatlanról videót is készítettünk. Ha ezt a hirdetést az Otthon Centrum weboldalán nézi, akkor a videóra a képek után tud kattintani. Ha egy másik weboldalon találta ezt a hirdetést, kérem nyissa meg az Otthon Centrum weboldalát, kattintson a „Regisztrációs szám keresése” menüpontra, és írja be ezt a regisztrációs számot a keresőbe: H509937 Itt meg tudja tekinteni az ingatlanról készült videót. Vagy írjon nekem, és szívesen elküldöm a videót.
________________________________________
Ez az ingatlan kivételes lehetőség Szekszárdon – a Damjanich utca nyugodt, családi házas övezetében, mégis közel a város központjához.
Ár és megtekintés részleteiért keressen bizalommal!
Eladó ház Szekszárd belváros nagy terek zárt udvar dupla autóbeálló szerethető mediterrán otthon oc H509937
________________________________________
Főbb jellemzők:
• 6 szoba
• 2 nappali
• 2 fürdőszoba
• konyha, étkező, gardrób, háztartási helyiség
• fedett, 25 m²-es terasz
• borospince
• fedett dupla gépkocsitároló
Műszaki adatok:
• Fűtés: földszinten padlófűtés és radiátorok, emeleten radiátoros fűtés
• Kondenzációs gázkazán
• 300 literes indirekt melegíztároló, amely fűthető gázkazánról, napkollektorról vagy árammal
• Két kémény – szilárd tüzelés lehetőségével
• Ipari áram
• Elektromos autó töltésére előkészített csatlakozás az udvarban
• 10 cm vastag homlokzati hőszigetelés (Isolyth + hungarocell)
• Tondach cserépfedés, párazáró fóliával és hibátlan tetőszerkezettel
• Hőszigetelt nyílászárók redőnnyel és szúnyoghálóval
• Réz elektromos vezetékek
• Összközműves ingatlan
• Klímaberendezések minden fontos helyiségben
Belső terek és kialakítás:
A ház belső tereit modern, mégis mediterrán stílusú burkolatok és Ikea konyhabútor beépített gépekkel teszik otthonossá. A jól átgondolt alaprajznak köszönhetően a helyiségek tágasak és világosak.
A fedett terasz ideális helyszín a pihenésre vagy vendégek fogadására, melyhez kemence és szabadtéri főzési lehetőség is tartozik.
Egyéb információk:
A ház 20 évvel ezelőtt teljes körű felújításon esett át, és azóta is kiváló állapotban van, folyamatosan karbantartott.
Azonnal birtokba vehető!
Kedves Ügyfelünk, az ingatlanról videót is készítettünk. Ha ezt a hirdetést az Otthon Centrum weboldalán nézi, akkor a videóra a képek után tud kattintani. Ha egy másik weboldalon találta ezt a hirdetést, kérem nyissa meg az Otthon Centrum weboldalát, kattintson a „Regisztrációs szám keresése” menüpontra, és írja be ezt a regisztrációs számot a keresőbe: H509937 Itt meg tudja tekinteni az ingatlanról készült videót. Vagy írjon nekem, és szívesen elküldöm a videót.
________________________________________
Ez az ingatlan kivételes lehetőség Szekszárdon – a Damjanich utca nyugodt, családi házas övezetében, mégis közel a város központjához.
Ár és megtekintés részleteiért keressen bizalommal!
Eladó ház Szekszárd belváros nagy terek zárt udvar dupla autóbeálló szerethető mediterrán otthon oc H509937
________________________________________
Regisztrációs szám
H509937
Az ingatlan adatai
Értékesités
eladó
Jogi státusz
használt
Jelleg
ház
Építési mód
tégla
Méret
236 m²
Bruttó méret
247 m²
Telek méret
334 m²
Terasz / erkély mérete
11 m²
Kert méret
180 m²
Fűtés
Gáz cirkó
Belmagasság
270 cm
Lakáson belüli szintszám
2
Tájolás
Kelet
Állapot
Jó
Homlokzat állapota
Jó
Pince
Önálló
Környék
jó közlekedés, központi
Építés éve
1980
Fürdőszobák száma
2
Társaház kert
igen
Fedett beállók száma
2
Víz
Van
Gáz
Van
Villany
Van
Csatorna
Van
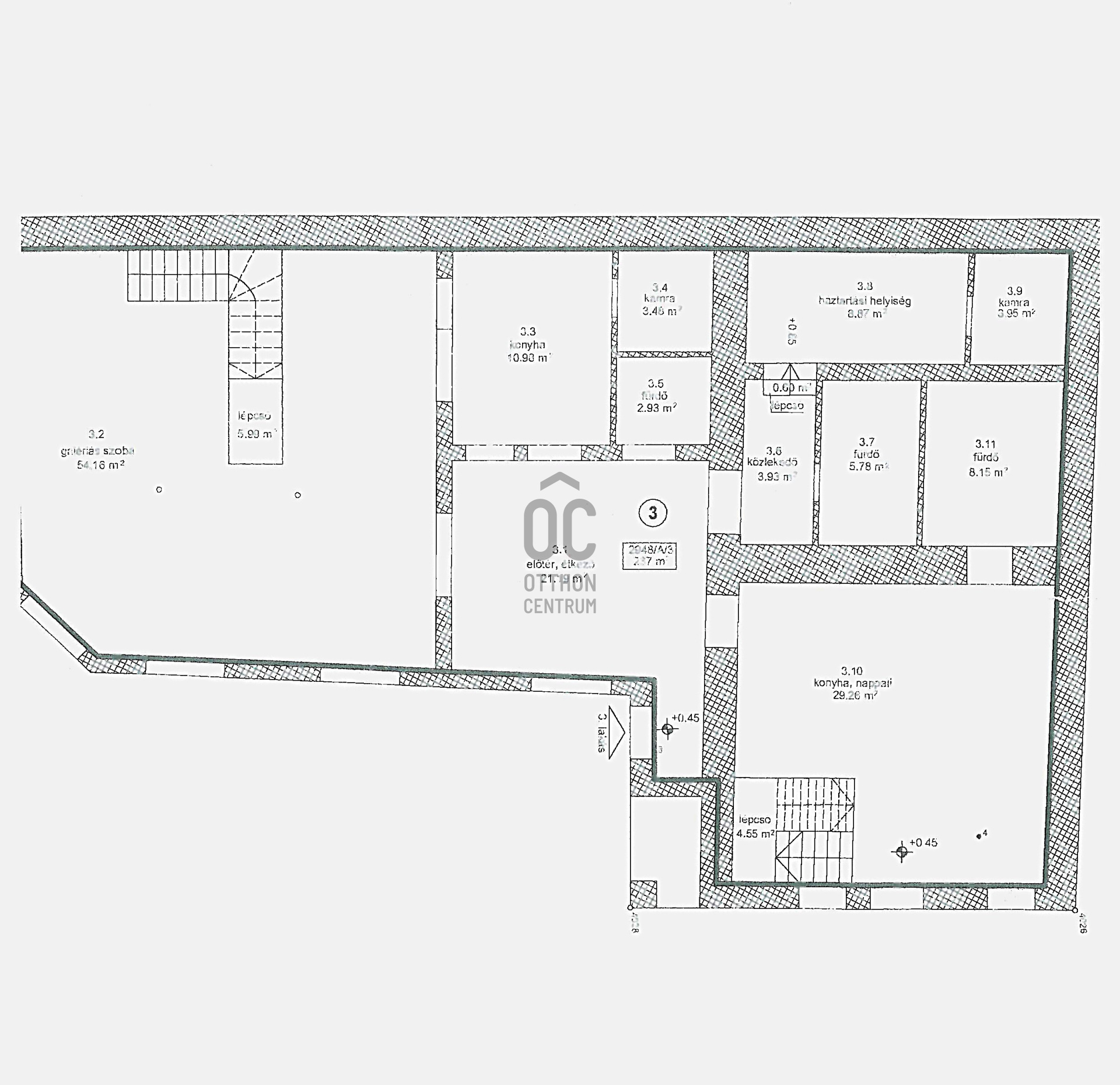
Helyiségek
nappali-konyha
29.26 m²
fürdőszoba
5.78 m²
fürdőszoba
8.15 m²
közlekedő
3.93 m²
kamra
3.95 m²
háztartási helyiség
8.87 m²
ebédlő
21.19 m²
fürdőszoba
2.93 m²
kamra
3.48 m²
konyha
10.9 m²
nappali
54.16 m²
szoba
20.94 m²
szoba
21.44 m²
szoba
14.44 m²
közlekedő
10.42 m²
szoba
7.78 m²
galéria
8.98 m²
tároló
6 m²
Deli Richárd
Hitelszakértő