Eladó lakás, H510352
Budapest XI. kerület, Sasad

169 900 000 Ft

441 000 €

  • 114m²
  • 4 szoba
  • félszuterén

Felújított. Korszerű.

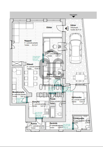
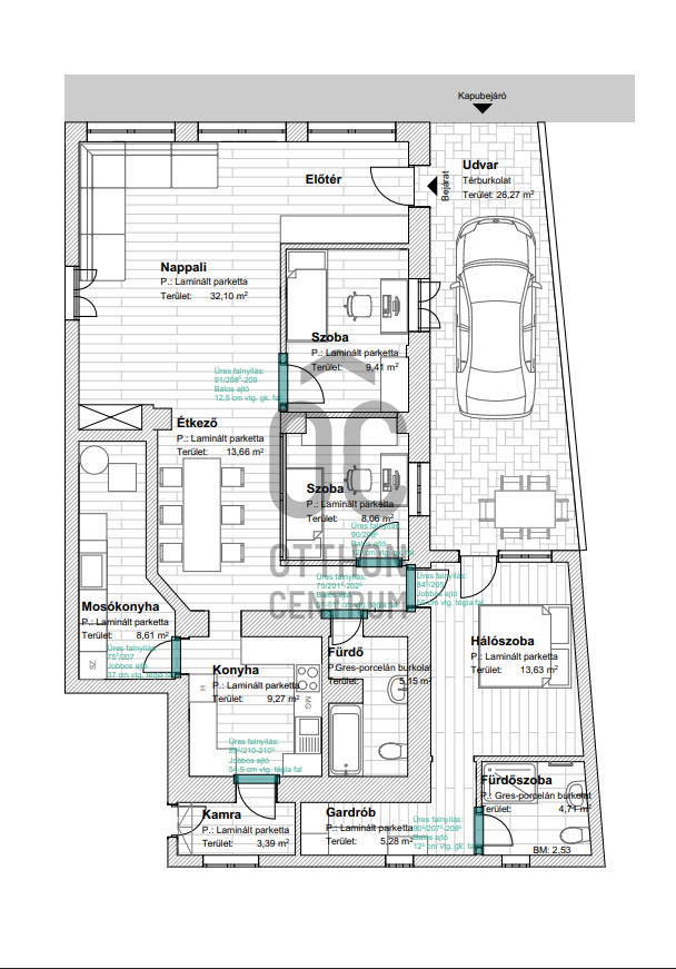
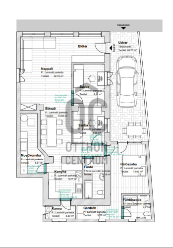
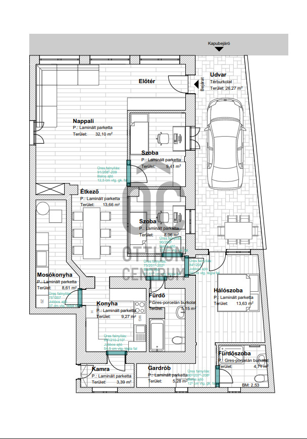
Eladó a Budapest XI. kerületben, Sasadon, csendes mellékutcában egy tejleskörűen felújított nettó 114 m2-es, földszinti, 4 szobás társsasházi lakás. A lakásba külön bejáraton, a saját térkövezett, 27 m2-es udvaron át lehet bejutni automatizált nagykapun. Ezt a burkolt kertrészt gépkocsi beállónak lehet használni, de alkalmas terasznak is. Az ingatlan előtér, nappali-étkező- konyha, három szoba, gardrób, kettő fürdőszoba, háztartási helyiség valamint közlekedőből áll. A korszerű igényeknek megfelelően biztonsági ajtó, szigetelő műanyag nyílászárók, hőszivattyús fűtés, légkondicionáló, szigetelt alap, falak és födém. A kamrán keresztül a közös tárolóba, onnan a közös kertbe lehet kijutni. Az ingatlan megközelítése, közlekedés kifejezetten jó. Gépkocsival, de akár gyalogosan is az M7 autópálya és az ott található tömegközlekedés megállók pár perc, 8E, 53-as, 139-es,150-es, 154-es busz valamint éjszakai járatok. Sétatávolságra bevásárlási lehetőségek, iskola, óvoda, egészségügyi intézmények, egyéb szolgáltatások.

Regisztrációs szám

H510352

Az ingatlan adatai

Értékesités
eladó
Jogi státusz
használt
Jelleg
lakás
Építési mód
tégla
Méret
114 m²
Bruttó méret
140 m²
Fűtés
hőszivattyú
Belmagasság
240 cm
Lakáson belüli szintszám
1
Tájolás
Dél-nyugat
Lépcsőház típusa
nincs
Állapot
Kiváló
Homlokzat állapota
Lépcsőház állapota
Környék
csendes, jó közlekedés, zöld
Építés éve
1980
Fürdőszobák száma
2
Fekvés
utcai
Víz
Van
Villany
Van
Csatorna
Van
Kertkapcsolatos
igen
Tároló
Közös

Helyiségek

nappali
32.1 m²
ebédlő
13.6 m²
konyha
9.3 m²
kamra
3.4 m²
szoba
13.6 m²
szoba
9.5 m²
szoba
8.6 m²
fürdőszoba-wc
5.1 m²
fürdőszoba-wc
4.7 m²
háztartási helyiség
8.6 m²
terasz
27 m²
Bitó István
Bitó István

Hitelszakértő

Irodánk kínálatából - Budaörs - Templom tér

for rent apartment

Index image
17

for sale family house

Index image
data_sheet.details.realestate.section.main.otthonstart_flag.label
16

for sale apartment

Index image
15

for sale apartment

Index image
39

for sale panel apartment

Index image
data_sheet.details.realestate.section.main.otthonstart_flag.label
30

for sale semi-detached house

Index image
32

for sale new construction semi-detached house

Index image
data_sheet.details.realestate.section.main.otthonstart_flag.label
5