259 000 000 Ft
675 000 €
- 156m²
- 5 szoba
- 5. emelet
Элегантная, панорамная квартира в сердце Визивароша — Csalogány utca Ощутите атмосферу старой Буды — тишину, уют и престиж, в двух шагах от центра города.
На пересечении I и II районов, между Batthyány tér и Széll Kálmán tér, предлагается просторная квартира с продуманной планировкой площадью 156 м², с террасой и великолепной панорамой на город в современной доме!
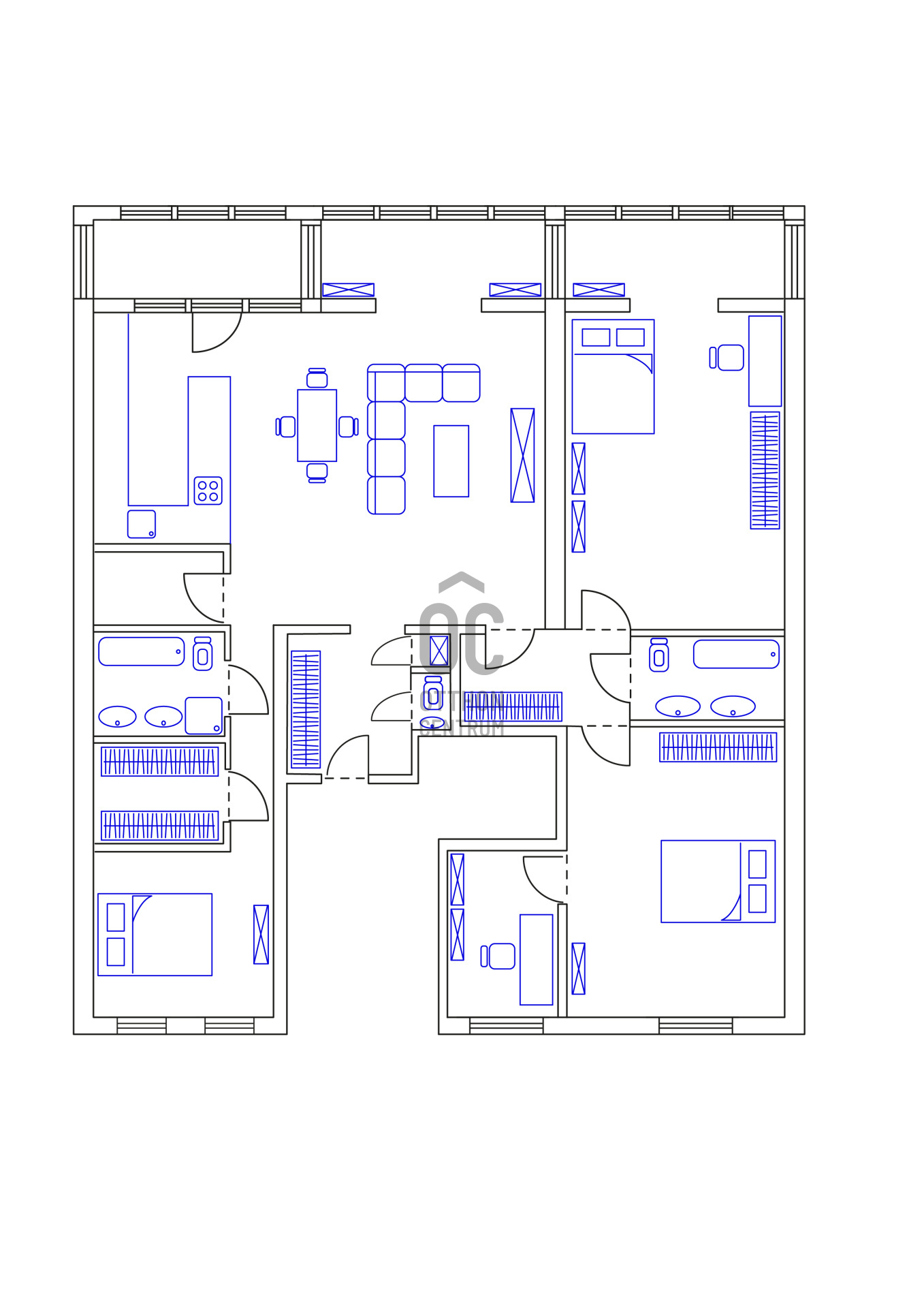
Описание квартиры
-Эта изысканная 5-комнатная квартира занимает весь верзний 5-й этаж ухоженного дома с лифтом
-Интерьер сочетает продуманную функциональность и утончённый стиль — всё готово к комфортной жизни.
-Просторная гостиная с современной встроенной кухней и обеденной зоной — идеальное место для семейных ужинов и встреч с друзьями.
-Три изолированные спальни по обе стороны гостиной обеспечивают максимальное уединение.
-Отдельный кабинет / гостевая комната — удобно для работы из дома.
-Две полноценные ванные комнаты, каждая с ванной, душем и двойной раковиной.
-Гостевой туалет — практичное преимущество для квартир такого формата.
-Отдельная гардеробная — обеспечивает порядок и комфорт.
-Отдельная прачечная делает быт лёгким и организованным.
-Из окон открывается широкая панорама на город и зелёные холмы Буды.
Гибкость планировки и инвестиционный потенциал!
По документам объект состоит из трёх отдельных квартир (91 м², 46 м² и 19 м²), каждая с собственным кадастровым номером.
Это открывает широкие возможности:вернуть изначальное деление на три независимых апартамента,объединить их в два просторных жилья,или сохранить текущее единое решение как роскошную семейную резиденцию.
Мы подготовили четыре планировочных варианта, демонстрирующих разные сценарии использования площади.
Идеальный выбор как для инвесторов, так и для семей, ценящих комфорт и гибкость.
Cобственный гараж!
На цокольном этаже здания находится помещение площадью 27 м² с прямым выходом на улицу. Оно зарегистрировано как «műhely» (мастерская) и оснащено электричеством, водой и газом — используется как гараж, может также использоваться как мастерская или склад.
О районе — Víziváros
Víziváros — один из самых красивых и престижных районов Буды, расположенный вдоль Дуная у подножия Замкового холма.
Это квартал, где история и современность сливаются в гармонии: старинные фасады соседствуют с элегантными ресторанами и зелёными дворами. В нескольких минутах пешком находятся:
-Цепной мост Сечени,
-Королевский дворец и фуникулёр на Замковый холм,
-знаменитая купальня Кирай,
-уютные кафе и винные бары на Fő utca,
-и набережная Дуная — идеальное место для прогулок и закатов.
Район славится своим спокойствием, безопасностью и высоким качеством жизни.
Недавно обновлённые тротуары, ухоженные фасады и зелёные зоны придают улице Csalogány особый шарм.
Всё необходимое буквально под рукой: Lidl — в 30 метрах от дома, торговый центр Mammut, школы, детские сады, остановки трамвая, метро и автобусов — всё в шаговой доступности.
Víziváros — это не просто локация, это стиль жизни: прогулки вдоль Дуная, утренний кофе в уютных кафе, тишина и панорама старого города.
Благодаря престижу и развитой инфраструктуре, район остаётся одним из самых востребованных для проживания и инвестиций в Будапеште.
Почему именно эта квартира:
-Тихое, но центральное расположение
-Премиум-отделка и продуманная планировка — гардеробная, гостевой туалет, прачечная
-Балкон, лифт, панорама, гараж — полный набор редких преимуществ
-Гибкая структура собственности — идеальна для проживания или инвестиций
-Престижный район Визиварош с историческим очарованием и инфраструктурой премиум-уровня
Не упустите возможность стать владельцем уникальной квартиры в сердце Буды!
Позвоните, чтобы узнать больше и договориться о просмотре — такие объекты появляются на рынке крайне редко.
Описание квартиры
-Эта изысканная 5-комнатная квартира занимает весь верзний 5-й этаж ухоженного дома с лифтом
-Интерьер сочетает продуманную функциональность и утончённый стиль — всё готово к комфортной жизни.
-Просторная гостиная с современной встроенной кухней и обеденной зоной — идеальное место для семейных ужинов и встреч с друзьями.
-Три изолированные спальни по обе стороны гостиной обеспечивают максимальное уединение.
-Отдельный кабинет / гостевая комната — удобно для работы из дома.
-Две полноценные ванные комнаты, каждая с ванной, душем и двойной раковиной.
-Гостевой туалет — практичное преимущество для квартир такого формата.
-Отдельная гардеробная — обеспечивает порядок и комфорт.
-Отдельная прачечная делает быт лёгким и организованным.
-Из окон открывается широкая панорама на город и зелёные холмы Буды.
Гибкость планировки и инвестиционный потенциал!
По документам объект состоит из трёх отдельных квартир (91 м², 46 м² и 19 м²), каждая с собственным кадастровым номером.
Это открывает широкие возможности:вернуть изначальное деление на три независимых апартамента,объединить их в два просторных жилья,или сохранить текущее единое решение как роскошную семейную резиденцию.
Мы подготовили четыре планировочных варианта, демонстрирующих разные сценарии использования площади.
Идеальный выбор как для инвесторов, так и для семей, ценящих комфорт и гибкость.
Cобственный гараж!
На цокольном этаже здания находится помещение площадью 27 м² с прямым выходом на улицу. Оно зарегистрировано как «műhely» (мастерская) и оснащено электричеством, водой и газом — используется как гараж, может также использоваться как мастерская или склад.
О районе — Víziváros
Víziváros — один из самых красивых и престижных районов Буды, расположенный вдоль Дуная у подножия Замкового холма.
Это квартал, где история и современность сливаются в гармонии: старинные фасады соседствуют с элегантными ресторанами и зелёными дворами. В нескольких минутах пешком находятся:
-Цепной мост Сечени,
-Королевский дворец и фуникулёр на Замковый холм,
-знаменитая купальня Кирай,
-уютные кафе и винные бары на Fő utca,
-и набережная Дуная — идеальное место для прогулок и закатов.
Район славится своим спокойствием, безопасностью и высоким качеством жизни.
Недавно обновлённые тротуары, ухоженные фасады и зелёные зоны придают улице Csalogány особый шарм.
Всё необходимое буквально под рукой: Lidl — в 30 метрах от дома, торговый центр Mammut, школы, детские сады, остановки трамвая, метро и автобусов — всё в шаговой доступности.
Víziváros — это не просто локация, это стиль жизни: прогулки вдоль Дуная, утренний кофе в уютных кафе, тишина и панорама старого города.
Благодаря престижу и развитой инфраструктуре, район остаётся одним из самых востребованных для проживания и инвестиций в Будапеште.
Почему именно эта квартира:
-Тихое, но центральное расположение
-Премиум-отделка и продуманная планировка — гардеробная, гостевой туалет, прачечная
-Балкон, лифт, панорама, гараж — полный набор редких преимуществ
-Гибкая структура собственности — идеальна для проживания или инвестиций
-Престижный район Визиварош с историческим очарованием и инфраструктурой премиум-уровня
Не упустите возможность стать владельцем уникальной квартиры в сердце Буды!
Позвоните, чтобы узнать больше и договориться о просмотре — такие объекты появляются на рынке крайне редко.
Regisztrációs szám
H510111
Az ingatlan adatai
Értékesités
eladó
Jogi státusz
használt
Jelleg
lakás
Építési mód
tégla
Méret
156 m²
Bruttó méret
156 m²
Fűtés
Gáz cirkó
Belmagasság
270 cm
Lakáson belüli szintszám
1
Tájolás
Dél-kelet
Panoráma
Egyéb
Lépcsőház típusa
zárt lépcsőház
Állapot
Kiváló
Homlokzat állapota
Kiváló
Lépcsőház állapota
Kiváló
Környék
csendes, jó közlekedés, zöld
Építés éve
2000
Fürdőszobák száma
2
Fekvés
utcai
Közös költség
78900
Garázs
Benne van az árban
Víz
Van
Gáz
Van
Villany
Van
Csatorna
Van
Lift
van
Helyiségek
előszoba
1 m²
wc-kézmosó
1 m²
háztartási helyiség
1 m²
nappali-konyha
1 m²
kazánház
1 m²
fürdőszoba-wc
1 m²
gardrób
1 m²
hálószoba
1 m²
hálószoba
1 m²
fürdőszoba-wc
1 m²
hálószoba
1 m²
szoba
1 m²
terasz
1 m²
Ruczek Krisztina
Hitelszakértő