Eladó családi ház, H509946
Diósd

310 000 000 Ft

803 000 €

  • 479m²
  • 7 szoba
Kiemelt megbízás

Discover your dream home in Diósd – a 7-room family house awaits you!

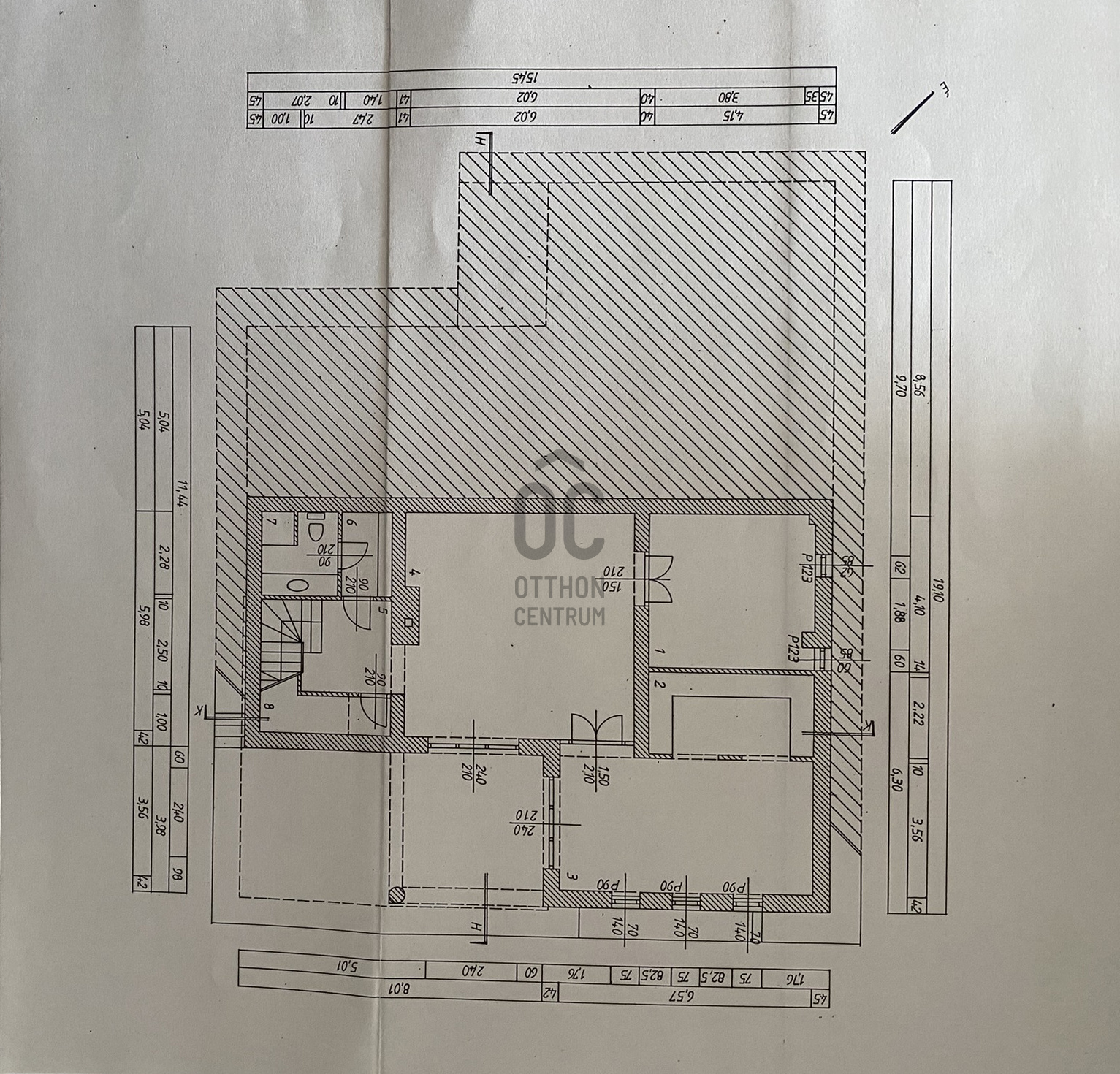
For Sale: Exclusive Three-Story Family House in a Quiet Street of Diósd** We offer for sale a meticulously constructed family house, built in the early 2000s, located in one of Diósd's calm and popular areas. The property spans 479 m² and is situated on a well-maintained 1111 m² plot. Thanks to its spacious dimensions and well-thought-out layout, the property is ideal for multi-generational living, as a combination of residence and office, or even for business purposes. The interior, designed by an interior architect, exudes an exclusive atmosphere. Premium quality finishes, colorful stained glass interior doors, and the Süttő limestone featured on the external facade highlight the elegance and timelessness of the house. **Ground Floor:** * Living room * Kitchen + dining area * Pantry * Bedroom * Bathroom * Dressing room * Guest toilet * Two-car garage with direct access to the home **Attic:** * 90% full-height ceiling * Living room * Bedroom * Dressing room * Bathroom * Two additional rooms * Storage room **Basement:** * Living room * Bathroom * Storage * Boiler room + laundry room * Kitchen + dining area * Direct access to the garden **Heating and Cooling:** * Vaillant gas boiler with a combination of underfloor and radiator heating * Snow melting system at the garage entrance * Separate heating circuit for the pool * Thermostats on each level * 6 Panasonic inverter (heating-cooling) air conditioning units **Garden:** * Well-maintained, grassy area * Planted with evergreens, perennials, and ornamental shrubs * Automatic irrigation system operating from its own well * Roman-style heated swimming pool This property is an ideal choice for those seeking a spacious, high-quality, multifunctional home in one of Diósd's best areas, in a tranquil environment, yet with excellent transport connections.

Regisztrációs szám

H509946

Az ingatlan adatai

Értékesités
eladó
Jogi státusz
használt
Jelleg
ház
Építési mód
tégla
Méret
479 m²
Bruttó méret
512 m²
Telek méret
1 111 m²
Fűtés
Gáz cirkó
Belmagasság
302 cm
Lakáson belüli szintszám
3
Tájolás
Dél-nyugat
Állapot
Homlokzat állapota
Környék
csendes, jó közlekedés
Építés éve
2001
Fürdőszobák száma
4
Garázs férőhely
2
Víz
Van
Gáz
Van
Villany
Van
Csatorna
Van

Helyiségek

nappali
35.88 m²
előszoba
7.44 m²
télikert
12.89 m²
konyha-étkező
27.76 m²
hálószoba
35.69 m²
gardrób
11.18 m²
garázs
36.12 m²
nappali
72.59 m²
hálószoba
23.1 m²
hálószoba
25.2 m²
gardrób
21.63 m²
Bitó István
Bitó István

Hitelszakértő

Irodánk kínálatából - Budaörs - Templom tér

eladó családi ház

Index image
59

eladó családi ház

Index image
Elérhető Otthon Start hitellel
16

eladó sorház

Index image
19

eladó újépítésű ikerház

Index image
25

eladó családi ház

Index image
30

eladó ikerház

Index image
16