Elérhető Otthon Start hitellel
Eladó családi ház, H509716
Szekszárd, Bottyán-hegy, Ezerjó köz

58 000 000 Ft

155 000 €

  • 168m²
  • 4 szoba
Kiemelt megbízás

Eladó családi ház Szekszárd

A Bottyán-hegyi területen található ház 1972-es építése óta korszerűsítésre került:

- 5 cm hungarocell hőszigetelés a teljes homlokzaton
- pala tető zsindelyezése
- Sanier Duval kazán
- LG klíma
- műanyag ablakok és redőnyök, fa tokban

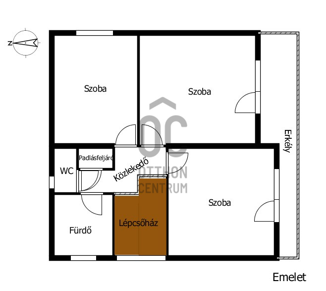
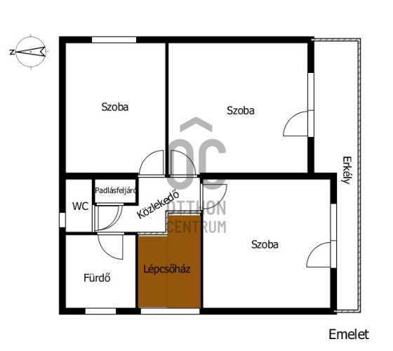
Ezt leszámítva gyári a ház, felújítandó állapotú. 38 cm vastag téglából épültek a fő falak, 12/15 cm vastagok
a válaszfalak. A tájékoztató jellegű alaprajzon jelöltek a falvastagságot és a helyiségek elrendezését.
Kis átalakításokkal egy nagyon élhető, jó terekkel rendelkező háza lehet annak a családnak aki atomvillanás álló
alapokkal rendelkező felújítási alapot keres. A teljes tervdokumentáció rendelkezésre áll 1970-ből, még az anyag-
beszerzés könyvelése is megőrzésre került.

Ha a képek és az adatok felkeltették az érdeklődésed nézzük meg a helyszínen!

Regisztrációs szám

H509716

Az ingatlan adatai

Értékesités
eladó
Jogi státusz
használt
Jelleg
ház
Építési mód
tégla
Méret
168 m²
Bruttó méret
212 m²
Telek méret
624 m²
Terasz / erkély mérete
20 m²
Fűtés
gáz kazán
Belmagasság
270 cm
Lakáson belüli szintszám
2
Tájolás
Dél
Panoráma
városi panoráma, Zöldre néző panoráma
Állapot
Felújítandó
Homlokzat állapota
Átlagos
Környék
csendes, jó közlekedés, zöld
Építés éve
1972
Fürdőszobák száma
2
Garázs
Benne van az árban
Garázs férőhely
1
Víz
Van
Gáz
Van
Villany
Van
Csatorna
Van
Tároló
Önálló

Helyiségek

előszoba
1 m²
konyha
2 m²
fürdőszoba-wc
3 m²
hálószoba
4 m²
nappali
5 m²
kazánház
6 m²
Moczok Ágnes
Moczok Ágnes

Hitelszakértő

Irodánk kínálatából - Szekszárd - Széchenyi utca

for sale semi-detached house

Index image
data_sheet.details.realestate.section.main.otthonstart_flag.label
23

for sale agricultural property

Index image
9

for sale apartment

Index image
data_sheet.details.realestate.section.main.otthonstart_flag.label
15

for sale semi-detached house

Index image
data_sheet.details.realestate.section.main.otthonstart_flag.label
11

for sale apartment

Index image
data_sheet.details.realestate.section.main.otthonstart_flag.label
18

for sale family house

Index image
data_sheet.details.realestate.section.main.otthonstart_flag.label
7

for sale commercial property

Index image
3