89 900 000 Ft
236 000 €
- 51m²
- 2 szoba
- 4. emelet
XIII. Béke tér közelében, kiváló állapotú újszerű otthon
Modern, újszerű lakás a XIII. kerületben, Béke tér közelében
Eladásra kínálunk egy igényesen kialakított, kiváló állapotú, kertre néző lakást Angyalföld központi részén,
egy 2012-ben épült, gondosan karbantartott társasház 4. emeletén.
Az ingatlan minden kényelmet biztosít, így ideális választás lehet fiatal pároknak, egyedülállóknak vagy befektetőknek is.
Főbb jellemzők
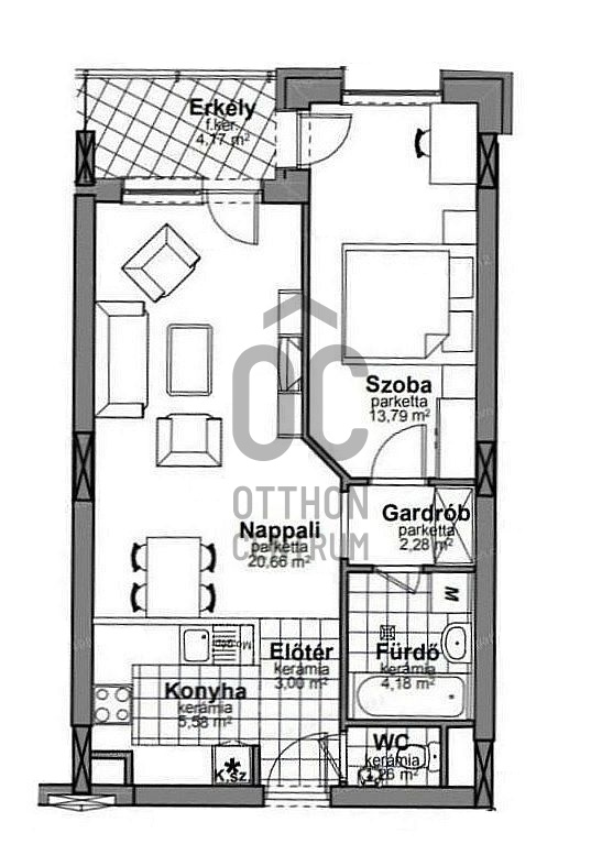
Alapterület: 51 m²
Erkély: 4 m², hangulatos, kerti panorámával
Elosztás: tágas nappali, kényelmes hálószoba, külön konyha- és étkezőrész
Fürdőszoba: modern kialakítás, elektromos törölközőszárítóval és mosógéppel
Külön WC kézmosóval
Gardrób biztosítja a praktikus tárolást
Hőszigetelt nyílászárók és modern gépészet
Házközponti fűtés egyedi mérőkkel – minden fogyasztás alapján fizetendő
Közös költség: 24 000 Ft/hó
Tulajdonviszony: 1/1 tulajdon
Az ár tartalmazza a beépített bútorokat és a konyhai gépeket.
A társasházról
A ház hét emeletes, modern építésű, aktív közös képviselettel és barátságos lakóközösséggel.
A közös terek tiszták, rendezettek, a ház műszaki állapota igen jó. 2 lift áll rendelkezésre.
Elhelyezkedés
Az ingatlan Angyalföld szívében, a Béke tér közelében található. A környék csendes, mégis központi elhelyezkedésű, számos szolgáltatás, iskola, óvoda, üzlet, étterem és sportolási lehetőség elérhető néhány perces sétával.
A XIII. kerület az utóbbi években Budapest egyik legnépszerűbb és leggyorsabban fejlődő városrésze, ahol a modern városi életstílus és a zöld környezet tökéletes egyensúlyt alkot.
Közlekedés
Buszmegálló (20E, 30, 30A, 230): kb. 300 méterre – közvetlen kapcsolat a Keleti pályaudvarral
14-es villamos: Béke téri megálló, kb. 7 perc séta
Vasútállomás: mindössze 8 perc gyalog
A belváros és a főbb csomópontok könnyen és gyorsan megközelíthetők.
✨ Ez a lakás kiváló választás mindazoknak, akik modern, azonnal költözhető otthont keresnek egy rendezett, zöld környezetben, Budapest egyik legkedveltebb kerületében.
Eladásra kínálunk egy igényesen kialakított, kiváló állapotú, kertre néző lakást Angyalföld központi részén,
egy 2012-ben épült, gondosan karbantartott társasház 4. emeletén.
Az ingatlan minden kényelmet biztosít, így ideális választás lehet fiatal pároknak, egyedülállóknak vagy befektetőknek is.
Főbb jellemzők
Alapterület: 51 m²
Erkély: 4 m², hangulatos, kerti panorámával
Elosztás: tágas nappali, kényelmes hálószoba, külön konyha- és étkezőrész
Fürdőszoba: modern kialakítás, elektromos törölközőszárítóval és mosógéppel
Külön WC kézmosóval
Gardrób biztosítja a praktikus tárolást
Hőszigetelt nyílászárók és modern gépészet
Házközponti fűtés egyedi mérőkkel – minden fogyasztás alapján fizetendő
Közös költség: 24 000 Ft/hó
Tulajdonviszony: 1/1 tulajdon
Az ár tartalmazza a beépített bútorokat és a konyhai gépeket.
A társasházról
A ház hét emeletes, modern építésű, aktív közös képviselettel és barátságos lakóközösséggel.
A közös terek tiszták, rendezettek, a ház műszaki állapota igen jó. 2 lift áll rendelkezésre.
Elhelyezkedés
Az ingatlan Angyalföld szívében, a Béke tér közelében található. A környék csendes, mégis központi elhelyezkedésű, számos szolgáltatás, iskola, óvoda, üzlet, étterem és sportolási lehetőség elérhető néhány perces sétával.
A XIII. kerület az utóbbi években Budapest egyik legnépszerűbb és leggyorsabban fejlődő városrésze, ahol a modern városi életstílus és a zöld környezet tökéletes egyensúlyt alkot.
Közlekedés
Buszmegálló (20E, 30, 30A, 230): kb. 300 méterre – közvetlen kapcsolat a Keleti pályaudvarral
14-es villamos: Béke téri megálló, kb. 7 perc séta
Vasútállomás: mindössze 8 perc gyalog
A belváros és a főbb csomópontok könnyen és gyorsan megközelíthetők.
✨ Ez a lakás kiváló választás mindazoknak, akik modern, azonnal költözhető otthont keresnek egy rendezett, zöld környezetben, Budapest egyik legkedveltebb kerületében.
Regisztrációs szám
H509607
Az ingatlan adatai
Értékesités
eladó
Jogi státusz
használt
Jelleg
lakás
Építési mód
tégla
Méret
51 m²
Bruttó méret
55,1 m²
Terasz / erkély mérete
4,1 m²
Fűtés
központi fűtés
Belmagasság
270 cm
Tájolás
Észak-kelet
Lépcsőház típusa
zárt lépcsőház
Állapot
Jó
Homlokzat állapota
Jó
Lépcsőház állapota
Jó
Környék
csendes, jó közlekedés, központi
Építés éve
2012
Fürdőszobák száma
1
Fekvés
kertre néző
Közös költség
24000
Víz
Van
Villany
Van
Csatorna
Van
Lift
van
Helyiségek
nappali-étkező
20.66 m²
hálószoba
13.79 m²
konyha
5.58 m²
fürdőszoba
4.18 m²
wc-kézmosó
1.26 m²
gardrób
2.28 m²
előszoba
3 m²
erkély
4.18 m²
Vitéz Kornél
Hitelszakértő