Elérhető Otthon Start hitellel
Eladó családi ház, H509378
Zalabaksa, Petőfi út

10 000 000 Ft

26 000 €

  • 86m²
  • 2 szoba
Kiemelt megbízás

A building awaiting renovation in Zalabaks – a true challenge for creative hands!

Once a house that has seen better days is looking for its savior! I am offering this characterful building for sale in Zalabaksá, next to the busy Route 86 leading to Slovenia, which is in need of renovation and awaits new life! It previously operated as a commercial unit, but now it can be anything – only your imagination sets the limit: - A small restaurant or snack bar - A guesthouse - A truck parking area - A family home - …or even something entirely unique! The 45 cm thick brick walls still stand solidly, and the “panoramic broken” windows provide natural ventilation. :) The roof is in need of complete replacement, which presents an excellent opportunity for converting the attic and creating new spaces. The back terrace currently modestly hides behind the vegetation, but with a little care, it could become a true gem. Nearby, there is a fish pond, thermal bath, and it is ideal for those wishing to fish, hike, or relax in Slovenia. If you are not afraid of challenges and enjoy seeing potential in the ruins of a building, then this place is for you! Feel free to contact me if you see the opportunity and would like to give it a new life!

Regisztrációs szám

H509378

Az ingatlan adatai

Értékesités
eladó
Jogi státusz
használt
Jelleg
ház
Építési mód
tégla
Méret
86 m²
Bruttó méret
110 m²
Telek méret
1 739 m²
Terasz / erkély mérete
20 m²
Kert méret
1 739 m²
Belmagasság
300 cm
Tájolás
Dél
Panoráma
Zöldre néző panoráma
Állapot
Felújítandó
Homlokzat állapota
Átlagon aluli
Környék
jó közlekedés, zöld, központi
Építés éve
1900
Fürdőszobák száma
1
Társaház kert
igen
Víz
Van
Gáz
Utcán
Villany
Van

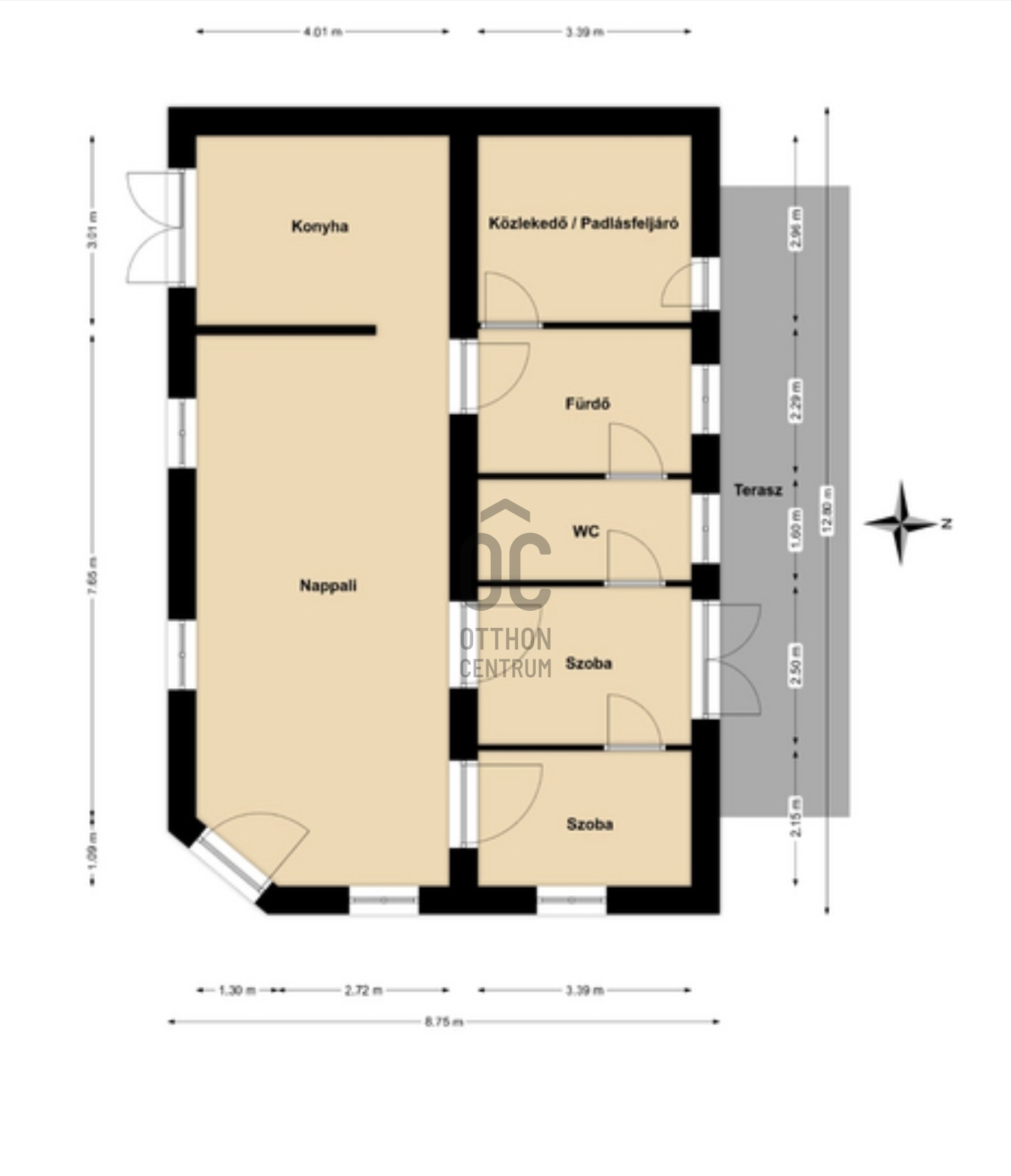
Helyiségek

hall
34 m²
konyha
12 m²
hálószoba
8 m²
hálószoba
8 m²
fürdőszoba
8 m²
fürdőszoba-wc
6 m²
közlekedő
10 m²
terasz
20 m²

Irodánk kínálatából - Zalaegerszeg - Kossuth út

eladó nyaraló

Index image
17

eladó telek

Index image
17

eladó nyaraló

Index image
17

eladó nyaraló

Index image
18