109 900 000 Ft
281 000 €
- 55m²
- 2 szoba
- 1. emelet













Fedezze fel Budapest szívében ezt a kényelmes, 2 szobás lakást a Palotanegyedben!
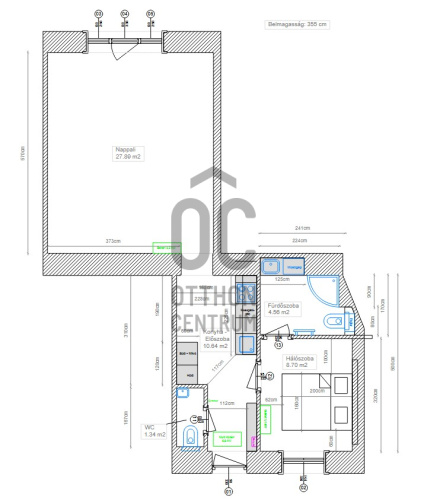
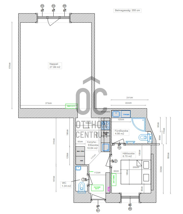
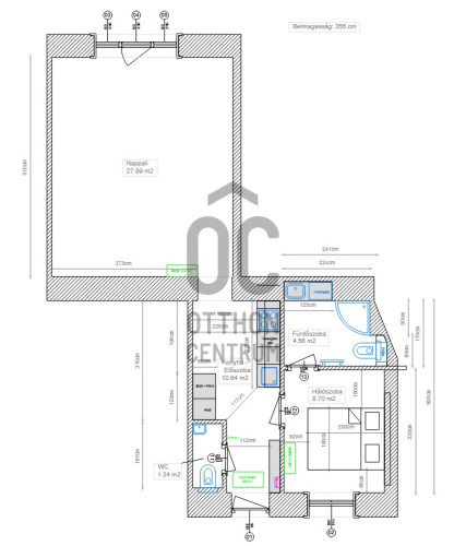
A VIII. kerület legszebb, kiemelkedően kedvelt Palotanegyed városrészében kínálom eladásra ezt a nagyon egyedi stílusban felújított 55 nm-es 2 szobás, emeleti, liftes, rendezett házban lévő ingatlant.
A jó állapotú liftes, polgári jellegű tégla építésű társasház rendezett. Lakóközössége nyugodt, csendes.
A lakás teljes felújításon esett át. Mint a képeken is látható, minden új. Nagyon jó az alaprajza, mert a háló és a fürdő egy intim teret ad, a konyha tágas, helyet kapott egy vendég WC is, ill a nappali az óriási méretével lehetőséget ad minden funkció valódi kihasználásra. Vendégek fogadása esetén is kényelmes.
A lokáció páratlan, hiszen 2 perc a Blaha Lujza tér, ugyanakkor egy belvárostól szokatlanul csendes utcában vagyunk.
A lakás fenntartása kedvező nagyon. Akár kiadásra, akár saját célra is tökéletes választás lehet!
Keressen és tekintsük meg még ma!
A jó állapotú liftes, polgári jellegű tégla építésű társasház rendezett. Lakóközössége nyugodt, csendes.
A lakás teljes felújításon esett át. Mint a képeken is látható, minden új. Nagyon jó az alaprajza, mert a háló és a fürdő egy intim teret ad, a konyha tágas, helyet kapott egy vendég WC is, ill a nappali az óriási méretével lehetőséget ad minden funkció valódi kihasználásra. Vendégek fogadása esetén is kényelmes.
A lokáció páratlan, hiszen 2 perc a Blaha Lujza tér, ugyanakkor egy belvárostól szokatlanul csendes utcában vagyunk.
A lakás fenntartása kedvező nagyon. Akár kiadásra, akár saját célra is tökéletes választás lehet!
Keressen és tekintsük meg még ma!
Regisztrációs szám
H508497
Az ingatlan adatai
Értékesités
eladó
Jogi státusz
használt
Jelleg
lakás
Építési mód
tégla
Méret
55 m²
Bruttó méret
56 m²
Terasz / erkély mérete
1 m²
Fűtés
values.realestate.futes.26
Belmagasság
350 cm
Lakáson belüli szintszám
1
Tájolás
Kelet
Lépcsőház típusa
függőfolyosó
Állapot
Kiváló
Homlokzat állapota
Kiváló
Lépcsőház állapota
Kiváló
Környék
jó közlekedés, központi
Építés éve
1910
Fürdőszobák száma
1
Fekvés
utcai
Közös költség
19195
Víz
Van
Villany
Van
Csatorna
Van
Lift
van
Helyiségek
előszoba
4 m²
hálószoba
9 m²
fürdőszoba-wc
4 m²
wc-kézmosó
2 m²
konyha
4 m²
nappali-étkező
27 m²