Elérhető Otthon Start hitellel
Eladó családi ház, H508400
Kóka

37 000 000 Ft

97 000 €

  • 95,9m²
  • 5 szoba
Kiemelt megbízás

Eladó önálló családi ház Kókán, csendes, rendezett környéken!

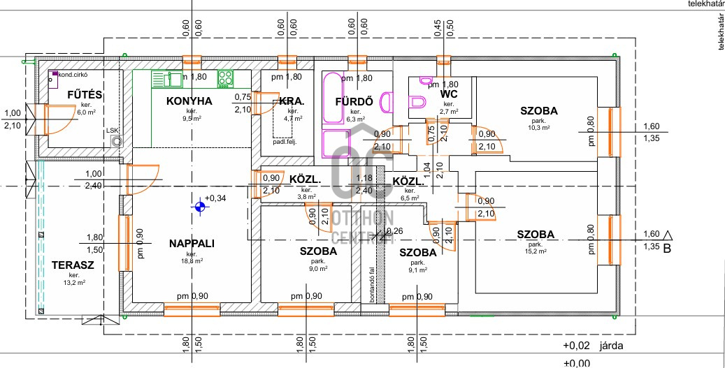
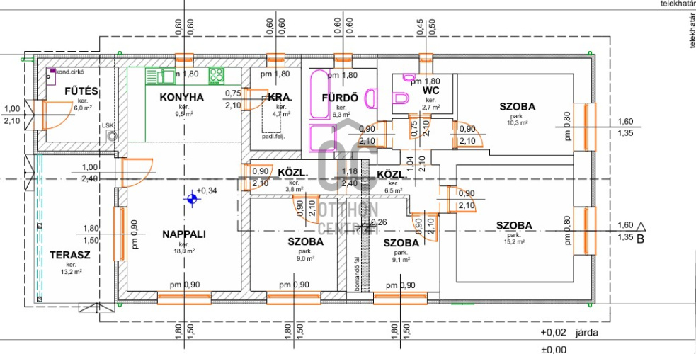
Az ingatlan amerikai konyhás nappalival + 4 különnyíló szobával rendelkezik, 2022-ben teljes újjáépítésen esett át.
Szerkezete vegyesfalazatú, új tetővel, műanyag nyílászárókkal, klímával és vegyestüzelésű kazánnal felszerelt.

A 950 m²-es telek rendezett, tágas, több lehetőséget kínál kertészkedésre vagy további bővítésre.

Az ingatlan tehermentes, készpénzes vásárlót vár!

Amennyiben felkeltettem érdeklődését, kérem hívjon bizalommal!

Regisztrációs szám

H508400

Az ingatlan adatai

Értékesités
eladó
Jogi státusz
használt
Jelleg
ház
Építési mód
vegyesfalazatú
Méret
95,9 m²
Bruttó méret
105 m²
Telek méret
957 m²
Terasz / erkély mérete
13,2 m²
Fűtés
vegyes cirkó
Belmagasság
250 cm
Tájolás
Dél-nyugat
Állapot
Átlagos
Homlokzat állapota
Pince
Önálló
Építés éve
2022
Fürdőszobák száma
1
Víz
Van
Gáz
Van
Villany
Van
Csatorna
Van
Tároló
Önálló

Helyiségek

konyha-étkező
9.5 m²
nappali
18.8 m²
terasz
13.2 m²
kazánház
6 m²
kamra
4.7 m²
fürdőszoba
6.3 m²
wc
2.7 m²
szoba
10.3 m²
szoba
15.2 m²
szoba
9 m²
közlekedő
10.3 m²
szoba
9.1 m²
Helembai Dávid
Helembai Dávid

Hitelszakértő

Irodánk kínálatából - IX. kerület - Allure Residence

eladó lakás

Index image
9

for sale panel apartment

Index image
data_sheet.details.realestate.section.main.otthonstart_flag.label
19

for rent apartment

Index image
20

for sale apartment

Index image
21

for sale new construction semi-detached house

Index image
data_sheet.details.realestate.section.main.otthonstart_flag.label
7

for rent apartment

Index image
18

for sale apartment

Index image
32

for sale row house

Index image
data_sheet.details.realestate.section.main.otthonstart_flag.label
16