74 900 000 Ft
192 000 €
- 49m²
- 2 szoba
- 8. emelet




































Fedezze fel Budapest 09. kerületének szívében, Középső Ferencvárosban található, felújítandó lakásunkat, amely tökéletes választás lehet fiataloknak vagy pályakezdőknek akik saját otthonra, vagy befektetési lehetőségre vágynak.
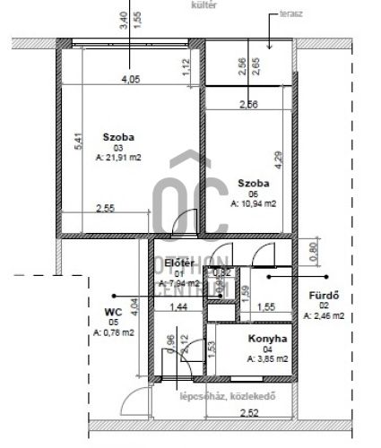
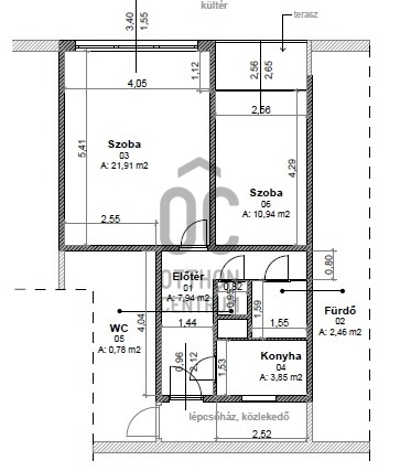
Ez a 49 négyzetméteres ingatlan egy tágas nappalival és egy kényelmes hálószobával rendelkezik, amely lehetőséget biztosít a kreatív átalakításra.
Erről az átalakításról egy lakberendező program segítségével adunk néhány ízelítő képet, érdemes megnézni, hogy minimális felújítással milyen csodálatos kis lakást lehet ebből az alapanyagból alkotni.
Az ingatlanhoz tartozik egy 3 négyzetméteres erkély is, ahol pihenhet, élvezheti a friss levegőt és a város panorámáját, jelenleg ez loggia-á van átalakítva.
A lakás állapota felújítandó, így Önnek lehetősége nyílik arra, hogy saját ízlésének megfelelően alakítsa ki a teret, ahogy erre már utaltunk.
A távfűtés egyedi mérésének köszönhetően a fűtési költségek is kedvezőek lehetnek.
A központi elhelyezkedésnek köszönhetően a környék ellátottsága kiváló: a közelben számos bolt, kávézó és étterem található, így az életminősége garantált. A közlekedési lehetőségek is figyelemre méltóak, hiszen az ingatlan egy fontos közlekedési csomópont közelében helyezkedik el, ami kitűnő közlekedést biztosít a város többi része felé.
A közeli metró- és buszmegállók révén könnyedén elérheti Budapest bármely pontját, így az ingatlan ideális választás lehet azok számára, akik aktív életet élnek, vagy a főváros nyújtotta lehetőségeket szeretnék kihasználni.
A Középső Ferencváros felkapott környékén elhelyezkedő lakás nemcsak otthon, hanem befektetési lehetőség szempontjából is vonzó, hiszen a környék folyamatosan fejlődik, és az ingatlanpiac itt dinamikusan növekszik. A bővítési lehetőségek révén Ön saját igényei szerint alakíthatja tovább az ingatlant, így a jövőbeni értéknövekedés is biztosított.
Ne habozzon, hiszen egy ilyen lehetőség nem mindennapi! Amennyiben kérdései merülnének fel az ingatlannal vagy a környékkel kapcsolatban, bizalommal kereshet minket, szívesen állunk rendelkezésére, hogy segítsünk Önnek megtalálni álmai otthonát vagy befektetését!
Ez a 49 négyzetméteres ingatlan egy tágas nappalival és egy kényelmes hálószobával rendelkezik, amely lehetőséget biztosít a kreatív átalakításra.
Erről az átalakításról egy lakberendező program segítségével adunk néhány ízelítő képet, érdemes megnézni, hogy minimális felújítással milyen csodálatos kis lakást lehet ebből az alapanyagból alkotni.
Az ingatlanhoz tartozik egy 3 négyzetméteres erkély is, ahol pihenhet, élvezheti a friss levegőt és a város panorámáját, jelenleg ez loggia-á van átalakítva.
A lakás állapota felújítandó, így Önnek lehetősége nyílik arra, hogy saját ízlésének megfelelően alakítsa ki a teret, ahogy erre már utaltunk.
A távfűtés egyedi mérésének köszönhetően a fűtési költségek is kedvezőek lehetnek.
A központi elhelyezkedésnek köszönhetően a környék ellátottsága kiváló: a közelben számos bolt, kávézó és étterem található, így az életminősége garantált. A közlekedési lehetőségek is figyelemre méltóak, hiszen az ingatlan egy fontos közlekedési csomópont közelében helyezkedik el, ami kitűnő közlekedést biztosít a város többi része felé.
A közeli metró- és buszmegállók révén könnyedén elérheti Budapest bármely pontját, így az ingatlan ideális választás lehet azok számára, akik aktív életet élnek, vagy a főváros nyújtotta lehetőségeket szeretnék kihasználni.
A Középső Ferencváros felkapott környékén elhelyezkedő lakás nemcsak otthon, hanem befektetési lehetőség szempontjából is vonzó, hiszen a környék folyamatosan fejlődik, és az ingatlanpiac itt dinamikusan növekszik. A bővítési lehetőségek révén Ön saját igényei szerint alakíthatja tovább az ingatlant, így a jövőbeni értéknövekedés is biztosított.
Ne habozzon, hiszen egy ilyen lehetőség nem mindennapi! Amennyiben kérdései merülnének fel az ingatlannal vagy a környékkel kapcsolatban, bizalommal kereshet minket, szívesen állunk rendelkezésére, hogy segítsünk Önnek megtalálni álmai otthonát vagy befektetését!
Regisztrációs szám
H507963
Az ingatlan adatai
Értékesités
eladó
Jogi státusz
használt
Jelleg
lakás
Építési mód
panel
Méret
49 m²
Bruttó méret
50,5 m²
Terasz / erkély mérete
3 m²
Fűtés
egyedi távfűtés
Belmagasság
265 cm
Tájolás
Dél-nyugat
Lépcsőház típusa
zárt lépcsőház
Állapot
Felújítandó
Homlokzat állapota
Jó
Lépcsőház állapota
Jó
Építés éve
1981
Fürdőszobák száma
1
Fekvés
utcai
Víz
Van
Gáz
Van
Villany
Van
Csatorna
Van
Lift
van
Helyiségek
előszoba
2 m²
konyha
5.5 m²
közlekedő
3 m²
fürdőszoba-wc
3.5 m²
nappali
23 m²
szoba
12 m²
erkély
3 m²

Örvössy Tamás
Hitelszakértő