Elérhető Otthon Start hitellel
Eladó lakás,
H507887
Budapest VI. kerület, Külső VI., Szív utca
85 000 000 Ft
219 000 €
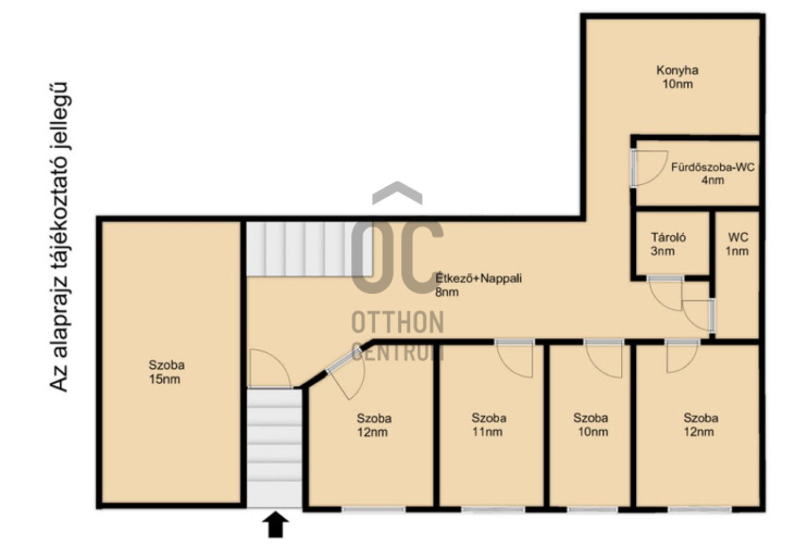
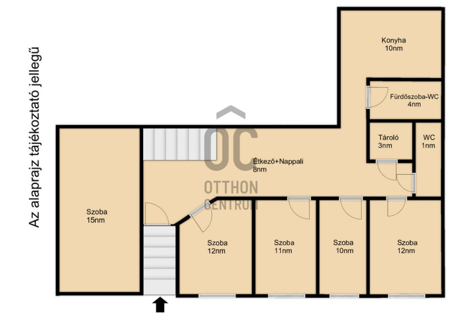
- 90m²
- 5 szoba
- félszuterén





























4-room, modern property in the VI. district, with guaranteed income! Investment opportunity for sale in the heart of Budapest, in the VI. district! We are offering for sale a 90 sqm fully renovated property located on a semi-basement level on Szív Street. ✅ 4 separate living rooms + 1 relaxation room ✅ 2 toilets + bathroom ✅ Currently operating as a hostel – tenants are eager to stay, providing immediate returns. ✅ High-quality renovation, modern design The location of the property is outstanding: in the city center of Budapest, in the central part of the VI. district, with excellent transportation and infrastructure. If I have piqued your interest, please call me at your convenience, even on weekends!
Regisztrációs szám
H507887
Az ingatlan adatai
Értékesités
eladó
Jogi státusz
használt
Jelleg
lakás
Építési mód
tégla
Méret
90 m²
Bruttó méret
90 m²
Fűtés
Gáz cirkó
Belmagasság
260 cm
Tájolás
Észak
Lépcsőház típusa
körfolyosó
Állapot
Jó
Homlokzat állapota
Jó
Lépcsőház állapota
Jó
Építés éve
1931
Fürdőszobák száma
1
Fekvés
utcai
Víz
Van
Gáz
Van
Villany
Van
Csatorna
Van
Lift
van
Helyiségek
szoba
12 m²
szoba
12 m²
szoba
11 m²
szoba
15 m²
szoba
10 m²
konyha
10 m²
fürdőszoba-wc
4 m²
wc
1 m²
tároló
3 m²
közlekedő
10 m²

Helembai Dávid
Hitelszakértő