269 000 000 Ft
692 000 €
- 279m²
- 9 szoba






















2 LAKÁS + IRODA ZUGLÓBAN. ÖSSZEKÖLTÖZŐKNEK, BEFEKTETŐKNEK.
Zugló kertvárosi részén főútvonalakhoz közel, mégis csendes mellékutcában társasházzá alakítható családi házat ajánlok. Telek: 644 m2. 2 külön bejáratú lakás, plusz az alsó szinten egy 52 nm-es iroda, vállalkozás részére alkalmas lakrész lett kialakítva. A fogyasztások lakásonként külön mérhetők.
A lakások és helyiségek ingatlanon belüli elosztásáról használati megosztás készült. .
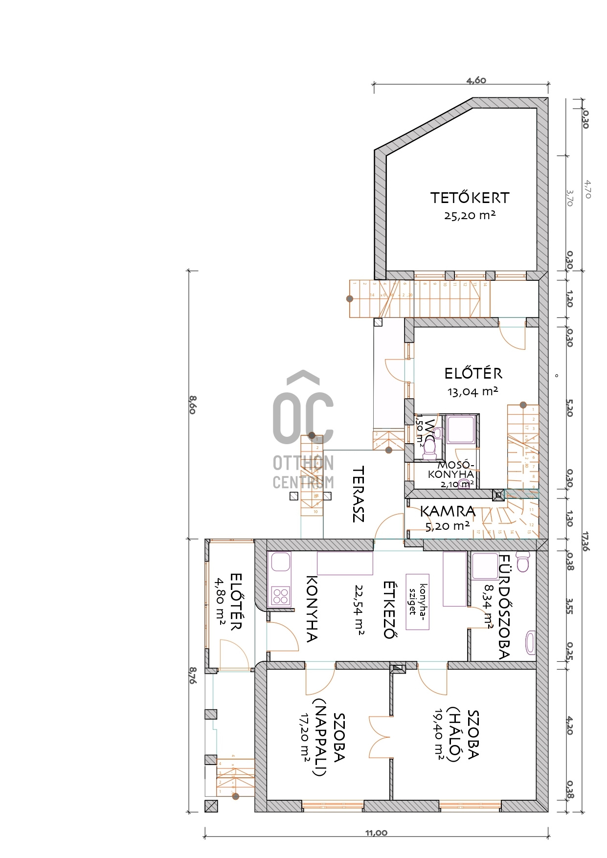
Földszint: 52 nm irodának, vállalkozásnak. Teljes műszaki és esztétikai felújítás 2016. után megtörtént.
2 szoba+ konyha+ wc
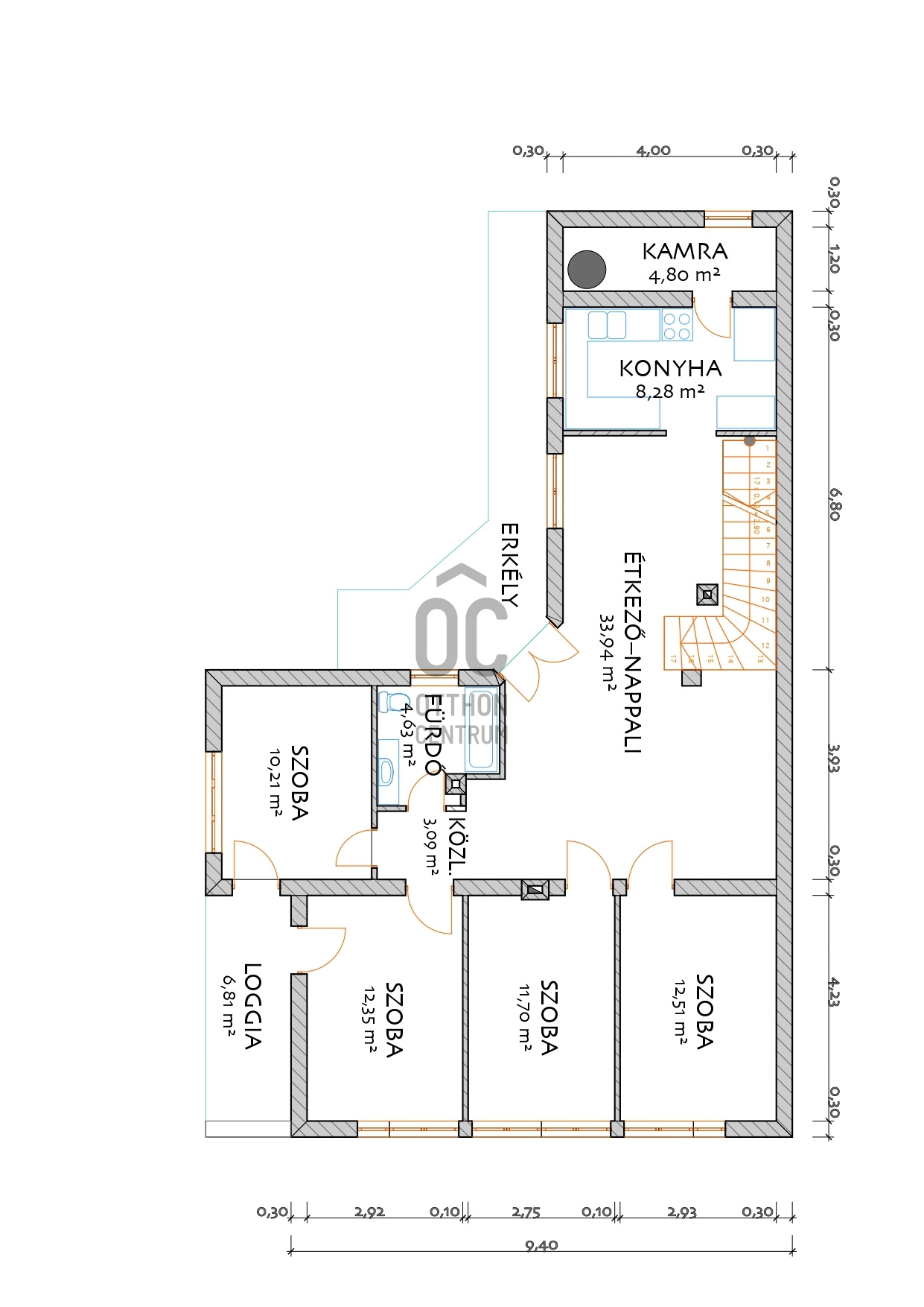
1. szint: 77 nm lakás teljes műszaki és esztétikai felújítás 2016. után.
2 szoba + étkező-konyha + fürdő, wc. + kertre néző erkély, fűtés: 2 hűtő-fűtő klíma, elektromos panel.
1-2. szint 118,5 nm lakás , jó állapot. Fűtés: gáz kazán, radiátoros, 2 hűtő-fűtő klíma.
Nappali-étkező + 4 szoba + konyha+ fürdő-wc+ mosókonyha+ wc+ kamra+ utcára néző loggia
Alagsor: 30.5 nm tároló, kazán helyiség felújított.
borospince kb. 5 nm
Garázs: 29,7 nm 2 állásos, víz bekötve, felújítás félkész állapotban.
Kerti tároló : 18 nm teljesen felújított, szigetelt, vízcsap falikúttal. (raktárnak is )
A ház és a garázs mellett a kert felöli egy nagy kb. 60 nm-es teraszon pihenhet és grillezhet nyáron. A szépen gondozott kertben több helyen kerti csap, zuhanyzó és magaságyás is található. A már növésben lévő különleges fák, bokrok kellemes árnyat adnak a nyári melegben. ( Japán fűz, ginkó biloba, eukaliptusz, füge, stb).
A ház külső szigetelése és vakolása részben elkészült, a befejezés és a szinezés az új vevőre vár.
Jelenleg a garázs és a földszinti beépített veranda felett egy 29 és 25 nm-es zöldtető kialakítás folyamatban van, ezeket egy híd köti majd össze.
Közlekedés: a 77-es troli
Vásárlás: CBA_Príma, Lidl, Spar, pékség, Bosnyák téri piac, hamarosan megnyílik ugyanitt a Zenit Corso új bevásárlóközpont.
Igény esetén a ház társasházzá alakítható.
EGYÜTT ÉS MÉGIS KÜLÖN! Több generációs családoknak, barátoknak ideális választás.
MUNKAHELY OTTHON! + BEFEKTETÉS! A földszinti rész vállalkozóknak iroda, bemutatóterem, kisebb műhely részére is tökéletes. A kerti kis ház raktárnak is használható. Jól kiadható, hosszú távra biztos bevétel.
LKe-1/1 , Beépíthető: 30%
A lakások és helyiségek ingatlanon belüli elosztásáról használati megosztás készült. .
Földszint: 52 nm irodának, vállalkozásnak. Teljes műszaki és esztétikai felújítás 2016. után megtörtént.
2 szoba+ konyha+ wc
1. szint: 77 nm lakás teljes műszaki és esztétikai felújítás 2016. után.
2 szoba + étkező-konyha + fürdő, wc. + kertre néző erkély, fűtés: 2 hűtő-fűtő klíma, elektromos panel.
1-2. szint 118,5 nm lakás , jó állapot. Fűtés: gáz kazán, radiátoros, 2 hűtő-fűtő klíma.
Nappali-étkező + 4 szoba + konyha+ fürdő-wc+ mosókonyha+ wc+ kamra+ utcára néző loggia
Alagsor: 30.5 nm tároló, kazán helyiség felújított.
borospince kb. 5 nm
Garázs: 29,7 nm 2 állásos, víz bekötve, felújítás félkész állapotban.
Kerti tároló : 18 nm teljesen felújított, szigetelt, vízcsap falikúttal. (raktárnak is )
A ház és a garázs mellett a kert felöli egy nagy kb. 60 nm-es teraszon pihenhet és grillezhet nyáron. A szépen gondozott kertben több helyen kerti csap, zuhanyzó és magaságyás is található. A már növésben lévő különleges fák, bokrok kellemes árnyat adnak a nyári melegben. ( Japán fűz, ginkó biloba, eukaliptusz, füge, stb).
A ház külső szigetelése és vakolása részben elkészült, a befejezés és a szinezés az új vevőre vár.
Jelenleg a garázs és a földszinti beépített veranda felett egy 29 és 25 nm-es zöldtető kialakítás folyamatban van, ezeket egy híd köti majd össze.
Közlekedés: a 77-es troli
Vásárlás: CBA_Príma, Lidl, Spar, pékség, Bosnyák téri piac, hamarosan megnyílik ugyanitt a Zenit Corso új bevásárlóközpont.
Igény esetén a ház társasházzá alakítható.
EGYÜTT ÉS MÉGIS KÜLÖN! Több generációs családoknak, barátoknak ideális választás.
MUNKAHELY OTTHON! + BEFEKTETÉS! A földszinti rész vállalkozóknak iroda, bemutatóterem, kisebb műhely részére is tökéletes. A kerti kis ház raktárnak is használható. Jól kiadható, hosszú távra biztos bevétel.
LKe-1/1 , Beépíthető: 30%
Regisztrációs szám
H507641
Az ingatlan adatai
Értékesités
eladó
Jogi státusz
használt
Jelleg
ház
Építési mód
tégla
Méret
279 m²
Bruttó méret
285 m²
Telek méret
644 m²
Terasz / erkély mérete
13 m²
Kert méret
450 m²
Fűtés
elektromos, infra
Belmagasság
285 cm
Lakáson belüli szintszám
3
Tájolás
Észak-kelet
Panoráma
Zöldre néző panoráma
Állapot
Jó
Homlokzat állapota
Jó
Pince
Önálló
Környék
csendes, jó közlekedés, zöld
Építés éve
1994
Fürdőszobák száma
3
Társaház kert
igen
Garázs
Benne van az árban
Garázs férőhely
2
Víz
Van
Gáz
Van
Villany
Van
Csatorna
Van
Többgenerációs
igen
Tároló
Önálló
Helyiségek
előszoba
4.8 m²
konyha-étkező
22.54 m²
szoba
19.4 m²
szoba
17.2 m²
fürdőszoba-wc
8.34 m²
kamra
5.2 m²
erkély
6 m²
tároló
2 m²
iroda
14 m²
iroda
25.2 m²
konyha
8.56 m²
wc-kézmosó
2.99 m²
előszoba
13.04 m²
wc-kézmosó
1.5 m²
mosókonyha
2.1 m²
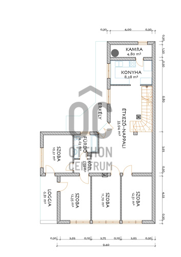
nappali-étkező
33.94 m²
konyha
8.28 m²
kamra
4.8 m²
szoba
12.51 m²
szoba
11.7 m²
szoba
12.35 m²
szoba
10.21 m²
fürdőszoba-wc
4.63 m²
közlekedő
3.09 m²
loggia
6.81 m²

Berkes-Jakus Kinga
Hitelszakértő