298 053 000 Ft
900 000 €
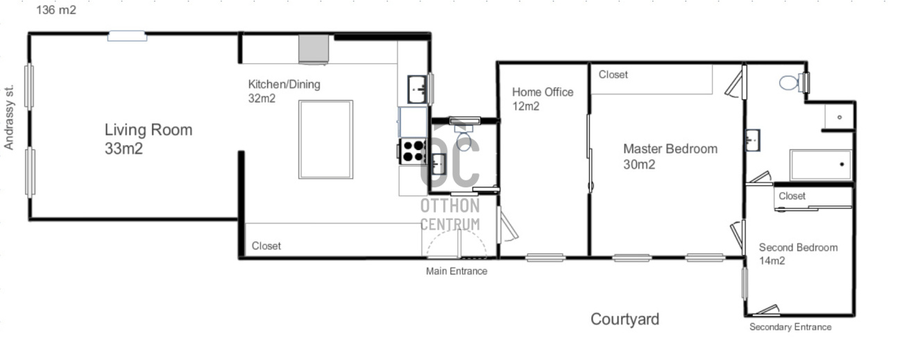
- 136m²
- 4 szoba
- 2. emelet


















Near the opera house.
Near the Opera House, on Andrássy Avenue,
in a historic building with an elevator, a 136 m², tastefully renovated apartment on the 2nd floor, overlooking the street.
The living room is 33 m² with windows facing Andrássy Avenue,
the kitchen-dining area is 32 m²,
and there are 3 rooms (currently functioning as a bedroom, an office, and a walk-in closet) with windows facing the courtyard, with no balcony, corridor in front of them.
The bathroom has both a bathtub and a built-in shower.
The apartment is air-conditioned, and the heating is gas central heating.
I recommend it as a home or an investment.
in a historic building with an elevator, a 136 m², tastefully renovated apartment on the 2nd floor, overlooking the street.
The living room is 33 m² with windows facing Andrássy Avenue,
the kitchen-dining area is 32 m²,
and there are 3 rooms (currently functioning as a bedroom, an office, and a walk-in closet) with windows facing the courtyard, with no balcony, corridor in front of them.
The bathroom has both a bathtub and a built-in shower.
The apartment is air-conditioned, and the heating is gas central heating.
I recommend it as a home or an investment.
Regisztrációs szám
H507580
Az ingatlan adatai
Értékesités
eladó
Jogi státusz
használt
Jelleg
lakás
Építési mód
tégla
Méret
136 m²
Bruttó méret
136 m²
Fűtés
Gáz cirkó
Belmagasság
400 cm
Tájolás
Észak-nyugat
Lépcsőház típusa
függőfolyosó
Állapot
Kiváló
Homlokzat állapota
Kiváló
Lépcsőház állapota
Kiváló
Építés éve
1882
Fürdőszobák száma
1
Fekvés
utcai
Víz
Van
Gáz
Van
Villany
Van
Csatorna
Van
Lift
van
Helyiségek
nappali
33 m²
konyha-étkező
32 m²
szoba
30 m²
szoba
14 m²
szoba
12 m²

Ruczek Krisztina
Hitelszakértő