Elérhető Otthon Start hitellel
Eladó ikerház,
H507543
Nagytarcsa
114 990 000 Ft
301 000 €
- 159,5m²
- 5 szoba
Csend, biztonság, saját kert – Ikerház eladó Nagytarcsán!
Képzelje el, hogy egy csendes, forgalomtól mentes utcában ébred, madárcsicsergésre, saját kertre néző teraszon kortyolja a reggeli kávét… és mindezt Budapesttől alig pár percre!
Nagytarcsán, kiváló állapotú, kétszintes, klímás ikerházfél keresi új tulajdonosát.
A 2002-ben épült ingatlan masszív, 38 cm-es Porotherm téglából épült, 5 cm-es hőszigeteléssel. A korszerű nyílászárók, gáz-cirkó (padlófűtés) és kandalló gondoskodnak a kényelmes, meleg otthonról minden évszakban.
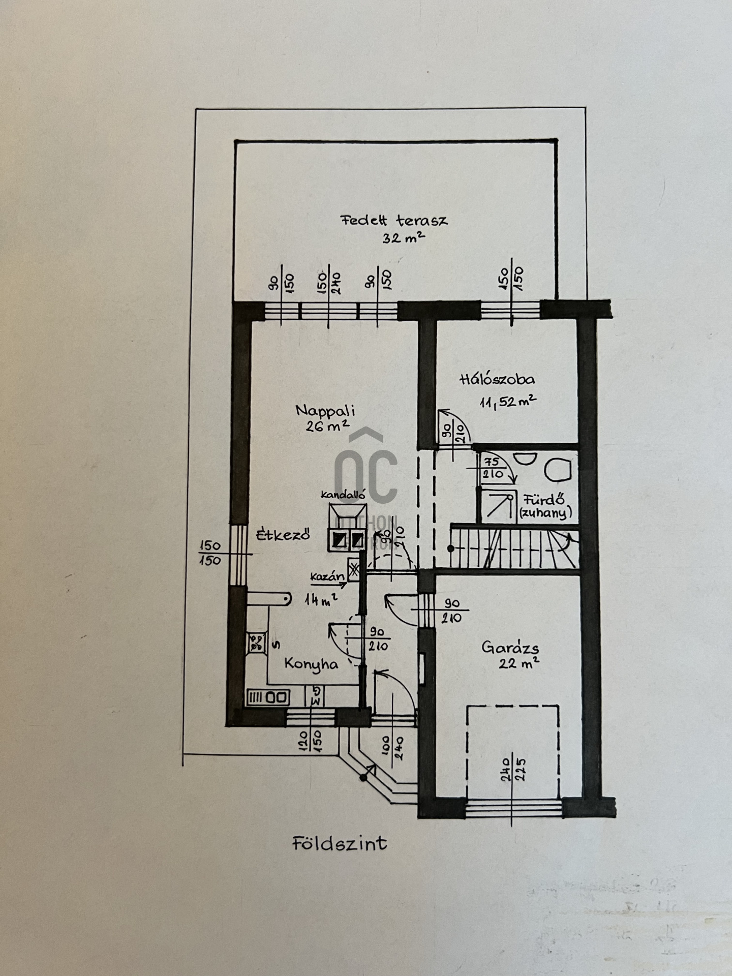
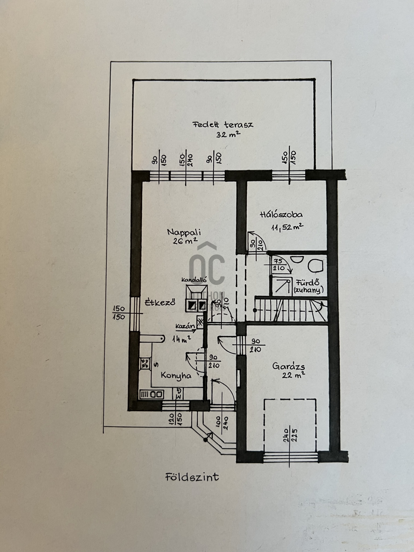
Elrendezése praktikus és családbarát:
- földszint: amerikai konyhás nappali, hálószoba, fürdőszoba, garázs
- emelet: 3 külön nyíló hálószoba, külön WC és fürdő
- 3 klíma (2 fent, 1 lent), gyönyörű kandalló
- teljesen felszerelt konyha + beépített szekrények az árban
- kerti tároló
- sütögető
A 486 nm-es, gondozott kert tökéletes helyszíne a családi programoknak és baráti összejöveteleknek. A fedett terasz még a hidegebb hónapokban is használható – a téli ponyvának köszönhetően akár 10 fokos különbséget is érezhetünk.
A környék csendes, biztonságos, szinte kizárólag új építésű házak övezik, és 4-5 évig nem várható újabb építkezés.
Közel van minden, ami számít:
Buszmegálló: 15 perc séta
Bolt, iskola, óvoda, bölcsőde: pár percre
Sportpark, teniszpálya, játszótér: szórakozáshoz, kikapcsolódáshoz
Tökéletes választás családosoknak vagy ingázóknak, akik közel szeretnének maradni Budapesthez, mégis nyugodt környezetre vágynak.
Jöjjön el, nézze meg, és tegyen ajánlatot még ma!
Nagytarcsán, kiváló állapotú, kétszintes, klímás ikerházfél keresi új tulajdonosát.
A 2002-ben épült ingatlan masszív, 38 cm-es Porotherm téglából épült, 5 cm-es hőszigeteléssel. A korszerű nyílászárók, gáz-cirkó (padlófűtés) és kandalló gondoskodnak a kényelmes, meleg otthonról minden évszakban.
Elrendezése praktikus és családbarát:
- földszint: amerikai konyhás nappali, hálószoba, fürdőszoba, garázs
- emelet: 3 külön nyíló hálószoba, külön WC és fürdő
- 3 klíma (2 fent, 1 lent), gyönyörű kandalló
- teljesen felszerelt konyha + beépített szekrények az árban
- kerti tároló
- sütögető
A 486 nm-es, gondozott kert tökéletes helyszíne a családi programoknak és baráti összejöveteleknek. A fedett terasz még a hidegebb hónapokban is használható – a téli ponyvának köszönhetően akár 10 fokos különbséget is érezhetünk.
A környék csendes, biztonságos, szinte kizárólag új építésű házak övezik, és 4-5 évig nem várható újabb építkezés.
Közel van minden, ami számít:
Buszmegálló: 15 perc séta
Bolt, iskola, óvoda, bölcsőde: pár percre
Sportpark, teniszpálya, játszótér: szórakozáshoz, kikapcsolódáshoz
Tökéletes választás családosoknak vagy ingázóknak, akik közel szeretnének maradni Budapesthez, mégis nyugodt környezetre vágynak.
Jöjjön el, nézze meg, és tegyen ajánlatot még ma!
Regisztrációs szám
H507543
Az ingatlan adatai
Értékesités
eladó
Jogi státusz
használt
Jelleg
ház
Építési mód
tégla
Méret
159,5 m²
Bruttó méret
185 m²
Telek méret
486 m²
Terasz / erkély mérete
32 m²
Kert méret
486 m²
Fűtés
Gáz cirkó
Belmagasság
270 cm
Lakáson belüli szintszám
2
Tájolás
Dél-kelet
Panoráma
Zöldre néző panoráma
Állapot
Jó
Homlokzat állapota
Jó
Környék
csendes, zöld
Építés éve
2002
Fürdőszobák száma
2
Társaház kert
igen
Garázs
Benne van az árban
Garázs férőhely
1
Fedett beállók száma
1
Víz
Van
Gáz
Van
Villany
Van
Csatorna
Van
Tároló
Önálló
Helyiségek
előszoba
4 m²
garázs
19.44 m²
konyha-étkező
12.43 m²
nappali
26 m²
szoba
11.52 m²
fürdőszoba-wc
4.38 m²
lépcsőház
3 m²
terasz
32 m²
wc-kézmosó
2.16 m²
fürdőszoba
9.75 m²
közlekedő
5.375 m²
szoba
20.475 m²
szoba
19.24 m²
szoba
15.43 m²
Pomaházi Pál
Hitelszakértő