Elérhető Otthon Start hitellel
Eladó családi ház,
H507033
Kunmadaras
5 900 000 Ft
16 000 €
- 63m²
- 2 szoba
























In the Tisza Lake region, in Kunmadaras, a family house for renovation near the center is FOR SALE!
Attention, great opportunity in Kunmadaras! One of the most exciting opportunities in the real estate market awaits you in Kunmadaras, in Jász-Nagykun-Szolnok County. We have a used house available that offers not only a comfortable home but also a fantastic investment opportunity. The property has a floor area of 63 square meters, while the plot size is 872 square meters, providing plenty of space for the realization of creative ideas, including the possibility of expansion. The house features two bright rooms that ensure a pleasant atmosphere. The condition of the property is good, making it ready for immediate move-in, which can be particularly appealing to young adults looking for an instant home. The bathroom is designed in accordance with the 1970s style. It's important to note that the toilet is present, but its connection is still pending. The 7-square-meter terrace is an ideal spot for relaxation, where you can enjoy the tranquility of the quiet neighborhood. The mixed heating, provided by a tiled stove, offers an economical solution for the winter months. The area's amenities are excellent, and the proximity to transportation hubs ensures outstanding connectivity. The city center is just a few minutes' drive away, where shops, restaurants, and other services await you. The neighborhood is safe and quiet, making it an ideal choice for families, young couples, or even those moving with pets. The well-maintained garden and garden storage provide extra comfort, as time spent outdoors becomes even more enjoyable. This unencumbered property represents not just a new home but also an opportunity to shape your living space according to your own vision. The trendy neighborhood is continuously developing, so the value of the investment is likely to increase over time. The quiet streets and friendly neighbors guarantee that you will find a home here. If you have any questions about the property or the purchasing process, please feel free to reach out! I am here to help you find your dream home or the perfect investment. Don't hesitate, as opportunities can quickly disappear!
Regisztrációs szám
H507033
Az ingatlan adatai
Értékesités
eladó
Jogi státusz
használt
Jelleg
ház
Építési mód
tégla
Méret
63 m²
Bruttó méret
72 m²
Telek méret
872 m²
Terasz / erkély mérete
7 m²
Fűtés
cserépkályha (vegyes)
Belmagasság
280 cm
Tájolás
Dél
Panoráma
városi panoráma, Zöldre néző panoráma
Állapot
Jó
Homlokzat állapota
Jó
Környék
csendes, jó közlekedés, zöld, központi
Építés éve
1976
Fürdőszobák száma
1
Víz
Van
Villany
Van
Tároló
Önálló
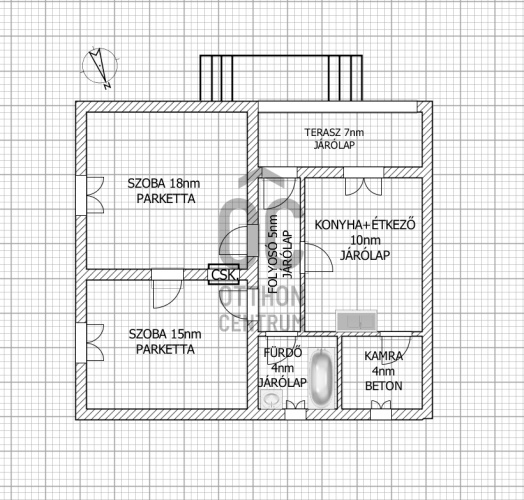
Helyiségek
terasz
7 m²
közlekedő
5 m²
konyha-étkező
10 m²
kamra
4 m²
fürdőszoba
4 m²
szoba
18 m²
szoba
15 m²

Pomaházi Pál
Hitelszakértő