Elérhető Otthon Start hitellel
Eladó családi ház,
H507018
Füle
147 018 750 Ft
375 000 €
- 110m²
- 4 szoba























The meeting of heritage and modern lifestyle – close to Lake Balaton
Magical Thatched House 10 km from Lake Balaton – Unique Countryside Harmony
In the charming and peaceful village of Füle, just 10 kilometers from Lake Balaton, a truly unique thatched-roof home is for sale. Fully renewed in 2025 under the vision of a Hungarian–French architect-designer, it combines traditional building techniques and natural materials with contemporary elegance.
The structure blends adobe and brick elements, preserving the natural charm of rural houses while ensuring modern durability. Thanks to the adobe technique, the interior maintains an ideal climate year-round – cooling naturally in the summer and retaining warmth in the winter.
Set on a 386 m² intimate plot, the property radiates a close-to-nature atmosphere. It features a private parking space and a rainwater-collecting garden well – thoughtful details that serve both comfort and sustainability. Here, you can enjoy the rhythm of nature in a tranquil setting, while the vibrant life of Lake Balaton is just a short drive away.
Key Features:
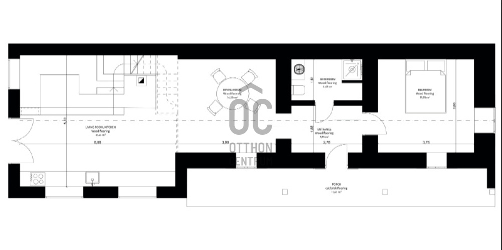
Net living space: 110 m² (ground floor: 70 m², attic: 40 m²)
2 bedrooms and 2 bathrooms
Modern electric heating – year-round comfort
Distinctive architectural details: exposed roof structure, built-in lounge bench, uniquely shaped kitchen island, custom shelving
Traditional thatched roof and façade with a contemporary twist
Private garden parking and well
This is more than a house – it is a rare opportunity to experience countryside tranquility, modern comfort, and the advantages of Lake Balaton’s closeness, all in one harmonious home.
In the charming and peaceful village of Füle, just 10 kilometers from Lake Balaton, a truly unique thatched-roof home is for sale. Fully renewed in 2025 under the vision of a Hungarian–French architect-designer, it combines traditional building techniques and natural materials with contemporary elegance.
The structure blends adobe and brick elements, preserving the natural charm of rural houses while ensuring modern durability. Thanks to the adobe technique, the interior maintains an ideal climate year-round – cooling naturally in the summer and retaining warmth in the winter.
Set on a 386 m² intimate plot, the property radiates a close-to-nature atmosphere. It features a private parking space and a rainwater-collecting garden well – thoughtful details that serve both comfort and sustainability. Here, you can enjoy the rhythm of nature in a tranquil setting, while the vibrant life of Lake Balaton is just a short drive away.
Key Features:
Net living space: 110 m² (ground floor: 70 m², attic: 40 m²)
2 bedrooms and 2 bathrooms
Modern electric heating – year-round comfort
Distinctive architectural details: exposed roof structure, built-in lounge bench, uniquely shaped kitchen island, custom shelving
Traditional thatched roof and façade with a contemporary twist
Private garden parking and well
This is more than a house – it is a rare opportunity to experience countryside tranquility, modern comfort, and the advantages of Lake Balaton’s closeness, all in one harmonious home.
Regisztrációs szám
H507018
Az ingatlan adatai
Értékesités
eladó
Jogi státusz
használt
Jelleg
ház
Építési mód
vályog
Méret
110 m²
Bruttó méret
121 m²
Telek méret
386 m²
Terasz / erkély mérete
11 m²
Belmagasság
275 cm
Lakáson belüli szintszám
2
Tájolás
Dél-nyugat
Panoráma
Zöldre néző panoráma
Állapot
Kiváló
Homlokzat állapota
Kiváló
Környék
csendes, jó közlekedés, zöld
Építés éve
2025
Fürdőszobák száma
2
Társaház kert
igen
Víz
Van
Villany
Van
Csatorna
Van
Helyiségek
nappali-konyha
31.25 m²
ebédlő
14.5 m²
hálószoba
13.78 m²
hálószoba
17.57 m²
dolgozószoba
11.18 m²
fürdőszoba-wc
4.47 m²
fürdőszoba-wc
2.93 m²
közlekedő
5.31 m²