Elérhető Otthon Start hitellel
Eladó panel lakás,
H506877
Budapest III. kerület, Óbuda, Kerék utca
82 500 000 Ft
212 000 €
- 68m²
- 3 szoba
- 9. emelet












Jó állapotú 3 szobás panel, Óbuda központi részén!
Eladásra kínálunk egy jó állapotú, felújított, 3 szobás panel lakást, Óbuda központi részén.
A fürdő és a wc tavaly lett felújítva, az elektromos hálózat, a nyílászárók, a parketta és a konyha pedig korábban.
Az ingatlan a 3%-os hitel feltételeinek megfelel!
A lakás főbb előnyei és tulajdonságai:
- 3 külön nyíló, egész szoba
- Keleti fekvés
- Klíma van (nappali)
- 9. emelet, liftes, nem zárószinti
- Biztonsági bejárati ajtó
- Gardrób / tároló, ahova a mosgép elhelyezhető
- Kamra / spájz
- Akár 30 napon belül költözhető (kifizetéstől függően)
- Vízórás
- Költségek: közös 17 ezer, távhő szintén 17 ezer
Ha kérdeése van, vagy időpontot egyeztetne megtekintésre, hívjon bizalommal!
A fürdő és a wc tavaly lett felújítva, az elektromos hálózat, a nyílászárók, a parketta és a konyha pedig korábban.
Az ingatlan a 3%-os hitel feltételeinek megfelel!
A lakás főbb előnyei és tulajdonságai:
- 3 külön nyíló, egész szoba
- Keleti fekvés
- Klíma van (nappali)
- 9. emelet, liftes, nem zárószinti
- Biztonsági bejárati ajtó
- Gardrób / tároló, ahova a mosgép elhelyezhető
- Kamra / spájz
- Akár 30 napon belül költözhető (kifizetéstől függően)
- Vízórás
- Költségek: közös 17 ezer, távhő szintén 17 ezer
Ha kérdeése van, vagy időpontot egyeztetne megtekintésre, hívjon bizalommal!
Regisztrációs szám
H506877
Az ingatlan adatai
Értékesités
eladó
Jogi státusz
használt
Jelleg
lakás
Építési mód
panel
Méret
68 m²
Bruttó méret
68 m²
Fűtés
távfűtés
Belmagasság
260 cm
Lakáson belüli szintszám
1
Tájolás
Kelet
Lépcsőház típusa
zárt lépcsőház
Állapot
Jó
Homlokzat állapota
Átlagos
Lépcsőház állapota
Átlagos
Építés éve
1974
Fürdőszobák száma
1
Fekvés
utcai
Víz
Van
Gáz
Van
Villany
Van
Csatorna
Van
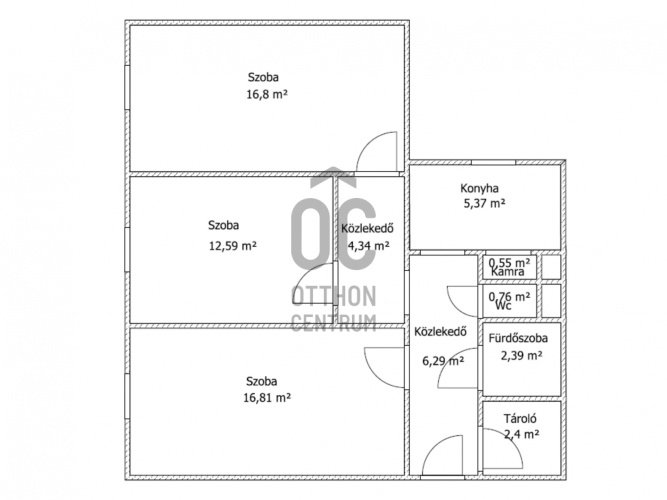
Helyiségek
szoba
16.8 m²
szoba
16.8 m²
szoba
12.6 m²
előszoba
6.3 m²
fürdőszoba
2.4 m²
wc
0.8 m²
tároló
2.4 m²
konyha
5.4 m²
közlekedő
4.4 m²
kamra
0.55 m²

Ruczek János
Hitelszakértő