109 900 000 Ft
283 000 €
- 39m²
- 2 szoba
- 1. emelet




















Teljes körűen felújított, igényes lakás eladó Budapest Belváros szívében, közel a Duna parthoz.
Új tulajdonosát keresi a Belváros egyik legszebb műemléki társasházában egy igényesen kialakított, kétszobás, 1. emeleti, teljes körűen felújított lakás. Amennyiben Önnek fontos a belvárosi elhelyezkedés, a maximális kényelem és a minőségi kivitelezés – ezt a lakást feltétlenül látnia kell! Ideális választás saját otthonként, vagy értékálló befektetésként is.
MIÉRT KÜLÖNLEGES EZ AZ INGATLAN:
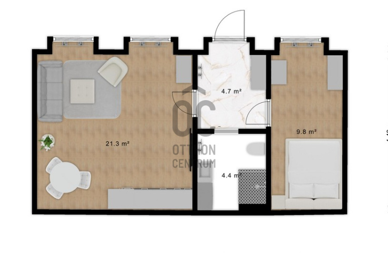
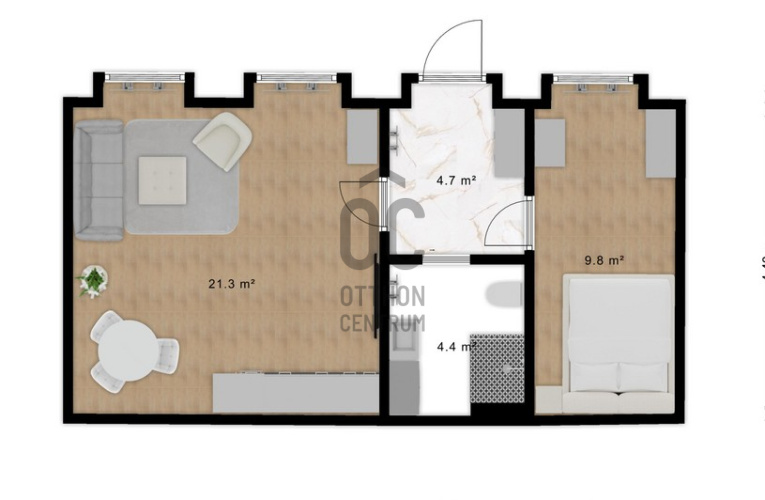
✅ 39 m²-es, nappali + hálószobás, igényesen felújított, polgári lakás.
✅ 3,4 m-es belmagasság, stílusos és átgondolt tágas térkialakítás jellemzi.
✅ Elosztása: előszoba (4,4 m²), hálószoba (10 m²), zuhanyzós fürdőszoba (4,7 m²), amerikai konyhás nappali (21,3 m²).
✅ Teljes körű műszaki és esztétikai felújítása az elektromos hálózatot, nyílászárók, burkolatokat és a fűtésrendszert is érintette.
✅ A kivitelezés jól átgondolt tervezést követően, minőségi és stílusos anyagok és burkolatok felhasználásával történt.
✅ A lakás elektromos hálózata új kábelezéssel, kapcsolókkal, dugaljakkal, biztosítékokkal, fí-relével és design LED világítással került kialakításra.
✅ A nyílászárók a lakás stílusához tervezett, 3 rétegű thermoplan üvegezésű, borovi fenyőből készült ablakok és ajtók.
✅ Fűtését és melegvíz ellátását, a új BOSCH kondenzációs kazán biztosítja.
✅ A modern konyha minőségi Bosch konyhai gépekkel felszerelt (hűtőszekrény, fagyasztó, sütő, kerámia főzőlap, páraelszívó, mosogatógép, Whirlpool mikró)
✅ Fenntartási költsége kedvező, a közös költség mindössze 12.750 Ft/hó
✅ A lakáshoz saját tároló tartozik a pincében.
TÁRSASHÁZ JELLEMZŐI:
➡️ 1881-ben épült, műemléki védettségű kétszintes tégla épület.
➡️ Rendezett, jó állapotú társasház – nemrég megújult az elektromos hálózat és részben felújították a tetőt is.
➡️ A belső udvarban hangulatos, pálmafás kert nyújt nyugalmat a belváros pezsgésében.
➡️ A társasház anyagi helyzete stabil, gondos a közös képviselet és lakóközösség.
KÖRNYÉK ÉS INFRASTRUKTÚRA:
✅ Budapest szívében, kiemelten frekventált, nagyon kedvelt és hangulatos környezet.
✅ Minden karnyújtásnyira van: kávézók, éttermek, cukrászdák, galériák, butikok, kulturális programok.
✅ Itt nem kell autóba ülni, ha egy finom vacsorára, színházra vagy egy esti sétára vágyunk.
✅ Kiváló a közlekedés, minden tömegközlekedési eszköz néhány perces sétával elérhető.
✅ Közelben iskolák, óvoda, vásárcsarnok, éttermek, kávézók és szolgáltatók sokszínű választéka.
✅ A rakpart pár perc séta, ahol reggel kocogni, este naplementét nézni vagy csak a vízparti levegőt élvezni igazi feltöltődés.
AZ INGATLAN MEGTEKINTHETŐ:
➡️ Előzetes egyeztetés után személyesen
➡️ Igény esetén online konzultációval.
FINANSZÍROZÁSI KÉRDÉSEKBEN DÍJMENTESEN SEGÍTÜNK:
✅ Bank-független hitelcenterünk díjmentesen versenyezteti minden bank és hitelintézet ajánlatát.
✅ Önnek nincs más dolga, mint beszélgetni munkatársunkkal, majd a megversenyeztetett ajánlatokból kiválasztani a hosszútávon is a legmegfelelőbb konstrukciót.
✅ Szakértőink 20 éves szakmai tapasztalattal és egyedi igényekre szabott, fogyasztóbarát lakáshitelekkel, babaváró hitellel, teljes körű CSOK PLUSZ és OTTHON START ügyintézéssel várják Önt.
✅ Előre egyeztetve akár a normál munkaidő után is.
További információkért és megtekintéssel kapcsolatban keressen bizalommal !
MIÉRT KÜLÖNLEGES EZ AZ INGATLAN:
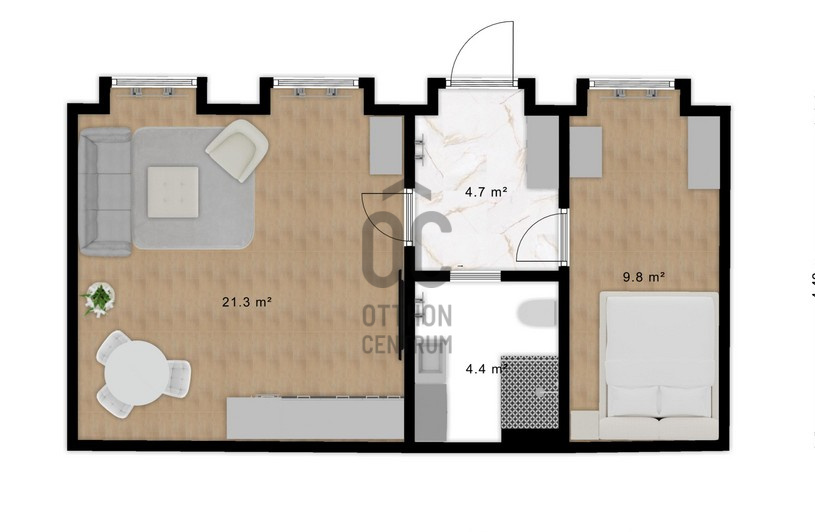
✅ 39 m²-es, nappali + hálószobás, igényesen felújított, polgári lakás.
✅ 3,4 m-es belmagasság, stílusos és átgondolt tágas térkialakítás jellemzi.
✅ Elosztása: előszoba (4,4 m²), hálószoba (10 m²), zuhanyzós fürdőszoba (4,7 m²), amerikai konyhás nappali (21,3 m²).
✅ Teljes körű műszaki és esztétikai felújítása az elektromos hálózatot, nyílászárók, burkolatokat és a fűtésrendszert is érintette.
✅ A kivitelezés jól átgondolt tervezést követően, minőségi és stílusos anyagok és burkolatok felhasználásával történt.
✅ A lakás elektromos hálózata új kábelezéssel, kapcsolókkal, dugaljakkal, biztosítékokkal, fí-relével és design LED világítással került kialakításra.
✅ A nyílászárók a lakás stílusához tervezett, 3 rétegű thermoplan üvegezésű, borovi fenyőből készült ablakok és ajtók.
✅ Fűtését és melegvíz ellátását, a új BOSCH kondenzációs kazán biztosítja.
✅ A modern konyha minőségi Bosch konyhai gépekkel felszerelt (hűtőszekrény, fagyasztó, sütő, kerámia főzőlap, páraelszívó, mosogatógép, Whirlpool mikró)
✅ Fenntartási költsége kedvező, a közös költség mindössze 12.750 Ft/hó
✅ A lakáshoz saját tároló tartozik a pincében.
TÁRSASHÁZ JELLEMZŐI:
➡️ 1881-ben épült, műemléki védettségű kétszintes tégla épület.
➡️ Rendezett, jó állapotú társasház – nemrég megújult az elektromos hálózat és részben felújították a tetőt is.
➡️ A belső udvarban hangulatos, pálmafás kert nyújt nyugalmat a belváros pezsgésében.
➡️ A társasház anyagi helyzete stabil, gondos a közös képviselet és lakóközösség.
KÖRNYÉK ÉS INFRASTRUKTÚRA:
✅ Budapest szívében, kiemelten frekventált, nagyon kedvelt és hangulatos környezet.
✅ Minden karnyújtásnyira van: kávézók, éttermek, cukrászdák, galériák, butikok, kulturális programok.
✅ Itt nem kell autóba ülni, ha egy finom vacsorára, színházra vagy egy esti sétára vágyunk.
✅ Kiváló a közlekedés, minden tömegközlekedési eszköz néhány perces sétával elérhető.
✅ Közelben iskolák, óvoda, vásárcsarnok, éttermek, kávézók és szolgáltatók sokszínű választéka.
✅ A rakpart pár perc séta, ahol reggel kocogni, este naplementét nézni vagy csak a vízparti levegőt élvezni igazi feltöltődés.
AZ INGATLAN MEGTEKINTHETŐ:
➡️ Előzetes egyeztetés után személyesen
➡️ Igény esetén online konzultációval.
FINANSZÍROZÁSI KÉRDÉSEKBEN DÍJMENTESEN SEGÍTÜNK:
✅ Bank-független hitelcenterünk díjmentesen versenyezteti minden bank és hitelintézet ajánlatát.
✅ Önnek nincs más dolga, mint beszélgetni munkatársunkkal, majd a megversenyeztetett ajánlatokból kiválasztani a hosszútávon is a legmegfelelőbb konstrukciót.
✅ Szakértőink 20 éves szakmai tapasztalattal és egyedi igényekre szabott, fogyasztóbarát lakáshitelekkel, babaváró hitellel, teljes körű CSOK PLUSZ és OTTHON START ügyintézéssel várják Önt.
✅ Előre egyeztetve akár a normál munkaidő után is.
További információkért és megtekintéssel kapcsolatban keressen bizalommal !
Regisztrációs szám
H505544
Az ingatlan adatai
Értékesités
eladó
Jogi státusz
használt
Jelleg
lakás
Építési mód
tégla
Méret
39 m²
Bruttó méret
39 m²
Fűtés
Gáz cirkó
Belmagasság
340 cm
Tájolás
Dél
Lépcsőház típusa
függőfolyosó
Állapot
Kiváló
Homlokzat állapota
Jó
Lépcsőház állapota
Jó
Pince
Önálló
Környék
csendes, jó közlekedés, központi
Építés éve
1881
Fürdőszobák száma
1
Fekvés
udvari
Közös költség
12750
Víz
Van
Gáz
Van
Villany
Van
Csatorna
Van
Vízpart távolsága
200 méterre
Helyiségek
előszoba
4.4 m²
nappali-konyha
21.3 m²
hálószoba
10 m²
fürdőszoba-wc
4.7 m²

Medovarszki Andrea
Hitelszakértő