Elérhető Otthon Start hitellel
Eladó családi ház,
H504732
Tiszanána, Dinnyéshát
55 000 000 Ft
142 000 €
- 96m²
- 4 szoba




























On the shores of Lake Tisza, in the Tiszanána-Dinnyéshát holiday area, a property with two vacation homes on a double lot, featuring a swimming pool, is for sale.
Tiszanána-Dinnyéshát is located on the Heves County side of Lake Tisza, between Sarud and Kisköre. The holiday area has everything related to water. One of the most beautiful and calm beaches and marinas can be found here. The passenger boats operated by MAHART also stop at this marina, which runs from Tiszalök to Kisköre during the season.
The property is situated in a quiet street, close to the beach and marina. The property for sale consists of two vacation buildings located on two separate plots of land.
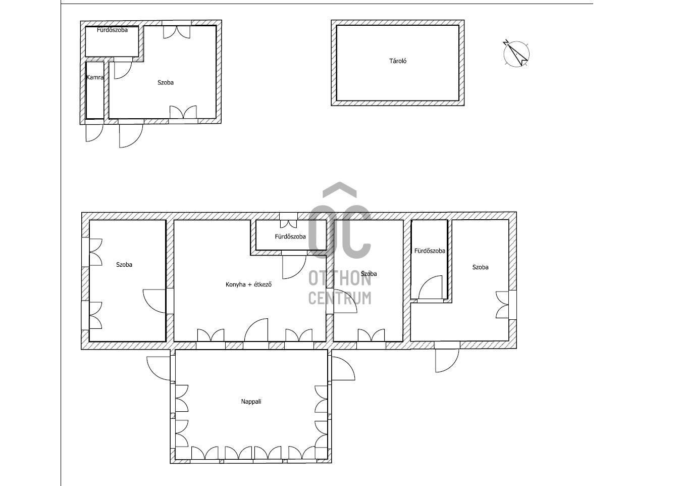
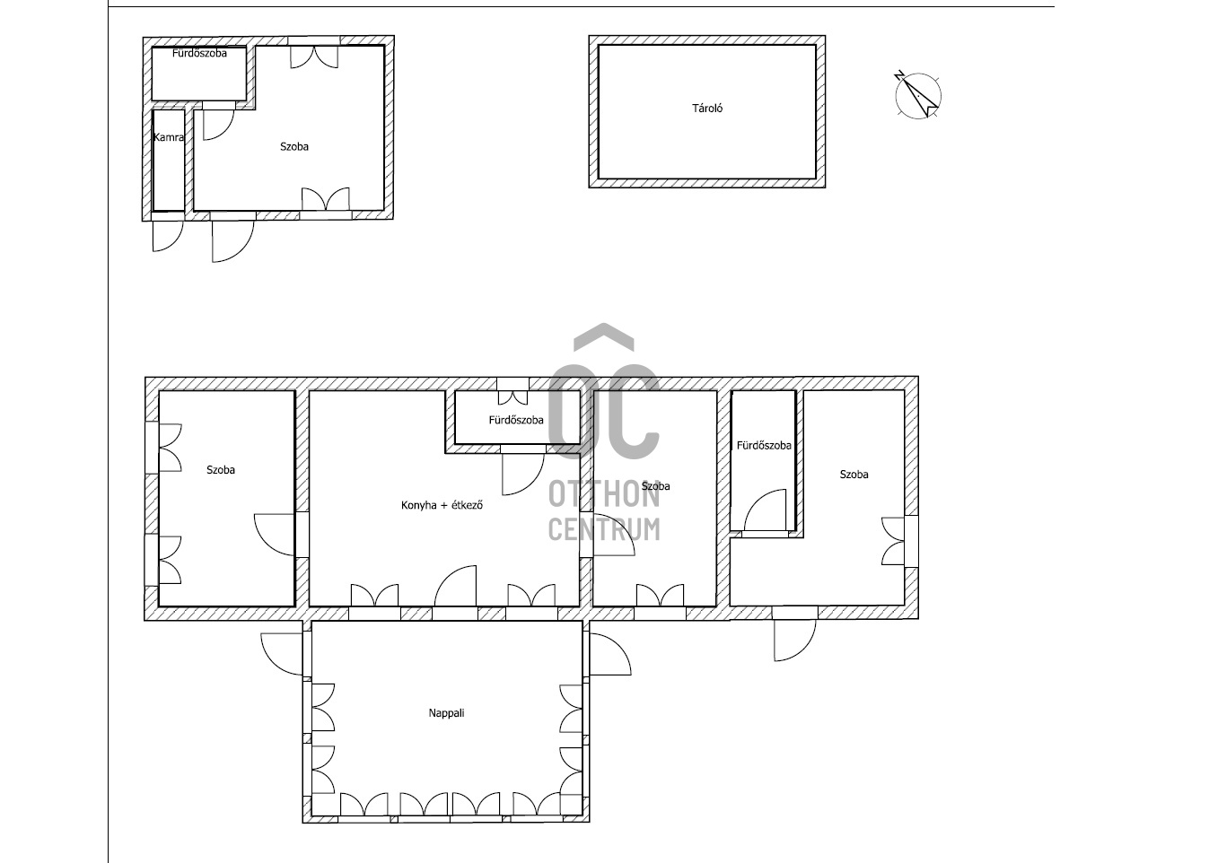
One is a vacation home built from Ytong blocks, featuring three rooms, two bathrooms, a large bright living room, and a spacious kitchen-dining area.
Cooling and heating are managed by air conditioning.
The other building is made of wood and includes one room, a bathroom, and a pantry.
There is also a storage shed in the yard. The large double yard is a true curiosity, featuring a heat pump swimming pool, a hot tub, and a guest-welcoming garden oven with a grill. Cars can be parked in an open parking area.
The total area of the properties is 96 square meters, and the plot measures a total of 1652 square meters.
The property can comfortably accommodate two families for relaxation, but it can also serve as an excellent investment as an apartment.
We offer complimentary legal services and free independent bank loan brokerage for our clients! I look forward to your inquiry!
The property is situated in a quiet street, close to the beach and marina. The property for sale consists of two vacation buildings located on two separate plots of land.
One is a vacation home built from Ytong blocks, featuring three rooms, two bathrooms, a large bright living room, and a spacious kitchen-dining area.
Cooling and heating are managed by air conditioning.
The other building is made of wood and includes one room, a bathroom, and a pantry.
There is also a storage shed in the yard. The large double yard is a true curiosity, featuring a heat pump swimming pool, a hot tub, and a guest-welcoming garden oven with a grill. Cars can be parked in an open parking area.
The total area of the properties is 96 square meters, and the plot measures a total of 1652 square meters.
The property can comfortably accommodate two families for relaxation, but it can also serve as an excellent investment as an apartment.
We offer complimentary legal services and free independent bank loan brokerage for our clients! I look forward to your inquiry!
Regisztrációs szám
H504732
Az ingatlan adatai
Értékesités
eladó
Jogi státusz
használt
Jelleg
ház
Építési mód
ytong
Méret
96 m²
Bruttó méret
105 m²
Telek méret
1 652 m²
Terasz / erkély mérete
25 m²
Fűtés
elektromos fan-coil
Belmagasság
240 cm
Tájolás
Dél-nyugat
Állapot
Átlagos
Homlokzat állapota
Átlagos
Környék
csendes, zöld
Építés éve
2000
Fürdőszobák száma
2
Fedett beállók száma
1
Víz
Van
Villany
Van
Tároló
Önálló
Vízpart távolsága
500 méterre
Helyiségek
szoba
14.4 m²
szoba
13.44 m²
szoba
12.6 m²
nappali
25 m²
konyha-étkező
24.9 m²
fürdőszoba-wc
3.2 m²
fürdőszoba-wc
2.52 m²

Pomaházi Pál
Hitelszakértő