65 500 000 Ft
169 000 €
- 61,7m²
- 2 szoba
Zöld nyugalom Szentendre egyik legcsendesebb utcájában
Szentendre szívéhez közel, mégis teljes csendben, egy igazán barátságos otthon keresi új gazdáját!
Ez a szigetelt, könnyűszerkezetes ház ideális választás lehet mindazoknak, akik szeretik a természet közelségét, a nyugalmat, és nem vágynak túl nagy házra – de fontos számukra a praktikus elosztás és a hangulat.
A lakótérben:
- nappali,
- 2 félszoba,
- világos konyha,
- zuhanyzós és kádas fürdőszoba,
- kamra is található, ami a háztartás szíve-lelke lehet.
A kellemes hőérzetről klíma és egy meghitt cserépkályha gondoskodik, így minden évszakban otthonos a hangulat.
A ház egy nagy, parkosítható telken fekszik, amely ideális akár bővítéshez, kertészkedéshez vagy családi programokhoz.
Az árnyas, kertre néző terasz pedig tökéletes helyszín egy reggeli kávéhoz vagy egy nyugodt esti beszélgetéshez.
A ház üdülőövezetben van, zsákutcában található, így forgalomtól mentes, igazán zavartalan környezetet biztosít.
Ha egy kompakt, de élhető, hangulatos kis házra vágysz Szentendre zöldövezetében, ez lehet az új otthonod!
És ha már itt vagy… kapd fel a túracipőt vagy pattanj bringára, mert Szentendre környéke maga a kaland!
Visegrád panorámái, Pilisszentlászló csöndes ösvényei, a Kisoroszi-szigetcsúcs varázsa – mind karnyújtásnyira. Egy spontán csónakázás a Dunán? Vagy inkább egy nyári SUP-ozás naplementében? Itt tényleg minden adott, hogy ne csak otthonra, hanem élményekre is találj.
Keress elérhetőségeimen és szívesen megmutatom személyesen is!
#szentendre #eladóház #könnyűszerkezetes #kertreterasz #kamrás #nagytelek #zöldövezet #otthonkeresés #ingatlanviki #ocambyviktoriaeberl
Ez a szigetelt, könnyűszerkezetes ház ideális választás lehet mindazoknak, akik szeretik a természet közelségét, a nyugalmat, és nem vágynak túl nagy házra – de fontos számukra a praktikus elosztás és a hangulat.
A lakótérben:
- nappali,
- 2 félszoba,
- világos konyha,
- zuhanyzós és kádas fürdőszoba,
- kamra is található, ami a háztartás szíve-lelke lehet.
A kellemes hőérzetről klíma és egy meghitt cserépkályha gondoskodik, így minden évszakban otthonos a hangulat.
A ház egy nagy, parkosítható telken fekszik, amely ideális akár bővítéshez, kertészkedéshez vagy családi programokhoz.
Az árnyas, kertre néző terasz pedig tökéletes helyszín egy reggeli kávéhoz vagy egy nyugodt esti beszélgetéshez.
A ház üdülőövezetben van, zsákutcában található, így forgalomtól mentes, igazán zavartalan környezetet biztosít.
Ha egy kompakt, de élhető, hangulatos kis házra vágysz Szentendre zöldövezetében, ez lehet az új otthonod!
És ha már itt vagy… kapd fel a túracipőt vagy pattanj bringára, mert Szentendre környéke maga a kaland!
Visegrád panorámái, Pilisszentlászló csöndes ösvényei, a Kisoroszi-szigetcsúcs varázsa – mind karnyújtásnyira. Egy spontán csónakázás a Dunán? Vagy inkább egy nyári SUP-ozás naplementében? Itt tényleg minden adott, hogy ne csak otthonra, hanem élményekre is találj.
Keress elérhetőségeimen és szívesen megmutatom személyesen is!
#szentendre #eladóház #könnyűszerkezetes #kertreterasz #kamrás #nagytelek #zöldövezet #otthonkeresés #ingatlanviki #ocambyviktoriaeberl
Regisztrációs szám
H504635
Az ingatlan adatai
Értékesités
eladó
Jogi státusz
használt
Jelleg
nyaraló
Típus
ház
Építési mód
könnyűszerkezetes
Méret
61,7 m²
Bruttó méret
73,8 m²
Telek méret
1 045 m²
Terasz / erkély mérete
12,5 m²
Fűtés
kályha (faszén)
Belmagasság
240 cm
Tájolás
Kelet
Panoráma
Zöldre néző panoráma, Egyéb
Állapot
Átlagos
Homlokzat állapota
Átlagos
Környék
csendes, zöld
Építés éve
2013
Fürdőszobák száma
1
Víz
Van
Gáz
Van
Villany
Van
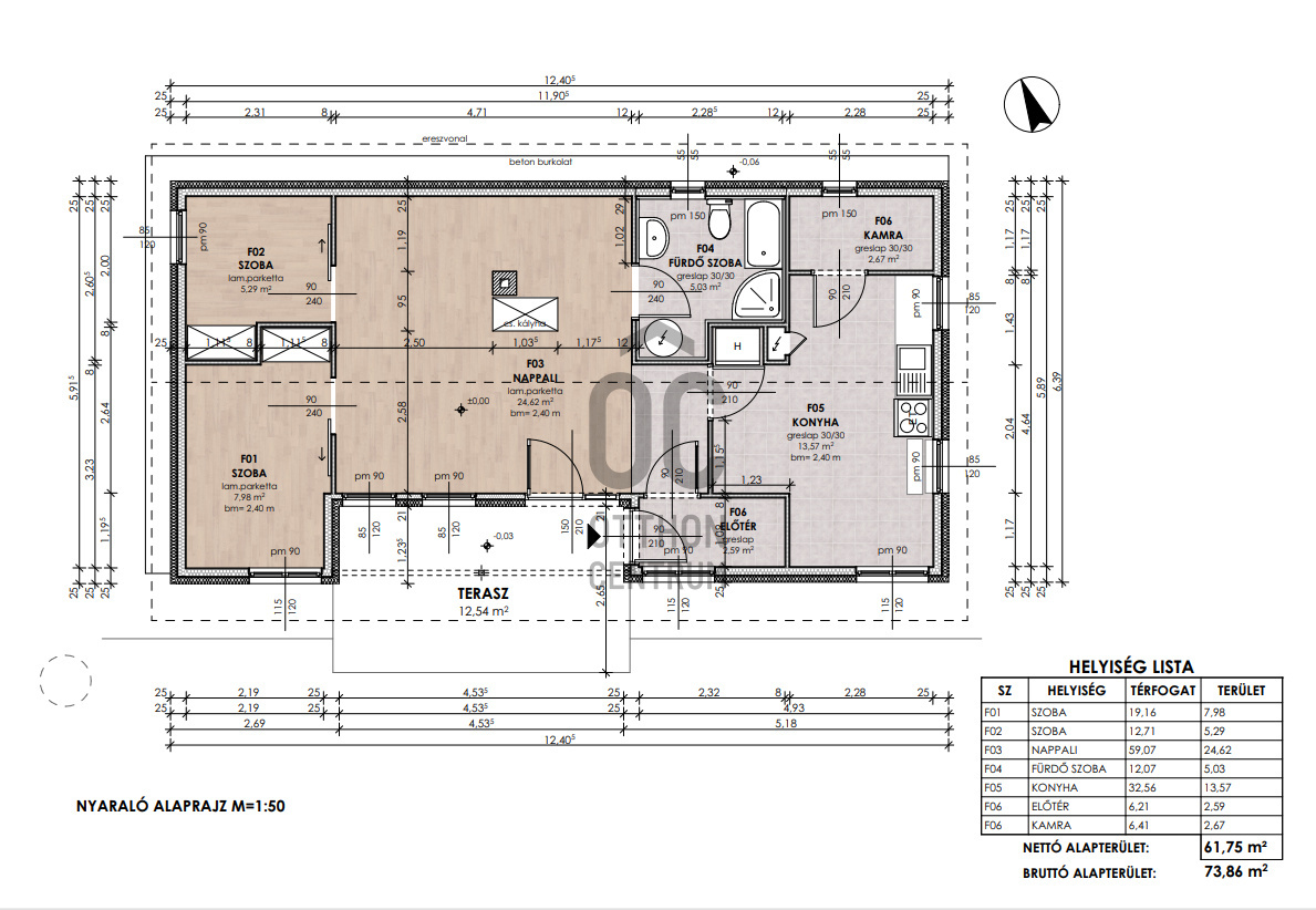
Helyiségek
félszoba
5.29 m²
szoba
7.98 m²
nappali
24.62 m²
fürdőszoba-wc
5.03 m²
kamra
2.67 m²
konyha
13.57 m²
előszoba
2.59 m²
terasz
12.54 m²
Korcsog Melinda
Hitelszakértő