290 000 000 Ft
745 000 €
- 240m²
- 5 szoba
Fedezze fel álmai otthonát Rómaifürdőn – 5 szobás, bruttó 300 m2-es, igényes ház várja Önt!
Új tulajdonosát keresi egy nagyszerű adottságokkal rendelkező, luxus igényeket is kielégítő, kétszintes, buttó 300 m2-es családi ház a III. kerületben!
Ha nagyon kedvelt és keresett környéken szeretné megtalálni új, modern otthonát, ezt a házat feltétlenül nézze meg!
AMIT A HÁZRÓL TUDNI KELL:
- A két szintes lakóház 2022-ben épült egy parkosított, 823 m2-es telken.
- Falazata Porotherm 30 X-therm tégla, 15 cm-es szigeteléssel.
- Hasznos alapterülete 240 m2, a hozzá tartozó teraszok, erkélyek mérete 120 m2, bruttó mérete 300 m2.
- Az épület luxus igényeket is kielégít, tulajdonosai extra minőségű anyagokat használtak az építésénél és a berendezéseknél is.
- A szimmetrikus elrendezésű épület megjelenésese a modern stílus és a klasszikus elegancia tökéletes ötvözete.
- Modern vonalvezetése, letisztult fehér homlokzata és a markáns, sötét színű nyílászárói prémium megjelenést kölcsönöznek.
- Az épület a tájolásából adódóan, körbenapozott, szobái tágasak és világosak.
- A műanyag ablakok elektromos, alumínium redőnnyel felszereltek.
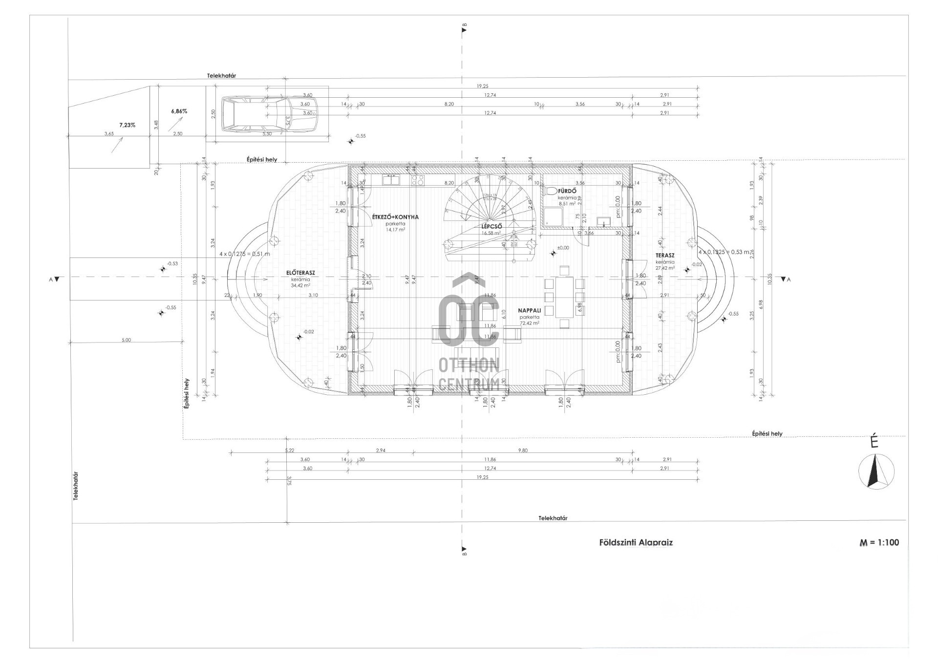
- A 120 m2-es földszint felosztása: hatalmas amerikai konyhás nappali és étkező, fürdőszoba wc-vel.
- A hatalmas nappalit és az emeletre vezető impozáns lépcsőt Carrarai márvánnyal burkolták, ami egyedi stílust kölcsönöz a belső térnek.
- Földszinti lakótér 120 m2 + összesen 61,84 m2 terasz.
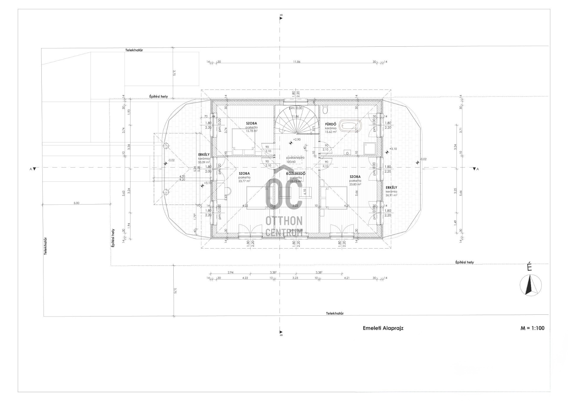
- Az emelet felosztása: közös nappali, 3 erkélyes szoba, közlekedő, fürdőszoba wc-vel.
- Emelet 120 m2 + összesen 60 m2 terasz.
- A fűtést és a meleg vizet kondenzációs kazán biztosítja padlófűtéses hől-eadással, így nincsenek látható fűtőtestek a házban.
- A hűtésről minden szobában klíma gondoskodik.
- Az ingatlan logikus elosztása és térkihasználása miatt kényelmes életteret biztosít.
- A kert szépen gondozott, automata öntözővel, hátsó intim kertjében grillező lett kialakítva.
- A térkövezett előkertbe gépkocsival széles kapun keresztül lehet beállni, ahol 6 autó számára van parkolási lehetőség.
- A beépített bútorok - gépesített konyha a vételár részét képezik, a többi prémium kategóriájú bútor megegyezés tárgyát képviselik.
KÖRNYÉK és KÖZLEKEDÉS:
- Budapest III. kerülete, Rómaifürdő közkedvelt családi házas övezete.
- A környék kimondottan családias jellegű, biztonságos, rendezett, csendes, tele zöldterületekkel, kutyabarát parkokkal, játszóterekkel.
- A közlekedés a területen jó, a háztól 6 perc sétára található a 134-es, 34-es, buszok és a a H5-ős hév megállója.
- Budapest egyik legszebb strandja a Római Strandfürdő 2 percnyi séta távolság.
- A Római-part / Duna part 900 méter a háztól, ahol számos étterem és kulturális programok széles választéka várja a kikapcsolódni vágyókat.
- Aldi, Spar, Lidl és a Csillag Center bevásárló központ pár perc alatt elérhető.
- A Kisvirág Bölcsőde 900 méterre, Óvoda 400 méterre, a MOA Magán Általános Iskola 135 méterre található.
- Számos neves iskola, óvoda, sportközpont és egészségügyi intézmény található a közelben.
AZ INGATLAN MEGTEKINTHETŐ:
- Személyesen,
- Online, személyes bejelentkezéssel.
FINANSZÍROZÁSBAN ONLINE ÜGYINTÉZÉSSEL IS SEGÍTÜNK!
- Többszörösen díjnyertes irodánk hitelszakértői 20 éves szakmai tapasztalattal várják, előre egyeztetett időpontban akár normál munkaidőn kívül is.
- Bank-független Hitel Centerünk díjmentesen versenyezteti minden bank és hitelintézet kínálatát, hogy önnek a legmegfelelőbb konstrukciót megtaláljuk.
- Egyedi igényekre szabott, csak nálunk elérhető egyedi ajánlatokkal, fogyasztóbarát lakáshitelekkel, babaváró hitellel, teljes körű CSOK PLUSZ ügyintézéssel állunk rendelkezésére.
Érdeklődés esetén VÁROM HÍVÁSÁT a hét minden napján!
Ha nagyon kedvelt és keresett környéken szeretné megtalálni új, modern otthonát, ezt a házat feltétlenül nézze meg!
AMIT A HÁZRÓL TUDNI KELL:
- A két szintes lakóház 2022-ben épült egy parkosított, 823 m2-es telken.
- Falazata Porotherm 30 X-therm tégla, 15 cm-es szigeteléssel.
- Hasznos alapterülete 240 m2, a hozzá tartozó teraszok, erkélyek mérete 120 m2, bruttó mérete 300 m2.
- Az épület luxus igényeket is kielégít, tulajdonosai extra minőségű anyagokat használtak az építésénél és a berendezéseknél is.
- A szimmetrikus elrendezésű épület megjelenésese a modern stílus és a klasszikus elegancia tökéletes ötvözete.
- Modern vonalvezetése, letisztult fehér homlokzata és a markáns, sötét színű nyílászárói prémium megjelenést kölcsönöznek.
- Az épület a tájolásából adódóan, körbenapozott, szobái tágasak és világosak.
- A műanyag ablakok elektromos, alumínium redőnnyel felszereltek.
- A 120 m2-es földszint felosztása: hatalmas amerikai konyhás nappali és étkező, fürdőszoba wc-vel.
- A hatalmas nappalit és az emeletre vezető impozáns lépcsőt Carrarai márvánnyal burkolták, ami egyedi stílust kölcsönöz a belső térnek.
- Földszinti lakótér 120 m2 + összesen 61,84 m2 terasz.
- Az emelet felosztása: közös nappali, 3 erkélyes szoba, közlekedő, fürdőszoba wc-vel.
- Emelet 120 m2 + összesen 60 m2 terasz.
- A fűtést és a meleg vizet kondenzációs kazán biztosítja padlófűtéses hől-eadással, így nincsenek látható fűtőtestek a házban.
- A hűtésről minden szobában klíma gondoskodik.
- Az ingatlan logikus elosztása és térkihasználása miatt kényelmes életteret biztosít.
- A kert szépen gondozott, automata öntözővel, hátsó intim kertjében grillező lett kialakítva.
- A térkövezett előkertbe gépkocsival széles kapun keresztül lehet beállni, ahol 6 autó számára van parkolási lehetőség.
- A beépített bútorok - gépesített konyha a vételár részét képezik, a többi prémium kategóriájú bútor megegyezés tárgyát képviselik.
KÖRNYÉK és KÖZLEKEDÉS:
- Budapest III. kerülete, Rómaifürdő közkedvelt családi házas övezete.
- A környék kimondottan családias jellegű, biztonságos, rendezett, csendes, tele zöldterületekkel, kutyabarát parkokkal, játszóterekkel.
- A közlekedés a területen jó, a háztól 6 perc sétára található a 134-es, 34-es, buszok és a a H5-ős hév megállója.
- Budapest egyik legszebb strandja a Római Strandfürdő 2 percnyi séta távolság.
- A Római-part / Duna part 900 méter a háztól, ahol számos étterem és kulturális programok széles választéka várja a kikapcsolódni vágyókat.
- Aldi, Spar, Lidl és a Csillag Center bevásárló központ pár perc alatt elérhető.
- A Kisvirág Bölcsőde 900 méterre, Óvoda 400 méterre, a MOA Magán Általános Iskola 135 méterre található.
- Számos neves iskola, óvoda, sportközpont és egészségügyi intézmény található a közelben.
AZ INGATLAN MEGTEKINTHETŐ:
- Személyesen,
- Online, személyes bejelentkezéssel.
FINANSZÍROZÁSBAN ONLINE ÜGYINTÉZÉSSEL IS SEGÍTÜNK!
- Többszörösen díjnyertes irodánk hitelszakértői 20 éves szakmai tapasztalattal várják, előre egyeztetett időpontban akár normál munkaidőn kívül is.
- Bank-független Hitel Centerünk díjmentesen versenyezteti minden bank és hitelintézet kínálatát, hogy önnek a legmegfelelőbb konstrukciót megtaláljuk.
- Egyedi igényekre szabott, csak nálunk elérhető egyedi ajánlatokkal, fogyasztóbarát lakáshitelekkel, babaváró hitellel, teljes körű CSOK PLUSZ ügyintézéssel állunk rendelkezésére.
Érdeklődés esetén VÁROM HÍVÁSÁT a hét minden napján!
Regisztrációs szám
H503576
Az ingatlan adatai
Értékesités
eladó
Jogi státusz
használt
Jelleg
ház
Építési mód
tégla
Méret
240 m²
Bruttó méret
300 m²
Telek méret
823 m²
Terasz / erkély mérete
131 m²
Fűtés
Gáz cirkó
Belmagasság
298 cm
Lakáson belüli szintszám
2
Tájolás
Észak-nyugat
Állapot
Jó
Homlokzat állapota
Jó
Építés éve
2022
Fürdőszobák száma
2
Víz
Van
Gáz
Van
Villany
Van
Csatorna
Van
Helyiségek
nappali-konyha
111.5 m²
fürdőszoba-wc
8.5 m²
közlekedő
17.2 m²
terasz
34.42 m²
terasz
27.42 m²
szoba
23.8 m²
szoba
23.8 m²
szoba
23.8 m²
szoba
15.8 m²
fürdőszoba-wc
15.6 m²
erkély
33.09 m²
erkély
26.9 m²
Medovarszki Andrea
Hitelszakértő