309 000 000 Ft
795 000 €
- 189m²
- 9 szoba
- földszint










































Siófok Aranypart 5 önálló apartmanlakás – az ideális befektetés!
Fektessen be a jövőbe egy exkluzív, prémium kivitelezésű ingatlanba, amely Siófok legfelkapottabb részén, az Aranyparton található!
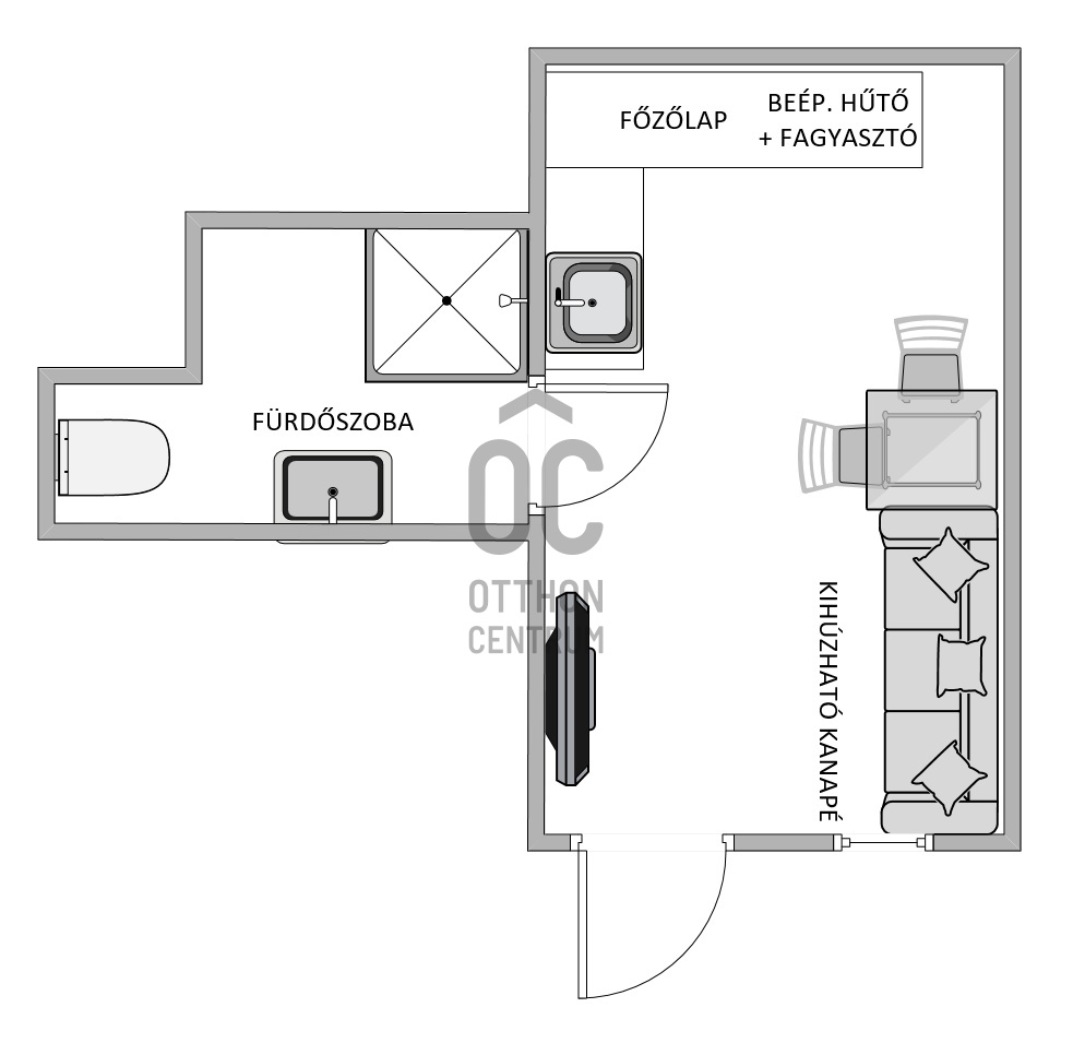
Ez az összesen 189 nm alapterületű, 2 külön álló épületből álló jó állapotú apartmanegyüttes tökéletes választás lehet azok számára, akik nem csupán otthont, hanem egy jövedelmező befektetési lehetőséget keresnek.
Az ingatlan összesen 9 szobával és 6 fürdőszobával rendelkezik, így ideális lehet családok, baráti társaságok vagy akár panzió üzemeltetése céljából is. A lakás minimalista kialakítása és modern beépített bútorai, valamint LED hangulatvilágítása egyedi atmoszférát teremt, amely mindenki számára vonzó.
A tágas nappali tökéletes helyszín a családi összejövetelekhez, míg a kertkapcsolatos lakás lehetőséget ad a szabadban való pihenésre. A motoros redőnyök és a klímaberendezés pedig gondoskodnak a maximális kényelemről, függetlenül az évszaktól. Fűtésről a gázcirkó valamint a klíma gondoskodik.
A jakuzzi és a medence tovább növeli az ingatlan vonzerejét, így a szabadidős tevékenységek igazán élvezetesek lehetnek. A környék ellátottsága kiváló, hiszen a közlekedési csomópont közelsége miatt a város többi része könnyen és gyorsan megközelíthető. A kitűnő közlekedési lehetőségeknek köszönhetően a város szívében található üzletek, éttermek és szolgáltatások mind csupán pár percnyi távolságra helyezkednek el.
Ez a tehermentes ingatlan egyedülálló lehetőséget kínál a befektetők számára, hiszen a medencés családi ház központi elhelyezkedése és a környék népszerűsége garantálja a folyamatos érdeklődést. A nagy belmagasság pedig nemcsak esztétikai élményt nyújt, hanem a légies, tágas érzést is fokozza.
Amennyiben felkeltette érdeklődését ez a különleges ingatlan, ne habozzon, hiszen az ilyen lehetőségek gyorsan elkelnek. Kérdéseivel bizalommal kereshet, örömmel állok rendelkezésére, hogy segítsek Önnek a legjobb döntés meghozatalában!
Ez az összesen 189 nm alapterületű, 2 külön álló épületből álló jó állapotú apartmanegyüttes tökéletes választás lehet azok számára, akik nem csupán otthont, hanem egy jövedelmező befektetési lehetőséget keresnek.
Az ingatlan összesen 9 szobával és 6 fürdőszobával rendelkezik, így ideális lehet családok, baráti társaságok vagy akár panzió üzemeltetése céljából is. A lakás minimalista kialakítása és modern beépített bútorai, valamint LED hangulatvilágítása egyedi atmoszférát teremt, amely mindenki számára vonzó.
A tágas nappali tökéletes helyszín a családi összejövetelekhez, míg a kertkapcsolatos lakás lehetőséget ad a szabadban való pihenésre. A motoros redőnyök és a klímaberendezés pedig gondoskodnak a maximális kényelemről, függetlenül az évszaktól. Fűtésről a gázcirkó valamint a klíma gondoskodik.
A jakuzzi és a medence tovább növeli az ingatlan vonzerejét, így a szabadidős tevékenységek igazán élvezetesek lehetnek. A környék ellátottsága kiváló, hiszen a közlekedési csomópont közelsége miatt a város többi része könnyen és gyorsan megközelíthető. A kitűnő közlekedési lehetőségeknek köszönhetően a város szívében található üzletek, éttermek és szolgáltatások mind csupán pár percnyi távolságra helyezkednek el.
Ez a tehermentes ingatlan egyedülálló lehetőséget kínál a befektetők számára, hiszen a medencés családi ház központi elhelyezkedése és a környék népszerűsége garantálja a folyamatos érdeklődést. A nagy belmagasság pedig nemcsak esztétikai élményt nyújt, hanem a légies, tágas érzést is fokozza.
Amennyiben felkeltette érdeklődését ez a különleges ingatlan, ne habozzon, hiszen az ilyen lehetőségek gyorsan elkelnek. Kérdéseivel bizalommal kereshet, örömmel állok rendelkezésére, hogy segítsek Önnek a legjobb döntés meghozatalában!
Regisztrációs szám
H502610
Az ingatlan adatai
Értékesités
eladó
Jogi státusz
használt
Jelleg
lakás
Építési mód
tégla
Méret
189 m²
Bruttó méret
190 m²
Fűtés
Gáz cirkó
Belmagasság
290 cm
Lakáson belüli szintszám
1
Tájolás
Dél-nyugat
Lépcsőház típusa
nincs
Állapot
Jó
Homlokzat állapota
Jó
Lépcsőház állapota
Jó
Környék
csendes, jó közlekedés, zöld
Építés éve
1999
Fürdőszobák száma
6
Fekvés
udvari
Víz
Van
Gáz
Van
Villany
Van
Csatorna
Van
Kertkapcsolatos
igen
Tároló
Önálló
Vízpart távolsága
200 méterre
Helyiségek
előszoba
4 m²
nappali-konyha
26 m²
hálószoba
13 m²
hálószoba
12 m²
hálószoba
16 m²
hálószoba
12 m²
hálószoba
12 m²
hálószoba
12 m²
hálószoba
12 m²
hálószoba
12 m²
fürdőszoba-wc
4 m²
fürdőszoba-wc
6 m²
fürdőszoba-wc
4 m²
háztartási helyiség
6 m²
fürdőszoba-wc
4 m²