Elérhető Otthon Start hitellel
Eladó családi ház,
H501869
Leányfalu
129 900 000 Ft
331 000 €
- 240m²
- 7 szoba
ELEGÁNS, POLGÁRI STÍLUSÚ VILLAÉPÜLET LEÁNYFALU KÖZPONTJÁBAN!
Leányfalu központjában, a Móricz Zsigmond úton ELADÓ egy kivételes adottságokkal rendelkező, igazi múltat hordozó, patinás polgári stílusú ház!
Az ingatlan különlegességét nem csak az egyedi megjelenése és tágas terei adják, hanem az is, hogy az 1940-es években Rimanóczy Gyula, a modern magyar építészet egyik legjelentősebb alakja tervezte.
A 852 nm-es telken álló, kétszintes épület stílusosan ötvözi a régi idők eleganciáját és a klasszikus polgári hangulatot.
Az ingatlan rendkívül egyedi, architektúrája és térszervezése kiváló alapot kínál egy színvonalas családi otthon vagy szolgáltató tevékenység - rendelő, iroda, szálláshely - kialakítására!
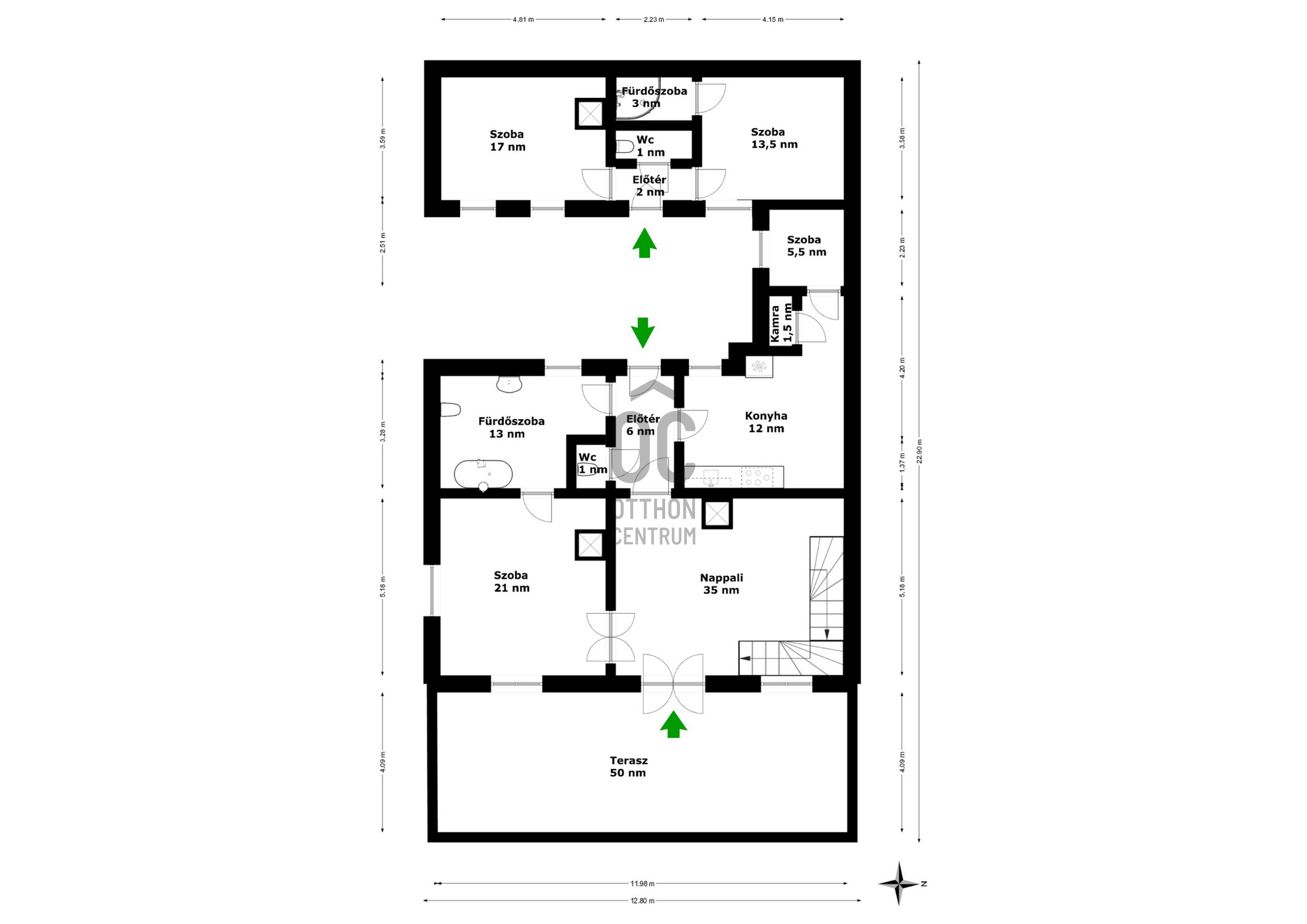
Az épület elosztása:
- Bejárat egy nagyméretű, 50 nm-es, tornácos teraszon keresztül, amely az ingatlan egyik meghatározó eleme
- A földszinten egy tágas nappali cserépkályhával, egy hálószoba, nagyméretű fürdőszoba, konyha, külön wc, kamra, és egy félszoba (korábbi cselédszoba)
- Az emeletre egy impozáns lépcső vezet fel, ahol kettő nagyméretű, világos szoba kapott helyet
- A belmagasság mindkét szinten 3 méter, ami tovább növeli a térérzetet és az eleganciát.
Műszaki jellemzők:
- Fűtés vegyes tüzelésű , dekoratív cserépkályhákkal megoldott (gáz az utcán elérhető, telken belül nincs bevezetve)
- Eredeti, régi fa nyílászárók
- Burkolat jellemzően klasszikus fa padló és parketta
- Tárolási lehetőségként egy pince, egy zárt garázs és 3-4 autó számára parkolási lehetőség a telken belül megoldott
A telken belül, egy belső udvaron és a nagy ház mellett kívülről is megközelíthető egy különálló lakrész, ami korábban kertészlak, majd fogorvosi rendelőként funkcionált. Itt jelenleg egy tágas, cserépkályhával ellátott szoba, egy étkezős konyha, egy zuhanyzós fürdőszoba és egy különálló wc található. Ez az épületrész is számos lehetőséget rejt - ideális külön lakrésznek, vendégháznak, irodának, szolgáltatás célra vagy újra rendelőnek.
A ház közvetlenül a 11-es főút mellett helyezkedik el, jól megközelíthető, jól látható helyen. A település központja, iskola, üzletek, buszmegálló pár perces sétára elérhető. A Duna-part szintén könnyen, pár méterre megközelíthető, így az otthoni nyugalom és a komfortos közlekedés egyszerre adott.
Olyan új tulajdonost keresünk, aki egy stílusos, nagypolgári múltú, különleges hangulatú házat keres a Dunakanyar kapujában , amely egyben otthon és értékálló befektetés is!
Aki vállalkozást, rendelőt, szálláshelyet vagy szolgáltatói egységet alakítana ki egy jól látható, központi helyen!
Aki többgenerációs otthont keres, ahol külön lakrészben mégis egy helyen képzeli el jövőjét a családtagokkal!
Ez az ingatlan valódi ritkaság a piacon! Történelmi érték, különleges hangulat, központi lokáció, mindez egy építészettörténeti jelentőségű házban!
Az ingatlan tehermentes, rövid időn belül birtokba vehető!
További információkért és megtekintési szándékkal kapcsolatban várom hívását!
Leányfalu központjában, a Móricz Zsigmond úton ELADÓ egy kivételes adottságokkal rendelkező, igazi múltat hordozó, patinás polgári stílusú ház!
Az ingatlan különlegességét nem csak az egyedi megjelenése és tágas terei adják, hanem az is, hogy az 1940-es években Rimanóczy Gyula, a modern magyar építészet egyik legjelentősebb alakja tervezte.
A 852 nm-es telken álló, kétszintes épület stílusosan ötvözi a régi idők eleganciáját és a klasszikus polgári hangulatot.
Az ingatlan rendkívül egyedi, architektúrája és térszervezése kiváló alapot kínál egy színvonalas családi otthon vagy szolgáltató tevékenység - rendelő, iroda, szálláshely - kialakítására!
Az épület elosztása:
- Bejárat egy nagyméretű, 50 nm-es, tornácos teraszon keresztül, amely az ingatlan egyik meghatározó eleme
- A földszinten egy tágas nappali cserépkályhával, egy hálószoba, nagyméretű fürdőszoba, konyha, külön wc, kamra, és egy félszoba (korábbi cselédszoba)
- Az emeletre egy impozáns lépcső vezet fel, ahol kettő nagyméretű, világos szoba kapott helyet
- A belmagasság mindkét szinten 3 méter, ami tovább növeli a térérzetet és az eleganciát.
Műszaki jellemzők:
- Fűtés vegyes tüzelésű , dekoratív cserépkályhákkal megoldott (gáz az utcán elérhető, telken belül nincs bevezetve)
- Eredeti, régi fa nyílászárók
- Burkolat jellemzően klasszikus fa padló és parketta
- Tárolási lehetőségként egy pince, egy zárt garázs és 3-4 autó számára parkolási lehetőség a telken belül megoldott
A telken belül, egy belső udvaron és a nagy ház mellett kívülről is megközelíthető egy különálló lakrész, ami korábban kertészlak, majd fogorvosi rendelőként funkcionált. Itt jelenleg egy tágas, cserépkályhával ellátott szoba, egy étkezős konyha, egy zuhanyzós fürdőszoba és egy különálló wc található. Ez az épületrész is számos lehetőséget rejt - ideális külön lakrésznek, vendégháznak, irodának, szolgáltatás célra vagy újra rendelőnek.
A ház közvetlenül a 11-es főút mellett helyezkedik el, jól megközelíthető, jól látható helyen. A település központja, iskola, üzletek, buszmegálló pár perces sétára elérhető. A Duna-part szintén könnyen, pár méterre megközelíthető, így az otthoni nyugalom és a komfortos közlekedés egyszerre adott.
Olyan új tulajdonost keresünk, aki egy stílusos, nagypolgári múltú, különleges hangulatú házat keres a Dunakanyar kapujában , amely egyben otthon és értékálló befektetés is!
Aki vállalkozást, rendelőt, szálláshelyet vagy szolgáltatói egységet alakítana ki egy jól látható, központi helyen!
Aki többgenerációs otthont keres, ahol külön lakrészben mégis egy helyen képzeli el jövőjét a családtagokkal!
Ez az ingatlan valódi ritkaság a piacon! Történelmi érték, különleges hangulat, központi lokáció, mindez egy építészettörténeti jelentőségű házban!
Az ingatlan tehermentes, rövid időn belül birtokba vehető!
További információkért és megtekintési szándékkal kapcsolatban várom hívását!
Regisztrációs szám
H501869
Az ingatlan adatai
Értékesités
eladó
Jogi státusz
használt
Jelleg
ház
Építési mód
tégla
Méret
240 m²
Bruttó méret
240 m²
Telek méret
852 m²
Terasz / erkély mérete
50 m²
Fűtés
cserépkályha (vegyes)
Belmagasság
310 cm
Lakáson belüli szintszám
2
Tájolás
Kelet
Állapot
Átlagos
Homlokzat állapota
Átlagos
Pince
Önálló
Környék
jó közlekedés, zöld
Építés éve
1940
Fürdőszobák száma
2
Garázs
Benne van az árban
Garázs férőhely
1
Víz
Van
Gáz
Utcán
Villany
Van
Csatorna
Van
Többgenerációs
igen
Vízpart távolsága
200 méterre
Helyiségek
terasz
50 m²
nappali
35 m²
hálószoba
21 m²
fürdőszoba-wc
13 m²
konyha
12 m²
hálószoba
5.4 m²
előszoba
6.2 m²
wc
1 m²
hálószoba
23 m²
hálószoba
21.5 m²
hálószoba
17 m²
konyha-étkező
13.5 m²
fürdőszoba
3 m²
wc
1 m²
előszoba
2 m²
lépcsőház
8 m²
Czene Enikő Éva
Hitelszakértő