Elérhető Otthon Start hitellel
Eladó családi ház,
GDH388250
Fót
59 900 000 Ft
154 000 €
- 82m²
- 4 szoba




















SÜRGŐSEN ELADÓ! ÁRCSÖKKENÉS!
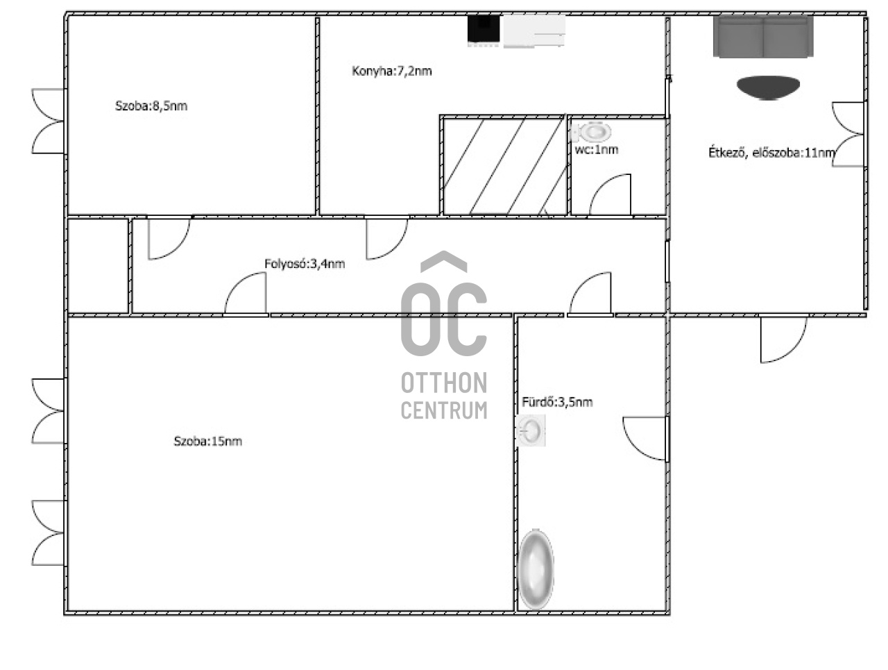
Fót kertvárosi részén ELADÓ egy felújítandó 82 nm-es, tégla építésű, családi ház, cc. 300 nm-es telekkel. Az alap épülethez, egy előszobát és egy garázst építettek hozzá, illetve beépítésre került a tetőtér.Jelenleg az alsó szinten,egy előszoba, konyha, fürdőszoba, külön wc, és két szoba található.A felső szinten két szoba lett kialakítva.
2022-ben részleges felújítások történtek a házon, ezek többek között a következők:
- teljes vízvezeték, vízhálózat csere
- részleges villanyvezeték cseréje, illetve bővítése
- nyílászárók cseréje az alsó szinten megtörtént, a felső szint teljes felújítást igényel.
- 2 db hűtő-fűtő klíma felszerelése
(jelenleg ez szolgáltatja a fűtést is)
- új ARISTON villanybojler felszerelése, mely a fürdőszobában és a konyhában is szolgáltatja a meleg vizet.
A rendezett telken egy ásott, gyűrűs kút szolgál a kert locsolására.
Parkolás az udvaron két autóval lehet, a ház előtt három autó is elfér.
PER ÉS TEHER MENTES!
Közlekedés kiváló:
Buszközlekedés Budapest felé:
Buszok: 318, 308, 314,315,autóval: M2, M0, M3, valamint 5 perces sétára Fót vasútállomás, mellyel 30 perc a Nyugati pu.
Közelben bevásárlási lehetőségek, 500 méterre, óvoda, iskola, kis játszótér, kosárlabda pálya, orvosi rendelők.
Ez az ingatlan remek választás lehet azok számára, akik saját ízlésük szerint szeretnék felújítani és alakítani új otthonukat.
A TÖBBÉVES SZAKMAI TAPASZTALATON TÚL - AZ ALÁBBIAKBAN TÁMOGATJUK MÉG AZ ADÁSVÉTELT:
- Megbízható ügyvédi háttér
- Energetikai tanúsítvány
- INGYENES, BANKFÜGGETLEN hitelügyintézés (megtaláljuk Önnek a legjobb konstrukciót)
- Állami támogatások: CSOK+, Babaváró támogatás.
Hívjon, akár hétvégén is!
Fót kertvárosi részén ELADÓ egy felújítandó 82 nm-es, tégla építésű, családi ház, cc. 300 nm-es telekkel. Az alap épülethez, egy előszobát és egy garázst építettek hozzá, illetve beépítésre került a tetőtér.Jelenleg az alsó szinten,egy előszoba, konyha, fürdőszoba, külön wc, és két szoba található.A felső szinten két szoba lett kialakítva.
2022-ben részleges felújítások történtek a házon, ezek többek között a következők:
- teljes vízvezeték, vízhálózat csere
- részleges villanyvezeték cseréje, illetve bővítése
- nyílászárók cseréje az alsó szinten megtörtént, a felső szint teljes felújítást igényel.
- 2 db hűtő-fűtő klíma felszerelése
(jelenleg ez szolgáltatja a fűtést is)
- új ARISTON villanybojler felszerelése, mely a fürdőszobában és a konyhában is szolgáltatja a meleg vizet.
A rendezett telken egy ásott, gyűrűs kút szolgál a kert locsolására.
Parkolás az udvaron két autóval lehet, a ház előtt három autó is elfér.
PER ÉS TEHER MENTES!
Közlekedés kiváló:
Buszközlekedés Budapest felé:
Buszok: 318, 308, 314,315,autóval: M2, M0, M3, valamint 5 perces sétára Fót vasútállomás, mellyel 30 perc a Nyugati pu.
Közelben bevásárlási lehetőségek, 500 méterre, óvoda, iskola, kis játszótér, kosárlabda pálya, orvosi rendelők.
Ez az ingatlan remek választás lehet azok számára, akik saját ízlésük szerint szeretnék felújítani és alakítani új otthonukat.
A TÖBBÉVES SZAKMAI TAPASZTALATON TÚL - AZ ALÁBBIAKBAN TÁMOGATJUK MÉG AZ ADÁSVÉTELT:
- Megbízható ügyvédi háttér
- Energetikai tanúsítvány
- INGYENES, BANKFÜGGETLEN hitelügyintézés (megtaláljuk Önnek a legjobb konstrukciót)
- Állami támogatások: CSOK+, Babaváró támogatás.
Hívjon, akár hétvégén is!
Regisztrációs szám
GDH388250
Az ingatlan adatai
Értékesités
eladó
Jogi státusz
használt
Jelleg
ház
Építési mód
tégla
Méret
82 m²
Bruttó méret
82 m²
Telek méret
286 m²
Belmagasság
2 800 cm
Tájolás
Dél
Állapot
Felújítandó
Homlokzat állapota
Átlagos
Építés éve
1949
Fekvés
udvari
Garázs férőhely
1
Víz
Van
Gáz
Utcán
Villany
Van
Csatorna
Van
Kertkapcsolatos
igen