390 000 000 Ft
1 004 000 €
- 341,3m²
- 7 szoba



































NAGYPOLGÁRI OTTHON BUDAÖRS SZÍVÉBEN!
Eladó Budaörs központjában, de mégis csendes helyen egy nagystílű, impozáns méretekkel és terekkel rendelkező belső háromszintes családi ház.
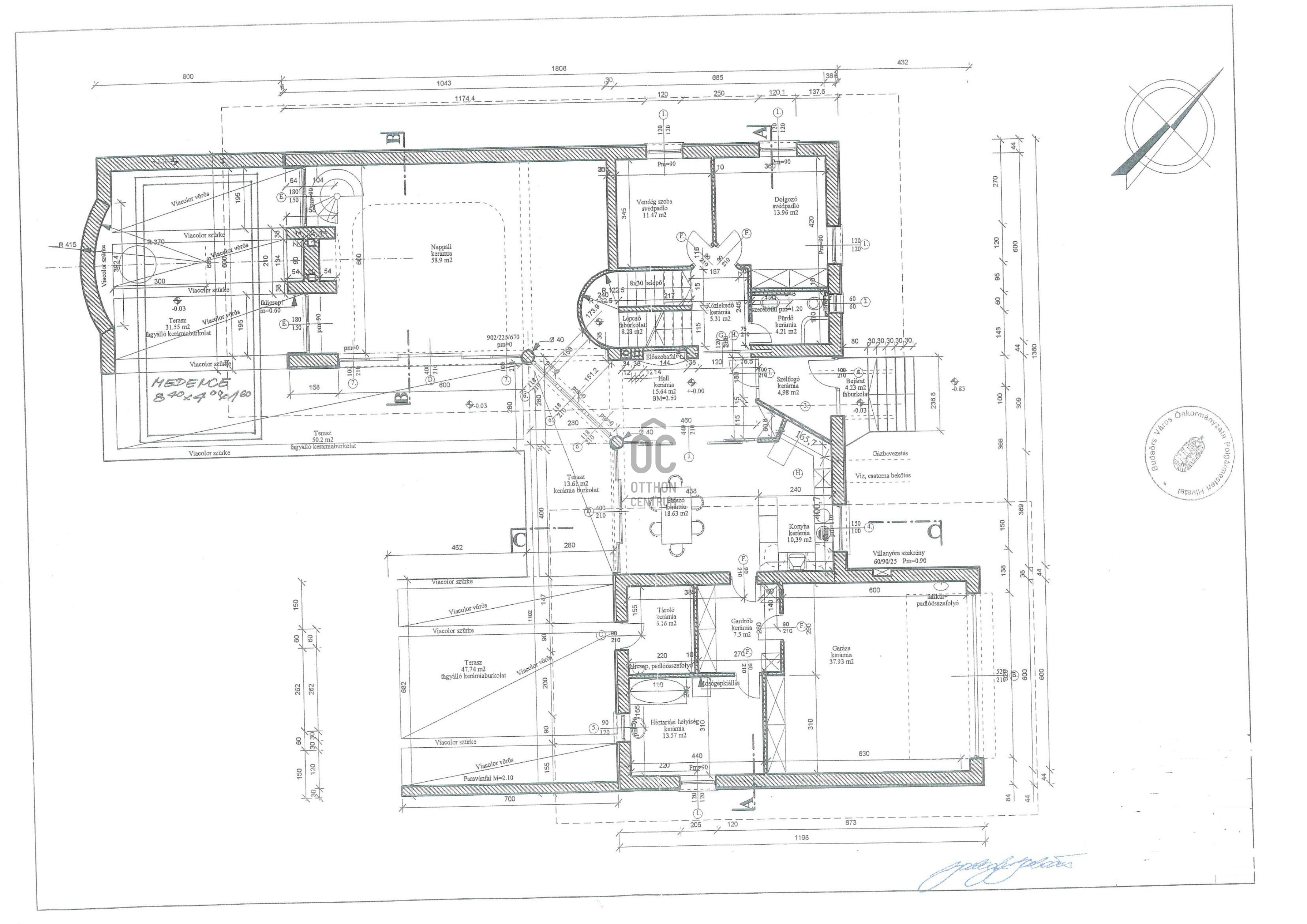
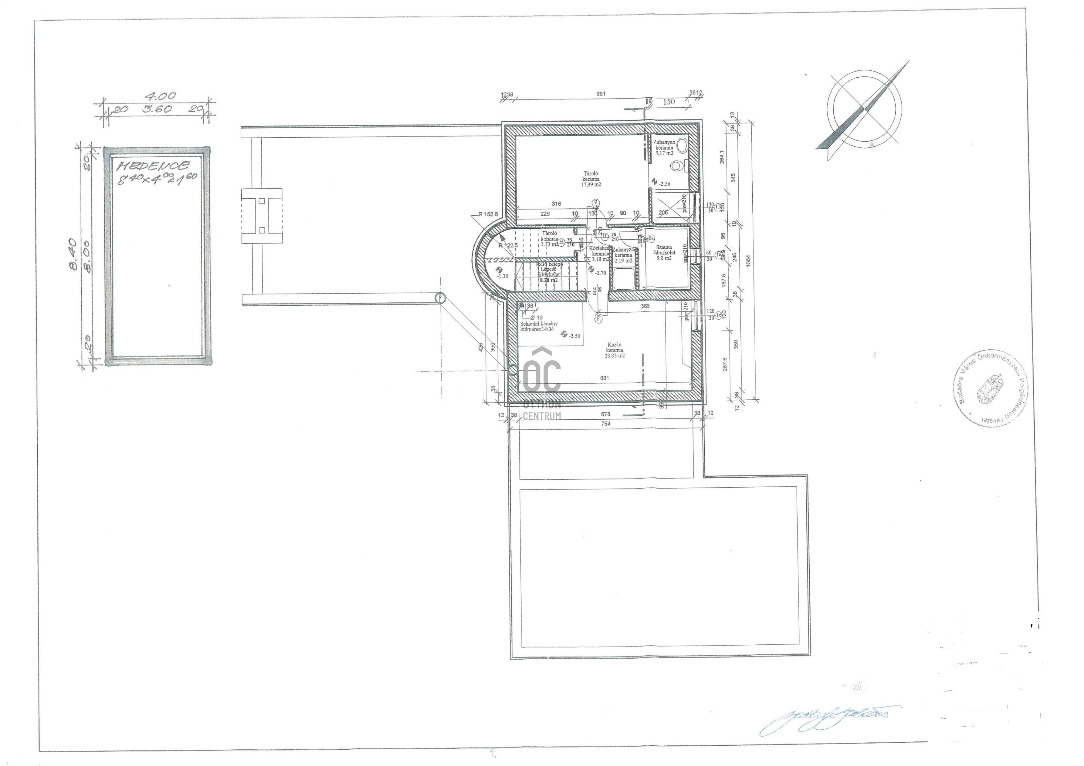
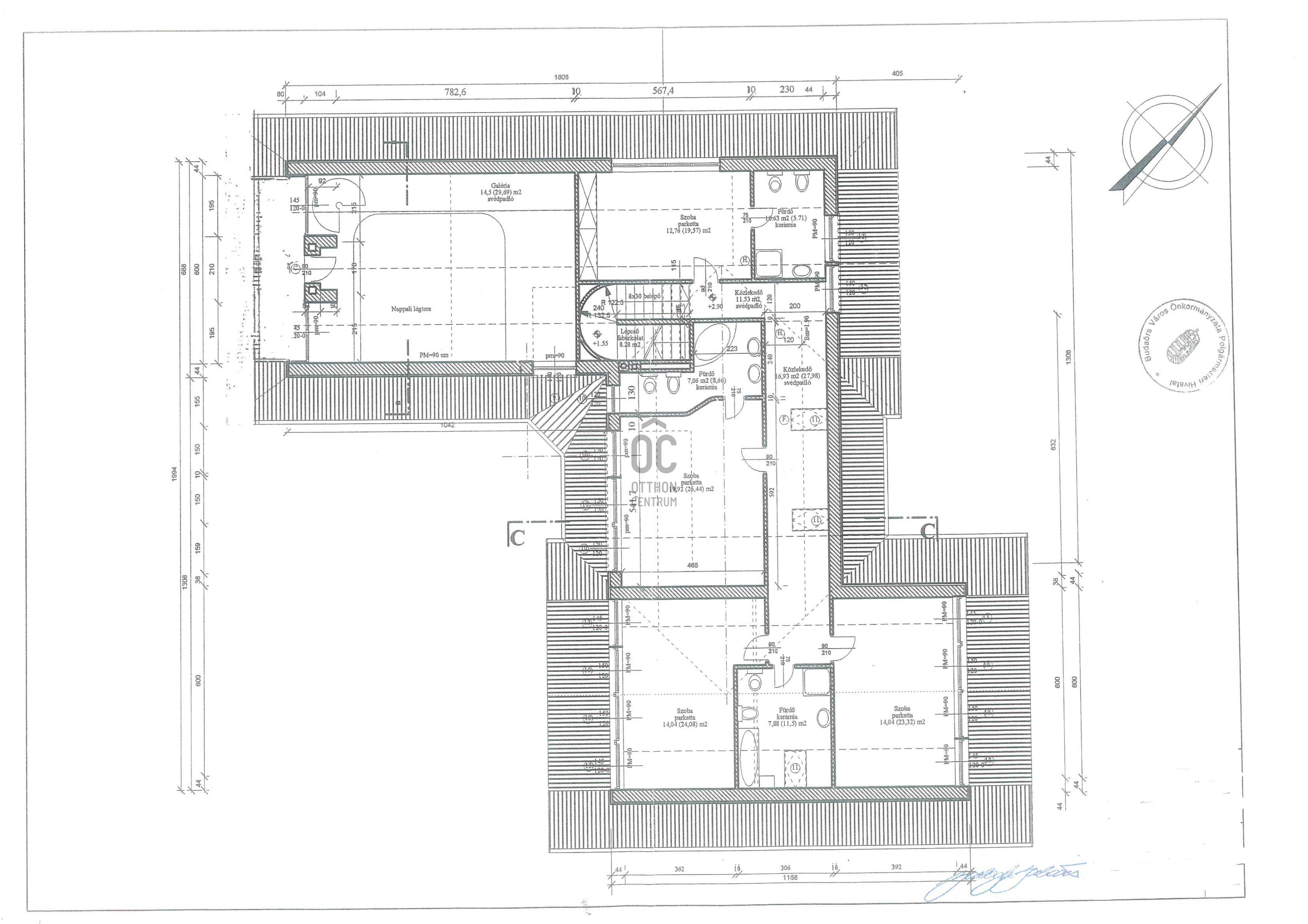
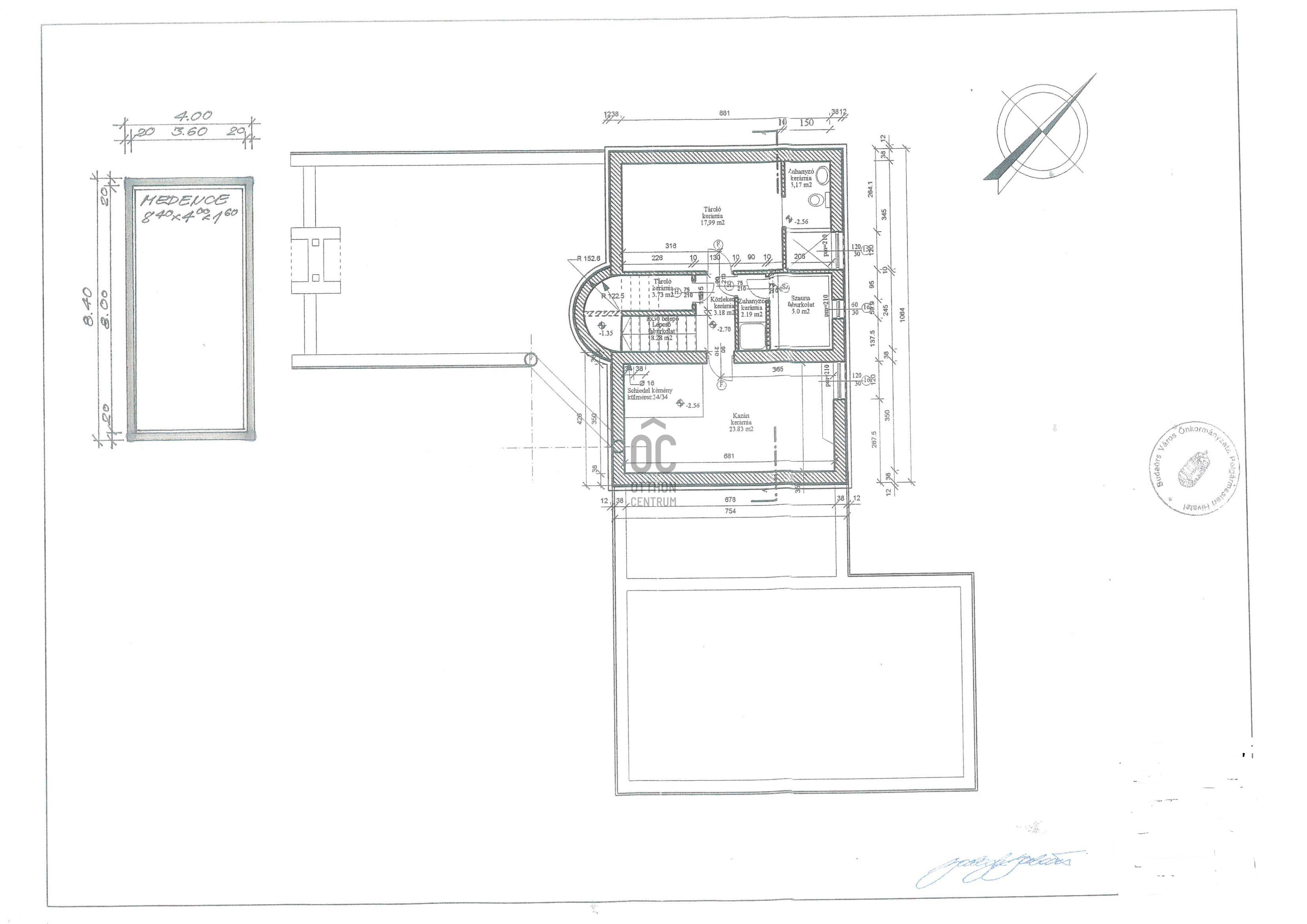
Az ingatlan közel 400 nm-es (alagsor nettó 57,36 nm, földszint nettó 216,93 nm, tetőtér nettó 124,37 nm) és rendkívül élhető az elrendezése.
Az alagsorban kiszolgáló helyiségek találhatók: tároló, kazánház, szauna vizesblokkal és egyéb gépészeti elemek, mint például vízlágyító és központi porszívó, a földszintet a közel 60 nm-es galériás nappali uralja a hozzákapcsolódó konyhával és étkezővel, ill. két hálószoba (jelenleg összenyitva) is található ezen a szinten fürdőszobával, közlekedő/gardróbbal, mosókonyhával és a duplagarázzsal, a tetőtérben pedig további négy hálószoba van három fürdőszobával.
A fűtésről és hűtésről parapetes fan -coil rendszer gondoskodik, melynek egy gázkazán a központi hőtermelője. A nappaliban egy attraktív cserépkályha szolgál alternatív fűtési lehetőségként.
A ház 2005-ben épült, tulajdonosai folyamatosan újították, korszerűsítették: 2022-ben például friss belső festést kapott az ingatlan, a tetőt is renoválták, ill. napelem rendszer telepítésére is sor került.
A 993 nm-es kert gyönyörű és a budaörsi viszonyok ellenére meglepően intim. Külön dísze a grillező hely és a komoly gépészettel rendelkező kültéri medence (8 mX3,6 m).
A nappali, konyha és étkező terét és a kertet egy kb. 100 nm-es terasz köti össze.
Parkolni a tágas duplagarázsban lehet, ill. egy fedett autóbeállón és a ház előtt is kényelmesen elfér több autó.
Az infrastruktúra és közlekedés tökéletes, pár perc alatt könnyen elérhető a főváros autóval és tömegközlekedéssel is. Több bevásárlási (TESCO, AUCHAN, LIDL, ALDI) és szórakozási lehetőség (VÁROSI SPORTCSARNOK ÉS USZODA, SZÍNHÁZ, JÁTSZÓHÁZ) is néhány utcára található.
Eladó Budaörs központjában, de mégis csendes helyen egy nagystílű, impozáns méretekkel és terekkel rendelkező belső háromszintes családi ház.
Az ingatlan közel 400 nm-es (alagsor nettó 57,36 nm, földszint nettó 216,93 nm, tetőtér nettó 124,37 nm) és rendkívül élhető az elrendezése.
Az alagsorban kiszolgáló helyiségek találhatók: tároló, kazánház, szauna vizesblokkal és egyéb gépészeti elemek, mint például vízlágyító és központi porszívó, a földszintet a közel 60 nm-es galériás nappali uralja a hozzákapcsolódó konyhával és étkezővel, ill. két hálószoba (jelenleg összenyitva) is található ezen a szinten fürdőszobával, közlekedő/gardróbbal, mosókonyhával és a duplagarázzsal, a tetőtérben pedig további négy hálószoba van három fürdőszobával.
A fűtésről és hűtésről parapetes fan -coil rendszer gondoskodik, melynek egy gázkazán a központi hőtermelője. A nappaliban egy attraktív cserépkályha szolgál alternatív fűtési lehetőségként.
A ház 2005-ben épült, tulajdonosai folyamatosan újították, korszerűsítették: 2022-ben például friss belső festést kapott az ingatlan, a tetőt is renoválták, ill. napelem rendszer telepítésére is sor került.
A 993 nm-es kert gyönyörű és a budaörsi viszonyok ellenére meglepően intim. Külön dísze a grillező hely és a komoly gépészettel rendelkező kültéri medence (8 mX3,6 m).
A nappali, konyha és étkező terét és a kertet egy kb. 100 nm-es terasz köti össze.
Parkolni a tágas duplagarázsban lehet, ill. egy fedett autóbeállón és a ház előtt is kényelmesen elfér több autó.
Az infrastruktúra és közlekedés tökéletes, pár perc alatt könnyen elérhető a főváros autóval és tömegközlekedéssel is. Több bevásárlási (TESCO, AUCHAN, LIDL, ALDI) és szórakozási lehetőség (VÁROSI SPORTCSARNOK ÉS USZODA, SZÍNHÁZ, JÁTSZÓHÁZ) is néhány utcára található.
Regisztrációs szám
DHZ099756
Az ingatlan adatai
Értékesités
eladó
Jogi státusz
használt
Jelleg
ház
Építési mód
tégla
Méret
341,3 m²
Bruttó méret
341,3 m²
Telek méret
993 m²
Terasz / erkély mérete
147,1 m²
Fűtés
egyéb
Belmagasság
265 cm
Lakáson belüli szintszám
3
Tájolás
Dél-nyugat
Állapot
Jó
Homlokzat állapota
Jó
Építés éve
2005
Fürdőszobák száma
6
Fekvés
udvari
Víz
Van
Gáz
Van
Villany
Van
Csatorna
Van
Kertkapcsolatos
igen
Helyiségek
közlekedő
3.19 m²
fürdőszoba-wc
3.17 m²
nappali
58.9 m²
konyha
10.39 m²
ebédlő
18.63 m²
szoba
11.47 m²
szoba
13.96 m²
fürdőszoba-wc
4.21 m²
közlekedő
5.31 m²
előszoba
4.98 m²
hall
15.64 m²
lépcsőház
8.28 m²
veranda
4.23 m²
gardrób
7.5 m²
háztartási helyiség
13.57 m²
terasz
142.9 m²
szoba
19.92 m²
fürdőszoba-wc
7.06 m²
szoba
12.76 m²
fürdőszoba-wc
10.63 m²
közlekedő
11.53 m²
közlekedő
16.93 m²
szoba
14.04 m²
szoba
14.04 m²
fürdőszoba-wc
7.08 m²

Bitó István
Hitelszakértő